Zum Hauptinhalt springen Zur Suche springen Zur Hauptnavigation springen
2% Extra-Skonto sichern! | Nur für kurze Zeit
Beratung
Sales Contact Image
Verkaufsberatung: 0720 204022
Rückrufservice
Tage
-33% Rabatt auf Zubehör | Code: ZUBEHOER33

€ 5.249,00

inkl. MwSt. | Versandkostenfrei

-33% Rabatt auf Zubehör | Code: ZUBEHOER33

Gartenhaus Sunrise

Die unten ausgewählten Zubehörartikel werden mit in den Warenkorb gelegt.
Purchase Advice Image
Persönliche Produkt- & Kaufberatung gewünscht Tel: 0720 204022
Fragen zum Produkt und Extra-Deal sichern?
WhatsApp-Beratung und Extra-Deal sichern!
Whatsapp Beratung
Lieferzeit ca. 2-3 Wochen
Versandkostenfrei
Skonto Icon
-2% Skonto bei Vorkasse
Produktvarianten
Schutz-Imprägnierung wählen:
Wandstärke wählen:
Lieferung zum Wunschzeitraum
Passendes Zubehör zu diesem Produkt
Produktbeschreibung

Zu unseren beliebtesten Gartenhäusern gehört das Gartenhaus Sunrise, welches seinem Namen voll und ganz gerecht wird, weil das Haus dank der zwei großen Fensterfronten mit Sonnenlicht geflutet wird. Da diese komplett geöffnet werden können, steht dir noch mehr Platz zu Verfügung und das Haus lässt sich beispielsweise als komfortables Poolhaus nutzen.  

Artikeldetails zum Gartenhaus Sunrise:

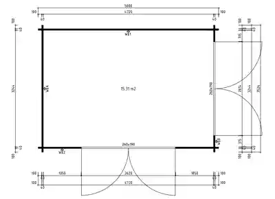
  • Außenmaß: 520 x 372 cm
  • Sockelmaß: 476 x 328 cm
  • Grundfläche: 16 m²
  • Seitenwandhöhe: ca. 217 cm
  • Gesamthöhe: ca. 275 cm
  • Rauminhalt: ca. 36,8 m³
  • Dachneigung: 20°
  • Dachfläche: 21,1 m²
  • 2 große 4-fach Falttüren mit Vollglas: ca. 260 x 190 cm
  • Wandstärke: 40 mm

Im Lieferumfang des Gartenhauses Sunrise enthalten:

  • Massivholzdach aus Nut- und Federbrettern (vorgefertigt)
  • 2 große 4-fach Falttüren mit Vollglas zum kompletten Öffnen 
  • hochwertige Türen mit Leimholzrahmen und Aluminiumtürschwellen
  • Verglasung der Falttür aus ISO-Glas
  • Metall-Pfostenträger mit Stellschraube (ohne Schrauben für die Montage am Boden)
  • Schloss, Drückergarnitur, Montagematerial & Aufbauzeichnung
  • Sturmsicherung auf der Innenseite
  • Lieferung in natur ohne Farbbehandlung
Zubehör & Services
3 Zubehörartikel sind gerade ausgewählt (inkl. unseren Empfehlungen). Die passenden Mengen sind voreingestellt.

Das benötigst du für den Aufbau

Sparset Montagezubehör und Befestigung S Das perfekte Set für den sicheren Aufbau und die Verankerung deines Gartenhauses/deiner Sauna – schützt zuverlässig vor Feuchtigkeit, Wind und Sturm.
€ 129,00*
Sparset Montagezubehör und Befestigung S
Produktdetails
Artikelnummer A0.6.00871
Produkttyp Zubehör

Basic Zubehör Set mit bis zu 20% Ersparnis gegenüber dem Einzelkauf!

Das perfekte Set für den sicheren Aufbau und die Verankerung deines Gartenhauses – schützt zuverlässig vor Feuchtigkeit, Wind und Sturm. Mit einem Klick erhältst du alle wichtigen Komponenten in ausreichender Menge für einen langlebigen und stabilen Aufbau.

Bestehend aus:

  • Feuchtigkeitssperre (ca. 50 Stück) aus Spezial-Gummigranulat - Schützt vor aufsteigender Nässe, gleicht Unebenheiten aus und sorgt für Drainage und Luftzirkulation.
  • Sturmwinkel (Set: 4 Stück) - Zur sicheren Befestigung des Gartenhauses am Fundament (Schrauben & Dübel sind nicht im Lieferumfang enthalten).
  • Windverankerungs-Set (Set für 2 Seiten) - Verbindet obere und untere Blockbohlen und verhindert ein Auseinanderdrücken bei Sturm.

Unsere Empfehlung

Für eine optimale und dauerhafte Sturm- und Feuchtigkeitssicherung empfehlen wir den kombinierten Einsatz aller im Set enthaltenen Komponenten. So ist dein Gartenhaus bestmöglich befestigt und zuverlässig gegen Wind und Witterung geschützt.

Sparset Universal Holzfußboden-Set 18 m² - 18 mm Boden naturbelassen Passgenaue Menge an Fußbodenbrettern zur individuellen Anpassung – inklusive stabiler Fundamenthölzer für eine sichere Basis.
€ 1.189,00*
Sparset Universal Holzfußboden-Set 18 m² - 18 mm Boden naturbelassen
Produktdetails
Produkttyp Zubehör
Zubehörtyp Fußboden Set
Artikelnummer A0.6.00310.0

Universal Holzfußboden-Set mit bis zu 20% Ersparnis gegenüber dem Einzelkauf!

Passend zum Haus – Mit diesem Set hast du mit einem Klick die passende Anzahl Holzfußboden Pakete für dein Wunschprodukt.

Inhalt des Sets:

  • Nut- und Federbretter mit 18 mm Stärke, naturbelassen 
  • passende Anzahl Fußleisten, mit oder ohne werkseitiger Imprägnierung
  • kesseldruckimprägnierte Fundamenthölzer
  • die Imprägnierung kann ggf. farblich vom Haus abweichen
  • Material: nordische Fichte

Bitte beachte, dass der Fußboden individuell angepasst werden muss. Eine ausführliche Montageanleitung liegt dem Set bei.

Dieses Set ist für Häuser mit einer Grundfläche von 15,1 - 18 m² berechnet. Im Zweifelsfall empfehlen wir, die Artikel einzeln zu kaufen.

Universal Holzfußboden-Set mit bis zu 20% Ersparnis gegenüber dem Einzelkauf!

Passend zum Haus – Mit diesem Set hast du mit einem Klick die passende Anzahl Holzfußboden Pakete für dein Wunschprodukt.

Inhalt des Sets:

  • Nut- und Federbretter mit 18 mm Stärke, naturbelassen 
  • passende Anzahl Fußleisten, mit oder ohne werkseitiger Imprägnierung
  • kesseldruckimprägnierte Fundamenthölzer
  • die Imprägnierung kann ggf. farblich vom Haus abweichen
  • Material: nordische Fichte

Bitte beachte, dass der Fußboden individuell angepasst werden muss. Eine ausführliche Montageanleitung liegt dem Set bei.

Dieses Set ist für Häuser mit einer Grundfläche von 15,1 - 18 m² berechnet. Im Zweifelsfall empfehlen wir, die Artikel einzeln zu kaufen.

Produktdetails
Produkttyp Zubehör
Zubehörtyp Fußboden Set
Artikelnummer A0.6.00310.0

Universal Holzfußboden-Set mit bis zu 20% Ersparnis gegenüber dem Einzelkauf!

Passend zum Haus – Mit diesem Set hast du mit einem Klick die passende Anzahl Holzfußboden Pakete für dein Wunschprodukt.

Inhalt des Sets:

  • Nut- und Federbretter mit 28 mm Stärke, mit werkseitiger Imprägnierung
  • passende Anzahl Fußleisten, mit oder ohne werkseitiger Imprägnierung
  • kesseldruckimprägnierte Fundamenthölzer
  • die Imprägnierung kann ggf. farblich vom Haus abweichen
  • Material: nordische Fichte

Bitte beachte, dass der Fußboden individuell angepasst werden muss. Eine ausführliche Montageanleitung liegt dem Set bei.

Dieses Set ist für Häuser mit einer Grundfläche von 15,1 - 18 m² berechnet. Im Zweifelsfall empfehlen wir, die Artikel einzeln zu kaufen.

Produktdetails
Produkttyp Zubehör
Zubehörtyp Fußboden Set
Artikelnummer A0.6.00310.3
Sparset Schindel Dacheindeckung - 27 m² Dein Rundum-sorglos-Paket für ein regensicheres Dach – das Schindel-Komplettset mit Unterdeckbahn, Nägeln und Kleber.
€ 589,00*
Sparset Schindel Dacheindeckung - 27 m²
Produktdetails
Produkttyp Zubehör
Artikelnummer A0.6.00849
Zubehörtyp Dacheindeckung Set

Dein Rundum-sorglos-Paket fürs regensichere Dach – das Schindel-Komplettset spart dir bis zu 20 % gegenüber dem Einzelkauf!

 

Lieferumfang für Dachflächen bis 27 m²:

· Premium Rechteckschindeln schwarz (11 Pakete je 3 m²)

· Unterdeckbahn Ondutiss Strong Air 120 (4 Rollen)

· Dachpappstifte (10 Päckchen)

· Bitumenkleber (3 Tuben)

 

Premium Rechteckschindeln schwarz:

Unsere Premium Rechteck-Bitumen-Dachschindeln überzeugen durch eine hochwertige Trägereinlage aus robustem Glasvlies und ein edles, farbintensives Mineralgranulat auf der Oberseite. Diese Kombination sorgt nicht nur für ein elegantes Erscheinungsbild, sondern auch für maximalen Schutz: Die Schindeln verhindern zuverlässig das Eindringen von Wasser, bieten eine windfeste und UV-beständige Oberfläche und verleihen deinem Dach eine edle, pflegeleichte Optik – langanhaltend schön und zuverlässig wetterbeständig.

 

Unterdeckbahn Ondutiss Strong Air 120:

Die hochwertige, dreilagige Unterspann- und Schalungsbahn aus Polypropylen bietet zuverlässigen Schutz vor Wind und Feuchtigkeit und unterstützt eine effiziente Wärmedämmung.

· Abmessung: 10 x 1 m

 

Dachpappstifte:

Die Dachpappstifte dienen zur robusten und wetterfesten Befestigung der Schindeln und Unterdeckbahn. Ihre verzinkte Oberfläche sorgt für einen zuverlässigen Schutz vor Korrosion.

· Abmessung: 2,5 x L 15 mm

· Ø Kopf: 8 mm

· Verzinkt

· Menge: ca. 200 g = ca. 133 Stück

 

Bitumenkleber:

Mit diesem hochwertigen Bitumenkleber kannst du windgefährdete Schindeln zusätzlich zu den Dachpappstiften fixieren und damit für die ideale Haltbarkeit deines Daches sorgen – perfekt auch für schnelle, zuverlässige Reparaturen geeignet. Der Kleber ist sofort gebrauchsfertig – kein Verdünnen, kein Erhitzen, einfach auftragen und befestigen.
Für optimale Haftung: Stelle sicher, dass die Fläche sauber, trocken und frei von Sand, Blättern oder anderen Verschmutzungen ist. Der Untergrund sollte nicht vereist oder mit Reif bedeckt sein.

· Farbe: schwarz

· Inhalt: 310 ml

· Zur Anwendung auf Holz und Bitumen

 

Das Zubehörpaket ist optimal auf die üblichen Bedarfsmengen abgestimmt Je nach Art der Befestigung und Überlappung kann der Materialverbrauch leicht variieren.

Dachrinnenset RG 100 - für 2x bis 5m; 2x bis 6m Dachseiten - anthrazit metallic Marley Dachrinnen-Set für 4 Dachseiten (2× bis 5 m, 2× bis 6 m) – komplett, langlebig und einfach zu montieren, inkl. Zubehör.
€ 1.129,00*
Dachrinnenset RG 100 - für 2x bis 5m; 2x bis 6m Dachseiten - anthrazit metallic
Produktdetails
Zubehörtyp Dachrinnen Set
Grundfarbe Grau
Material Kunststoff
Produkttyp Zubehör
Artikelnummer M6.6.00033.0

Für Gartenhäuser aus Holz mit Seitenlängen 2x bis 5 m und 2x bis 6 m, komplettes Set für 4 Holzhausseiten

Dachrinnenset für Gartenhäuser mit Stirnbrett - bei Gartenhäusern ohne Stirnbrett muss dieses bauseits für die Montage gestellt werden

Marley Dachrinnen-Sets schützen Wände und Fundamente von Garten- und Blockhäusern sicher und zuverlässig vor Schäden durch Regenwasser.

Vorteile:

  • Komplettes Set mit Rinnen, Fallrohren und Befestigungszubehör
  • Leicht zu montieren
  • Alles komplett im Set
  • witterungs-, UV- und temperaturbeständig
  • Schlagfester, hochwertiger Kunststoff
  • Top Qualität - Made in Germany
  • 10 Jahre Garantie

Set-Inhalt:

  • 10x Dachrinne, halbrund 2 m RG 100
  • 2x Dachrinne, halbrund 1 m RG 100
  • 8x Rinnenverbindungsschale RG 100
  • 8x Endstück für links und rechts RG 100
  • 38x Rinnenhalter RG 100
  • 38x Verstellwinkel für Rinnenhalter
  • 4x Stutzen RG 100 / DN 75
  • 8x Rohrbogen DN 75, 45°
  • 4x Fallrohr DN 75 2 m
  • 8x Rohrschelle mit Ringschraube
  • 4x Außenecke 90° RG 100

Für Gartenhäuser aus Holz mit Seitenlängen 2x bis 5 m und 2x bis 6 m, komplettes Set für 4 Holzhausseiten

Dachrinnenset für Gartenhäuser mit Stirnbrett - bei Gartenhäusern ohne Stirnbrett muss dieses bauseits für die Montage gestellt werden

Marley Dachrinnen-Sets schützen Wände und Fundamente von Garten- und Blockhäusern sicher und zuverlässig vor Schäden durch Regenwasser.

Vorteile:

  • Komplettes Set mit Rinnen, Fallrohren und Befestigungszubehör
  • Leicht zu montieren
  • Alles komplett im Set
  • witterungs-, UV- und temperaturbeständig
  • Schlagfester, hochwertiger Kunststoff
  • Top Qualität - Made in Germany
  • 10 Jahre Garantie

Set-Inhalt:

  • 10x Dachrinne, halbrund 2 m RG 100
  • 2x Dachrinne, halbrund 1 m RG 100
  • 8x Rinnenverbindungsschale RG 100
  • 8x Endstück für links und rechts RG 100
  • 38x Rinnenhalter RG 100
  • 38x Verstellwinkel für Rinnenhalter
  • 4x Stutzen RG 100 / DN 75
  • 8x Rohrbogen DN 75, 45°
  • 4x Fallrohr DN 75 2 m
  • 8x Rohrschelle mit Ringschraube
  • 4x Außenecke 90° RG 100
Produktdetails
Zubehörtyp Dachrinnen Set
Grundfarbe Grau
Material Kunststoff
Produkttyp Zubehör
Artikelnummer M6.6.00033.0
Rinneneinhang Rinneneinhang für den fachgerechten Dachabschluss – sorgt für kontrollierten Wasserablauf von der Dachfläche in die Dachrinne.
€ 390,00* € 39,00* / Stück
Rinneneinhang
Produktdetails
Produkttyp Zubehör
Zubehörtyp Zubehör Dachrinnen
Artikelnummer F1.6.01247

Ein Rinneneinhang ist der fachgerechte Abschluss an der Dachtraufe. Er ist das Übergangsblech von der Dachfläche zur Dachrinne. Der Einsatz sorgt für kontrollierten Wassereinlauf in die Dachrinne.

Material: Stahl verzinkt, pulverbeschichtet

Maße: A:60 mm, B:125 mm, D:15 mm

Länge: 200 cm

Stärke: 0,50 mm

Inkl. Spenglerschrauben

Montage und Services

Montage GartenHaus Block Ein-Raum bis 30m² Walmdach - Basic - Montage Haus
€ 3.309,00*
Montage GartenHaus Block Ein-Raum bis 30m² Walmdach - Basic - Montage Haus
Produktdetails
Produkttyp Montage neu
Zubehörtyp Montage
Artikelnummer A0.M.20027.0

GartenHaus Montageservice: Fachgerechte Montage vom Profi zum Bestpreis!

Wähle bequem aus unseren Montage-Sets das für dich passende Gesamtpaket.

Option 1  –  Basic Montage – Haus:

In diesem Set sind enthalten:

·         Der Aufbau des Produktes mit dem kompletten Aufbau ab Oberkante Fundament, inklusive allen im Bausatz enthaltenen Zubehörteilen. Tragewege zum Aufbauort bis 15 m sind im Preis inklusive.

·         Wenn du dich für das Sparset "Montagezubehör und Befestigung" entscheidest, ist auch die Montage dieses Sets inklusive. Wir empfehlen dieses dringend zum sicheren Aufbau. Es schützt dein Produkt effektiv gegen Feuchtigkeit und starken Wind.

Wenn du weiteres Zubehör montieren willst, kannst du das als Zusatzmontage dazu buchen. Die findest du direkt bei deinem Wunschprodukt..

Option 2  – Premium Montage  – Haus und Dacheindeckung:

In diesem Set sind enthalten:

·         Alle Leistungen aus Montage Option 1

·         Zusätzlich enthalten ist das fachgerechte Verlegen von Dachpappe und Dachschindeln, KSK oder EPDM-Folie. Das Material ist nicht im Lieferumfang. Bestelle hierfür eines der vorgeschlagenen Dacheindeckungs-Sets bzw. das Wunschmaterial in der vorgegebenen Menge. Bitte achte auf die richtige Anzahl/Größe der Dachbahn/Folie und Dachabschluss-Profile bzw. -Blenden. Wir beraten dich gern zu den Möglichkeiten!

·         Ein persönlicher Ansprechpartner begleitet dein Projekt von Beauftragung bis zum Abschluss der Montage.

Wenn du weiteres Zubehör montieren willst, kannst du das als Zusatzmontage dazu buchen. Die findest du direkt bei deinem Wunschprodukt..

Option 3 – Exklusiv Montage – Haus und Dacheindeckung + alle optionalen Zusatzmontagen und Sonderwünsche

Wenn du das volle Programm ohne „Wenn“ und „Aber“ willst, ist diese Option genau das Richtige für dich.

In diesem Set sind enthalten:

·         Alle Leistungen der Montage Optionen 1+2

·         Die Zusatzmontage des passenden Dachrinnensets

·         Die Zusatzmontage des Fußbodens (wenn der Fußboden im Lieferumfang des Bausatzes enthalten ist, ist die Montage bereits in der Basic-Option inbegriffen)

·         Verlegung der Bodendämmung

·         Imprägnierung während des Aufbaus (nur notwendig, wenn das Produkt nicht bereits ab Werk mit einer Imprägnierung versehen wurde)

·         Längere Tragewege zum Aufbauort bis 40 m sind im Preis inklusive

·         Wir gehen auf deine individuellen Sonderwünsche ein und finden passende Lösungen

Bitte beachte, dass das zu verbauende Zubehör als optionales Zubehör bestellt werden muss. Wir bieten unseren Montageservice nur für Original-GartenHaus Zubehör an.

Weitere Hinweise:

Imprägnierung: Fachgerechtes (einmaliges) Auftragen von Imprägnierungsmittel (nach Aufbau) an der Außenseite des Produktes. Das Material ist nicht im Lieferumfang. Bestelle bitte hierfür PGH Holzschutzgrund Imprägnierung aus dem Zubehör in vorgeschlagener Menge oder das passende Farbenset.

Die Imprägnierung schafft – in Verbindung mit einer Holzendbehandlung in Form von Deckfarbe oder Lasur – die Basis für langanhaltenden Schutz vor holzabbauenden Pilzen, Bläuebefall, holzzerstörende Insekten/Schimmel. Damit ist der Grundstein für langjährige Freude an deinem Wunschprodukt gelegt! (Die Holzendbehandlung kann erst ca. 24 Stunden nach der Imprägnierung erfolgen und kann daher hier nicht mit angeboten werden.)

Wir weisen an dieser Stelle darauf hin, dass eine Imprägnierung ab Werk – bei vielen Modellen direkt als Variante zu wählen – einen stärkeren Schutz bietet als die Imprägnierung nach dem Aufbau. Bei der Werksimprägnierung wird das Imprägnierungsmittel in der Fertigung maschinell aufgetragen. Hierbei werden insbesondere auch Nut und Feder effektiv geschützt.

Die Imprägnierung des Hauses, ob durch unser Montageteam oder ab Werk, stellt eine Erstbehandlung dar. Für einen optimalen Schutz deines Hauses ist nach einer Trocknungszeit ein Zweitanstrich mit einer geeigneten Lasur - bzw. Deckfarbe nötig. Wir empfehlen dir hierfür unsere qualitätsgeprüften PGH-Farben und Lasuren aus unserem Zubehör-Sortiment.

Der GartenHaus Montageservice auf einen Blick: Deine Vorteile

✓ Fachgerechter Aufbau durch unsere Montage-Profis

✓ Ein fester Ansprechpartner für dein Projekt

✓ Bestpreisgarantie und Qualität vom Marktführer

Montageservice der GartenHaus GmbH: So funktioniert‘s:
Nach deiner Bestellung vereinbaren wir mit dir einen Termin, besprechen deinen Auftrag und klären alle deine Fragen.

Wir schicken dir rechtzeitig die Kontaktdaten deines Montagepartners aus deiner Region. Wenn du fachliche Fragen oder Wünsche hast, kannst du dich direkt an einen kompetenten Ansprechpartner wenden. Du stimmst die letzten Fragen mit dem Montage-Team ab und vereinbarst dann einen Termin.

Bitte beachte, dass die Aufbauteams zum Einplanen deines Montagetermins ausreichend Vorlaufszeit benötigen. Damit der Aufbau zeitnah nach der Lieferung erfolgen kann, empfiehlt es sich, die Buchung des Montageservices mit der Produktbestellung vorzunehmen. Eine spätere Nachbestellung des Montageservices ist nach individueller Absprache und erfolgter Prüfung gegebenenfalls möglich. Auch die Montage von Dachrinne, Fußbodendämmung, optionalem Fußboden, sowie die Imprägnierung sind optional in unserem Zubehör am Produkt hinzubuchbar.

Bitte hab Verständnis, dass aus Sicherheitsgründen nur die über die GartenHaus GmbH bezogenen Originalteile verbaut werden.

Für die Vorbereitung der Baustelle und für die Bestellung von Montageleistungen gibt es wichtige Infos. Diese findest du im Dokument und Link

 

Hinweis zur Buchung des richtigen Montageservices: Grundsätzlich sind am Produkt immer die richtigen Montageservice Artikel hinterlegt. Wenn du eine Montage nachträglich buchst, achte bitte bei der Auswahl auf folgende Merkmale:

·         Walmdach: Mit 4 und mehr Dachflächen (siehe Beispielbilder). Alle anderen Dächer werden als „Standarddach“ betrachtet

·         Fußboden: Viele unserer Produkte werden bereits ab Werk mit einem Fußboden ausgeliefert. Für diese Produkte ist das entsprechende Montageprodukt inkl. Fußboden zu wählen. Wenn der Fußboden nicht im Lieferumfang ist, kannst du ihn einfach als separates Zubehör dazu buchen. Für diese Fußböden ist die Zusatzmontage für Fußböden zu wählen.

·         Mehrraum: Für Gebäude mit mindestens einem, durch eine Wand getrennten Raum oder Schlafboden

·         Quadratmeteranzahl: Bezieht sich auf die Grundfläche + Dachüberhang des zu montierenden Produktes

·         Bauart:

Block bezeichnet Häuser, bei denen die Bohlen ineinandergreifend ausgeführt sind (siehe folgendes Bild)

Schraubsystem bezieht sich auf Produkte, die in Elementen oder einzelnen Bohlen ausgeführt sind und im Rahmen verschraubt werden müssen. (siehe folgendes Bild)

GartenHaus Montageservice: Fachgerechte Montage vom Profi zum Bestpreis!

Wähle bequem aus unseren Montage-Sets das für dich passende Gesamtpaket.

Option 1  –  Basic Montage – Haus:

In diesem Set sind enthalten:

·         Der Aufbau des Produktes mit dem kompletten Aufbau ab Oberkante Fundament, inklusive allen im Bausatz enthaltenen Zubehörteilen. Tragewege zum Aufbauort bis 15 m sind im Preis inklusive.

·         Wenn du dich für das Sparset "Montagezubehör und Befestigung" entscheidest, ist auch die Montage dieses Sets inklusive. Wir empfehlen dieses dringend zum sicheren Aufbau. Es schützt dein Produkt effektiv gegen Feuchtigkeit und starken Wind.

Wenn du weiteres Zubehör montieren willst, kannst du das als Zusatzmontage dazu buchen. Die findest du direkt bei deinem Wunschprodukt..

Option 2  – Premium Montage  – Haus und Dacheindeckung:

In diesem Set sind enthalten:

·         Alle Leistungen aus Montage Option 1

·         Zusätzlich enthalten ist das fachgerechte Verlegen von Dachpappe und Dachschindeln, KSK oder EPDM-Folie. Das Material ist nicht im Lieferumfang. Bestelle hierfür eines der vorgeschlagenen Dacheindeckungs-Sets bzw. das Wunschmaterial in der vorgegebenen Menge. Bitte achte auf die richtige Anzahl/Größe der Dachbahn/Folie und Dachabschluss-Profile bzw. -Blenden. Wir beraten dich gern zu den Möglichkeiten!

·         Ein persönlicher Ansprechpartner begleitet dein Projekt von Beauftragung bis zum Abschluss der Montage.

Wenn du weiteres Zubehör montieren willst, kannst du das als Zusatzmontage dazu buchen. Die findest du direkt bei deinem Wunschprodukt..

Option 3 – Exklusiv Montage – Haus und Dacheindeckung + alle optionalen Zusatzmontagen und Sonderwünsche

Wenn du das volle Programm ohne „Wenn“ und „Aber“ willst, ist diese Option genau das Richtige für dich.

In diesem Set sind enthalten:

·         Alle Leistungen der Montage Optionen 1+2

·         Die Zusatzmontage des passenden Dachrinnensets

·         Die Zusatzmontage des Fußbodens (wenn der Fußboden im Lieferumfang des Bausatzes enthalten ist, ist die Montage bereits in der Basic-Option inbegriffen)

·         Verlegung der Bodendämmung

·         Imprägnierung während des Aufbaus (nur notwendig, wenn das Produkt nicht bereits ab Werk mit einer Imprägnierung versehen wurde)

·         Längere Tragewege zum Aufbauort bis 40 m sind im Preis inklusive

·         Wir gehen auf deine individuellen Sonderwünsche ein und finden passende Lösungen

Bitte beachte, dass das zu verbauende Zubehör als optionales Zubehör bestellt werden muss. Wir bieten unseren Montageservice nur für Original-GartenHaus Zubehör an.

Weitere Hinweise:

Imprägnierung: Fachgerechtes (einmaliges) Auftragen von Imprägnierungsmittel (nach Aufbau) an der Außenseite des Produktes. Das Material ist nicht im Lieferumfang. Bestelle bitte hierfür PGH Holzschutzgrund Imprägnierung aus dem Zubehör in vorgeschlagener Menge oder das passende Farbenset.

Die Imprägnierung schafft – in Verbindung mit einer Holzendbehandlung in Form von Deckfarbe oder Lasur – die Basis für langanhaltenden Schutz vor holzabbauenden Pilzen, Bläuebefall, holzzerstörende Insekten/Schimmel. Damit ist der Grundstein für langjährige Freude an deinem Wunschprodukt gelegt! (Die Holzendbehandlung kann erst ca. 24 Stunden nach der Imprägnierung erfolgen und kann daher hier nicht mit angeboten werden.)

Wir weisen an dieser Stelle darauf hin, dass eine Imprägnierung ab Werk – bei vielen Modellen direkt als Variante zu wählen – einen stärkeren Schutz bietet als die Imprägnierung nach dem Aufbau. Bei der Werksimprägnierung wird das Imprägnierungsmittel in der Fertigung maschinell aufgetragen. Hierbei werden insbesondere auch Nut und Feder effektiv geschützt.

Die Imprägnierung des Hauses, ob durch unser Montageteam oder ab Werk, stellt eine Erstbehandlung dar. Für einen optimalen Schutz deines Hauses ist nach einer Trocknungszeit ein Zweitanstrich mit einer geeigneten Lasur - bzw. Deckfarbe nötig. Wir empfehlen dir hierfür unsere qualitätsgeprüften PGH-Farben und Lasuren aus unserem Zubehör-Sortiment.

Der GartenHaus Montageservice auf einen Blick: Deine Vorteile

✓ Fachgerechter Aufbau durch unsere Montage-Profis

✓ Ein fester Ansprechpartner für dein Projekt

✓ Bestpreisgarantie und Qualität vom Marktführer

Montageservice der GartenHaus GmbH: So funktioniert‘s:
Nach deiner Bestellung vereinbaren wir mit dir einen Termin, besprechen deinen Auftrag und klären alle deine Fragen.

Wir schicken dir rechtzeitig die Kontaktdaten deines Montagepartners aus deiner Region. Wenn du fachliche Fragen oder Wünsche hast, kannst du dich direkt an einen kompetenten Ansprechpartner wenden. Du stimmst die letzten Fragen mit dem Montage-Team ab und vereinbarst dann einen Termin.

Bitte beachte, dass die Aufbauteams zum Einplanen deines Montagetermins ausreichend Vorlaufszeit benötigen. Damit der Aufbau zeitnah nach der Lieferung erfolgen kann, empfiehlt es sich, die Buchung des Montageservices mit der Produktbestellung vorzunehmen. Eine spätere Nachbestellung des Montageservices ist nach individueller Absprache und erfolgter Prüfung gegebenenfalls möglich. Auch die Montage von Dachrinne, Fußbodendämmung, optionalem Fußboden, sowie die Imprägnierung sind optional in unserem Zubehör am Produkt hinzubuchbar.

Bitte hab Verständnis, dass aus Sicherheitsgründen nur die über die GartenHaus GmbH bezogenen Originalteile verbaut werden.

Für die Vorbereitung der Baustelle und für die Bestellung von Montageleistungen gibt es wichtige Infos. Diese findest du im Dokument und Link

 

Hinweis zur Buchung des richtigen Montageservices: Grundsätzlich sind am Produkt immer die richtigen Montageservice Artikel hinterlegt. Wenn du eine Montage nachträglich buchst, achte bitte bei der Auswahl auf folgende Merkmale:

·         Walmdach: Mit 4 und mehr Dachflächen (siehe Beispielbilder). Alle anderen Dächer werden als „Standarddach“ betrachtet

·         Fußboden: Viele unserer Produkte werden bereits ab Werk mit einem Fußboden ausgeliefert. Für diese Produkte ist das entsprechende Montageprodukt inkl. Fußboden zu wählen. Wenn der Fußboden nicht im Lieferumfang ist, kannst du ihn einfach als separates Zubehör dazu buchen. Für diese Fußböden ist die Zusatzmontage für Fußböden zu wählen.

·         Mehrraum: Für Gebäude mit mindestens einem, durch eine Wand getrennten Raum oder Schlafboden

·         Quadratmeteranzahl: Bezieht sich auf die Grundfläche + Dachüberhang des zu montierenden Produktes

·         Bauart:

Block bezeichnet Häuser, bei denen die Bohlen ineinandergreifend ausgeführt sind (siehe folgendes Bild)

Schraubsystem bezieht sich auf Produkte, die in Elementen oder einzelnen Bohlen ausgeführt sind und im Rahmen verschraubt werden müssen. (siehe folgendes Bild)

Produktdetails
Produkttyp Montage neu
Zubehörtyp Montage
Artikelnummer A0.M.20027.1

GartenHaus Montageservice: Fachgerechte Montage vom Profi zum Bestpreis!

Wähle bequem aus unseren Montage-Sets das für dich passende Gesamtpaket.

Option 1  –  Basic Montage – Haus:

In diesem Set sind enthalten:

·         Der Aufbau des Produktes mit dem kompletten Aufbau ab Oberkante Fundament, inklusive allen im Bausatz enthaltenen Zubehörteilen. Tragewege zum Aufbauort bis 15 m sind im Preis inklusive.

·         Wenn du dich für das Sparset "Montagezubehör und Befestigung" entscheidest, ist auch die Montage dieses Sets inklusive. Wir empfehlen dieses dringend zum sicheren Aufbau. Es schützt dein Produkt effektiv gegen Feuchtigkeit und starken Wind.

Wenn du weiteres Zubehör montieren willst, kannst du das als Zusatzmontage dazu buchen. Die findest du direkt bei deinem Wunschprodukt..

Option 2  – Premium Montage  – Haus und Dacheindeckung:

In diesem Set sind enthalten:

·         Alle Leistungen aus Montage Option 1

·         Zusätzlich enthalten ist das fachgerechte Verlegen von Dachpappe und Dachschindeln, KSK oder EPDM-Folie. Das Material ist nicht im Lieferumfang. Bestelle hierfür eines der vorgeschlagenen Dacheindeckungs-Sets bzw. das Wunschmaterial in der vorgegebenen Menge. Bitte achte auf die richtige Anzahl/Größe der Dachbahn/Folie und Dachabschluss-Profile bzw. -Blenden. Wir beraten dich gern zu den Möglichkeiten!

·         Ein persönlicher Ansprechpartner begleitet dein Projekt von Beauftragung bis zum Abschluss der Montage.

Wenn du weiteres Zubehör montieren willst, kannst du das als Zusatzmontage dazu buchen. Die findest du direkt bei deinem Wunschprodukt..

Option 3 – Exklusiv Montage – Haus und Dacheindeckung + alle optionalen Zusatzmontagen und Sonderwünsche

Wenn du das volle Programm ohne „Wenn“ und „Aber“ willst, ist diese Option genau das Richtige für dich.

In diesem Set sind enthalten:

·         Alle Leistungen der Montage Optionen 1+2

·         Die Zusatzmontage des passenden Dachrinnensets

·         Die Zusatzmontage des Fußbodens (wenn der Fußboden im Lieferumfang des Bausatzes enthalten ist, ist die Montage bereits in der Basic-Option inbegriffen)

·         Verlegung der Bodendämmung

·         Imprägnierung während des Aufbaus (nur notwendig, wenn das Produkt nicht bereits ab Werk mit einer Imprägnierung versehen wurde)

·         Längere Tragewege zum Aufbauort bis 40 m sind im Preis inklusive

·         Wir gehen auf deine individuellen Sonderwünsche ein und finden passende Lösungen

Bitte beachte, dass das zu verbauende Zubehör als optionales Zubehör bestellt werden muss. Wir bieten unseren Montageservice nur für Original-GartenHaus Zubehör an.

Weitere Hinweise:

Imprägnierung: Fachgerechtes (einmaliges) Auftragen von Imprägnierungsmittel (nach Aufbau) an der Außenseite des Produktes. Das Material ist nicht im Lieferumfang. Bestelle bitte hierfür PGH Holzschutzgrund Imprägnierung aus dem Zubehör in vorgeschlagener Menge oder das passende Farbenset.

Die Imprägnierung schafft – in Verbindung mit einer Holzendbehandlung in Form von Deckfarbe oder Lasur – die Basis für langanhaltenden Schutz vor holzabbauenden Pilzen, Bläuebefall, holzzerstörende Insekten/Schimmel. Damit ist der Grundstein für langjährige Freude an deinem Wunschprodukt gelegt! (Die Holzendbehandlung kann erst ca. 24 Stunden nach der Imprägnierung erfolgen und kann daher hier nicht mit angeboten werden.)

Wir weisen an dieser Stelle darauf hin, dass eine Imprägnierung ab Werk – bei vielen Modellen direkt als Variante zu wählen – einen stärkeren Schutz bietet als die Imprägnierung nach dem Aufbau. Bei der Werksimprägnierung wird das Imprägnierungsmittel in der Fertigung maschinell aufgetragen. Hierbei werden insbesondere auch Nut und Feder effektiv geschützt.

Die Imprägnierung des Hauses, ob durch unser Montageteam oder ab Werk, stellt eine Erstbehandlung dar. Für einen optimalen Schutz deines Hauses ist nach einer Trocknungszeit ein Zweitanstrich mit einer geeigneten Lasur - bzw. Deckfarbe nötig. Wir empfehlen dir hierfür unsere qualitätsgeprüften PGH-Farben und Lasuren aus unserem Zubehör-Sortiment.

Der GartenHaus Montageservice auf einen Blick: Deine Vorteile

✓ Fachgerechter Aufbau durch unsere Montage-Profis

✓ Ein fester Ansprechpartner für dein Projekt

✓ Bestpreisgarantie und Qualität vom Marktführer

Montageservice der GartenHaus GmbH: So funktioniert‘s:
Nach deiner Bestellung vereinbaren wir mit dir einen Termin, besprechen deinen Auftrag und klären alle deine Fragen.

Wir schicken dir rechtzeitig die Kontaktdaten deines Montagepartners aus deiner Region. Wenn du fachliche Fragen oder Wünsche hast, kannst du dich direkt an einen kompetenten Ansprechpartner wenden. Du stimmst die letzten Fragen mit dem Montage-Team ab und vereinbarst dann einen Termin.

Bitte beachte, dass die Aufbauteams zum Einplanen deines Montagetermins ausreichend Vorlaufszeit benötigen. Damit der Aufbau zeitnah nach der Lieferung erfolgen kann, empfiehlt es sich, die Buchung des Montageservices mit der Produktbestellung vorzunehmen. Eine spätere Nachbestellung des Montageservices ist nach individueller Absprache und erfolgter Prüfung gegebenenfalls möglich. Auch die Montage von Dachrinne, Fußbodendämmung, optionalem Fußboden, sowie die Imprägnierung sind optional in unserem Zubehör am Produkt hinzubuchbar.

Bitte hab Verständnis, dass aus Sicherheitsgründen nur die über die GartenHaus GmbH bezogenen Originalteile verbaut werden.

Für die Vorbereitung der Baustelle und für die Bestellung von Montageleistungen gibt es wichtige Infos. Diese findest du im Dokument und Link

 

Hinweis zur Buchung des richtigen Montageservices: Grundsätzlich sind am Produkt immer die richtigen Montageservice Artikel hinterlegt. Wenn du eine Montage nachträglich buchst, achte bitte bei der Auswahl auf folgende Merkmale:

·         Walmdach: Mit 4 und mehr Dachflächen (siehe Beispielbilder). Alle anderen Dächer werden als „Standarddach“ betrachtet

·         Fußboden: Viele unserer Produkte werden bereits ab Werk mit einem Fußboden ausgeliefert. Für diese Produkte ist das entsprechende Montageprodukt inkl. Fußboden zu wählen. Wenn der Fußboden nicht im Lieferumfang ist, kannst du ihn einfach als separates Zubehör dazu buchen. Für diese Fußböden ist die Zusatzmontage für Fußböden zu wählen.

·         Mehrraum: Für Gebäude mit mindestens einem, durch eine Wand getrennten Raum oder Schlafboden

·         Quadratmeteranzahl: Bezieht sich auf die Grundfläche + Dachüberhang des zu montierenden Produktes

·         Bauart:

Block bezeichnet Häuser, bei denen die Bohlen ineinandergreifend ausgeführt sind (siehe folgendes Bild)

Schraubsystem bezieht sich auf Produkte, die in Elementen oder einzelnen Bohlen ausgeführt sind und im Rahmen verschraubt werden müssen. (siehe folgendes Bild)

Produktdetails
Produkttyp Montage neu
Zubehörtyp Montage
Artikelnummer A0.M.20027.0

GartenHaus Montageservice: Fachgerechte Montage vom Profi zum Bestpreis!

Wähle bequem aus unseren Montage-Sets das für dich passende Gesamtpaket.

Option 1  –  Basic Montage – Haus:

In diesem Set sind enthalten:

·         Der Aufbau des Produktes mit dem kompletten Aufbau ab Oberkante Fundament, inklusive allen im Bausatz enthaltenen Zubehörteilen. Tragewege zum Aufbauort bis 15 m sind im Preis inklusive.

·         Wenn du dich für das Sparset "Montagezubehör und Befestigung" entscheidest, ist auch die Montage dieses Sets inklusive. Wir empfehlen dieses dringend zum sicheren Aufbau. Es schützt dein Produkt effektiv gegen Feuchtigkeit und starken Wind.

Wenn du weiteres Zubehör montieren willst, kannst du das als Zusatzmontage dazu buchen. Die findest du direkt bei deinem Wunschprodukt..

Option 2  – Premium Montage  – Haus und Dacheindeckung:

In diesem Set sind enthalten:

·         Alle Leistungen aus Montage Option 1

·         Zusätzlich enthalten ist das fachgerechte Verlegen von Dachpappe und Dachschindeln, KSK oder EPDM-Folie. Das Material ist nicht im Lieferumfang. Bestelle hierfür eines der vorgeschlagenen Dacheindeckungs-Sets bzw. das Wunschmaterial in der vorgegebenen Menge. Bitte achte auf die richtige Anzahl/Größe der Dachbahn/Folie und Dachabschluss-Profile bzw. -Blenden. Wir beraten dich gern zu den Möglichkeiten!

·         Ein persönlicher Ansprechpartner begleitet dein Projekt von Beauftragung bis zum Abschluss der Montage.

Wenn du weiteres Zubehör montieren willst, kannst du das als Zusatzmontage dazu buchen. Die findest du direkt bei deinem Wunschprodukt..

Option 3 – Exklusiv Montage – Haus und Dacheindeckung + alle optionalen Zusatzmontagen und Sonderwünsche

Wenn du das volle Programm ohne „Wenn“ und „Aber“ willst, ist diese Option genau das Richtige für dich.

In diesem Set sind enthalten:

·         Alle Leistungen der Montage Optionen 1+2

·         Die Zusatzmontage des passenden Dachrinnensets

·         Die Zusatzmontage des Fußbodens (wenn der Fußboden im Lieferumfang des Bausatzes enthalten ist, ist die Montage bereits in der Basic-Option inbegriffen)

·         Verlegung der Bodendämmung

·         Imprägnierung während des Aufbaus (nur notwendig, wenn das Produkt nicht bereits ab Werk mit einer Imprägnierung versehen wurde)

·         Längere Tragewege zum Aufbauort bis 40 m sind im Preis inklusive

·         Wir gehen auf deine individuellen Sonderwünsche ein und finden passende Lösungen

Bitte beachte, dass das zu verbauende Zubehör als optionales Zubehör bestellt werden muss. Wir bieten unseren Montageservice nur für Original-GartenHaus Zubehör an.

Weitere Hinweise:

Imprägnierung: Fachgerechtes (einmaliges) Auftragen von Imprägnierungsmittel (nach Aufbau) an der Außenseite des Produktes. Das Material ist nicht im Lieferumfang. Bestelle bitte hierfür PGH Holzschutzgrund Imprägnierung aus dem Zubehör in vorgeschlagener Menge oder das passende Farbenset.

Die Imprägnierung schafft – in Verbindung mit einer Holzendbehandlung in Form von Deckfarbe oder Lasur – die Basis für langanhaltenden Schutz vor holzabbauenden Pilzen, Bläuebefall, holzzerstörende Insekten/Schimmel. Damit ist der Grundstein für langjährige Freude an deinem Wunschprodukt gelegt! (Die Holzendbehandlung kann erst ca. 24 Stunden nach der Imprägnierung erfolgen und kann daher hier nicht mit angeboten werden.)

Wir weisen an dieser Stelle darauf hin, dass eine Imprägnierung ab Werk – bei vielen Modellen direkt als Variante zu wählen – einen stärkeren Schutz bietet als die Imprägnierung nach dem Aufbau. Bei der Werksimprägnierung wird das Imprägnierungsmittel in der Fertigung maschinell aufgetragen. Hierbei werden insbesondere auch Nut und Feder effektiv geschützt.

Die Imprägnierung des Hauses, ob durch unser Montageteam oder ab Werk, stellt eine Erstbehandlung dar. Für einen optimalen Schutz deines Hauses ist nach einer Trocknungszeit ein Zweitanstrich mit einer geeigneten Lasur - bzw. Deckfarbe nötig. Wir empfehlen dir hierfür unsere qualitätsgeprüften PGH-Farben und Lasuren aus unserem Zubehör-Sortiment.

Der GartenHaus Montageservice auf einen Blick: Deine Vorteile

✓ Fachgerechter Aufbau durch unsere Montage-Profis

✓ Ein fester Ansprechpartner für dein Projekt

✓ Bestpreisgarantie und Qualität vom Marktführer

Montageservice der GartenHaus GmbH: So funktioniert‘s:
Nach deiner Bestellung vereinbaren wir mit dir einen Termin, besprechen deinen Auftrag und klären alle deine Fragen.

Wir schicken dir rechtzeitig die Kontaktdaten deines Montagepartners aus deiner Region. Wenn du fachliche Fragen oder Wünsche hast, kannst du dich direkt an einen kompetenten Ansprechpartner wenden. Du stimmst die letzten Fragen mit dem Montage-Team ab und vereinbarst dann einen Termin.

Bitte beachte, dass die Aufbauteams zum Einplanen deines Montagetermins ausreichend Vorlaufszeit benötigen. Damit der Aufbau zeitnah nach der Lieferung erfolgen kann, empfiehlt es sich, die Buchung des Montageservices mit der Produktbestellung vorzunehmen. Eine spätere Nachbestellung des Montageservices ist nach individueller Absprache und erfolgter Prüfung gegebenenfalls möglich. Auch die Montage von Dachrinne, Fußbodendämmung, optionalem Fußboden, sowie die Imprägnierung sind optional in unserem Zubehör am Produkt hinzubuchbar.

Bitte hab Verständnis, dass aus Sicherheitsgründen nur die über die GartenHaus GmbH bezogenen Originalteile verbaut werden.

Für die Vorbereitung der Baustelle und für die Bestellung von Montageleistungen gibt es wichtige Infos. Diese findest du im Dokument und Link

 

Hinweis zur Buchung des richtigen Montageservices: Grundsätzlich sind am Produkt immer die richtigen Montageservice Artikel hinterlegt. Wenn du eine Montage nachträglich buchst, achte bitte bei der Auswahl auf folgende Merkmale:

·         Walmdach: Mit 4 und mehr Dachflächen (siehe Beispielbilder). Alle anderen Dächer werden als „Standarddach“ betrachtet

·         Fußboden: Viele unserer Produkte werden bereits ab Werk mit einem Fußboden ausgeliefert. Für diese Produkte ist das entsprechende Montageprodukt inkl. Fußboden zu wählen. Wenn der Fußboden nicht im Lieferumfang ist, kannst du ihn einfach als separates Zubehör dazu buchen. Für diese Fußböden ist die Zusatzmontage für Fußböden zu wählen.

·         Mehrraum: Für Gebäude mit mindestens einem, durch eine Wand getrennten Raum oder Schlafboden

·         Quadratmeteranzahl: Bezieht sich auf die Grundfläche + Dachüberhang des zu montierenden Produktes

·         Bauart:

Block bezeichnet Häuser, bei denen die Bohlen ineinandergreifend ausgeführt sind (siehe folgendes Bild)

Schraubsystem bezieht sich auf Produkte, die in Elementen oder einzelnen Bohlen ausgeführt sind und im Rahmen verschraubt werden müssen. (siehe folgendes Bild)

Produktdetails
Produkttyp Montage neu
Zubehörtyp Montage
Artikelnummer A0.M.20027.2
Montage Dachrinne - 4 Dachseiten
€ 419,00*
Montage Dachrinne - 4 Dachseiten
Produktdetails
Zubehörtyp Montage
Artikelnummer A0.M.20222
Produkttyp Montage

Du hast dich zum Schutz und für die Langlebigkeit deines Produkts für ein passendes Dachentwässerungssystem entschieden.

Dann buch die professionelle Montage vom Fachmann gleich mit hinzu.. (Bei diesem Artikel handelt es sich um eine Zusatzmontage, die nur in Verbindung mit einem Montageauftrag für eines unserer Hauptprodukte gebucht werden kann)

Was ist in diesem Montageprodukt enthalten:

-          Fachgerechte Platzierung, Ausrichtung und Montage unserer Dachrinnen- bzw. Fallrohrsets

-          Montage der zusätzlich erhältlichen Rinneneinhänge (nur bei Dachrinnensets notwendig - optionales Zubehör)

Wählen die für dein Produkt passende Variante. Bei Dachrinnensets ist die Anzahl der zu entwässernden Dachseiten (1, 2 oder 4) ausschlaggebend, bei den Fallrohrsets die Anzahl der empfohlenen und bestellten Sets.

Achtung: Die Dachrinne bzw. das Fallrohr ist nicht enthalten. Bestelle hierzu eine der empfohlenen Dachrinnen bzw. Fallrohre aus unserem Zubehör. Wir empfehlen für unsere Dachrinnensets zusätzlich die Rinneneinhänge zu bestellen. Ein Rinneneinhang ist der fachgerechte Abschluss an der Dachtraufe. Er ist das Übergangsblech von der Dachfläche zur Dachrinne und sein Einsatz sorgt für kontrollierten Wassereinlauf in die Dachrinne. Die Montage der Rinneneinhänge ist im Montagepreis der Dachrinne enthalten.

Der GartenHaus Montageservice auf einen Blick: Deine Vorteile

✓ Fachgerechter Aufbau durch unsere Montage-Profis

✓ Ein fester Ansprechpartner für dein Projekt

✓ Bestpreisgarantie und Qualität vom Marktführer

Montageservice der GartenHaus GmbH: So funktioniert‘s:
Nach deiner Bestellung vereinbaren wir mit dir einen Termin, besprechen deinen Auftrag und klären alle deine Fragen.

Wir schicken dir rechtzeitig die Kontaktdaten deines Montagepartners aus deiner Region. Wenn du fachliche Fragen oder Wünsche hast, kannst du dich direkt an einen kompetenten Ansprechpartner wenden. Du stimmst die letzten Fragen mit dem Montage-Team ab und vereinbarst dann einen Termin.

Bitte beachte, dass die Aufbauteams zum Einplanen deines Montagetermins ausreichend Vorlaufszeit benötigen. Damit der Aufbau zeitnah nach der Lieferung erfolgen kann, empfiehlt es sich, die Buchung des Montageservices mit der Produktbestellung vorzunehmen. Eine spätere Nachbestellung des Montageservices ist nach individueller Absprache und erfolgter Prüfung gegebenenfalls möglich.

Bitte hab Verständnis, dass aus Sicherheitsgründen nur die über die GartenHaus GmbH bezogenen Originalteile verbaut werden.

Für die Vorbereitung der Baustelle und für die Bestellung von Montageleistungen gibt es wichtige Infos. Diese findest du im Dokument und Lin

Montage Fußboden für 6 Sets
€ 239,00*
Montage Fußboden für 6 Sets
Produktdetails
Zubehörtyp Montage
Produkttyp Montage
Artikelnummer A0.M.20245

Gerade der Fußboden, die Basis deines Produktes, ist im Laufe der Zeit enormen Kräften und Belastungen ausgesetzt. Umso wichtiger ist die professionelle Montage vom Fachmann.
Überlass nichts dem Zufall und buch den Artikel einfach zur Hausmontage dazu. (Bei diesem Artikel handelt es sich um eine Zusatzmontage, die nur in Verbindung mit einem Montageauftrag für eines unserer Hauptprodukte gebucht werden kann)

Was ist in diesem Montageprodukt enthalten:

-          Aufbau und Zuschnitt des Fundamentrahmens

-          Montage der Fußbodenbretter und der Fußbodenleisten

Wählen die für dein Produkt passende Variante. Entscheidend ist hierfür die Anzahl der dein dein Haus bestellten und notwendigen Fußbodensets (ein Set reicht für je 3m² Fußboden).


Achtung:Wenn der Fußboden schon im Lieferumfang des von dir bestellten Hauses enthalten ist, ist die Montage im Montagepreis für dein Haus mit drin. Bitte wähle diese Montage nur, wenn du den optionalen Fußboden dazu bestellst. Der Fußboden und das Montagematerial ist nicht in diesem Montageprodukt inkludiert und muss zusätzlich bestellt werden.

Der GartenHaus Montageservice auf einen Blick: Deine Vorteile

✓ Fachgerechter Aufbau durch unsere Montage-Profis

✓ Ein fester Ansprechpartner für dein Projekt

✓ Bestpreisgarantie und Qualität vom Marktführer

Montageservice der GartenHaus GmbH: So funktioniert‘s:
Nach deiner Bestellung vereinbaren wir mit dir einen Termin, besprechen deinen Auftrag und klären alle deine Fragen.

Wir schicken dir rechtzeitig die Kontaktdaten deines Montagepartners aus deiner Region. Wenn du fachliche Fragen oder Wünsche hast, kannst du dich direkt an einen kompetenten Ansprechpartner wenden. Du stimmst die letzten Fragen mit dem Montage-Team ab und vereinbarst dann einen Termin.

Bitte beachte, dass die Aufbauteams zum Einplanen deines Montagetermins ausreichend Vorlaufszeit benötigen. Damit der Aufbau zeitnah nach der Lieferung erfolgen kann, empfiehlt es sich, die Buchung des Montageservices mit der Produktbestellung vorzunehmen. Eine spätere Nachbestellung des Montageservices ist nach individueller Absprache und erfolgter Prüfung gegebenenfalls möglich.

Bitte hab Verständnis, dass aus Sicherheitsgründen nur die über die GartenHaus GmbH bezogenen Originalteile verbaut werden.

Für die Vorbereitung der Baustelle und für die Bestellung von Montageleistungen gibt es wichtige Infos. Diese findest du im Dokument und Link

Montage Boden-Dämmung bis 20m²
€ 319,00*
Montage Boden-Dämmung bis 20m²
Produktdetails
Zubehörtyp Montage
Produkttyp Montage
Artikelnummer A0.M.20262

Eine fachgerechte Dämmung des Fußbodens ist eine wertvolle Investition und gerade zur kalten Jahreszeit ist eine gute Isolierung empfehlenswert. Freu Dich auf eine warme und gemütliche Residenz in Deinem Garten und buche diesen Artikel ganz einfach zur Hausmontage dazu.

Was ist in diesem Montageprodukt enthalten:

-          Individueller Zuschnitt des Dämmmaterials

-          Befestigung der Dämmplatten am Fundamentrahmen

-          Luftdichtes Abkleben der Platten auf dem Rahmen zur optimalen Isolierwirkung

Wähle die Grundfläche, die Du isolieren willst, passend zum Produkt aus (bis 10m², bis 15m², usw.). Entscheidend ist die Grundfläche des zu isolierenden Gebäudes.


Achtung: Das Material zur Bodendämmung ist nicht enthalten. Bestelle hierzu ein empfohlenes Dämmset aus unserem Zubehör. Bei mehrstöckigen Häusern wird nur der Boden vom Untergeschoss gedämmt.

Der GartenHaus Montageservice auf einen Blick: Deine Vorteile

✓ Fachgerechter Aufbau durch unsere Montage-Profis

✓ Ein fester Ansprechpartner für dein Projekt

✓ Bestpreisgarantie und Qualität vom Marktführer

Montageservice der GartenHaus GmbH: So funktioniert‘s:
Nach deiner Bestellung vereinbaren wir mit dir einen Termin, besprechen deinen Auftrag und klären alle deine Fragen.

Wir schicken dir rechtzeitig die Kontaktdaten deines Montagepartners aus deiner Region. Wenn du fachliche Fragen oder Wünsche hast, kannst du dich direkt an einen kompetenten Ansprechpartner wenden. Du stimmst die letzten Fragen mit dem Montage-Team ab und vereinbarst dann einen Termin.

Bitte beachte, dass die Aufbauteams zum Einplanen deines Montagetermins ausreichend Vorlaufszeit benötigen. Damit der Aufbau zeitnah nach der Lieferung erfolgen kann, empfiehlt es sich, die Buchung des Montageservices mit der Produktbestellung vorzunehmen. Eine spätere Nachbestellung des Montageservices ist nach individueller Absprache und erfolgter Prüfung gegebenenfalls möglich.

Bitte hab Verständnis, dass aus Sicherheitsgründen nur die über die GartenHaus GmbH bezogenen Originalteile verbaut werden.

Für die Vorbereitung der Baustelle und für die Bestellung von Montageleistungen gibt es wichtige Infos. Diese findest du im Dokument und Link

Komfort Garantie
€ 69,00*
Komfort Garantie
Produktdetails
Produkttyp Montage neu
Artikelnummer GAT_Komfort

Welche Produkte sind durch die Gartenhaus.com Garantie abgedeckt?

Unsere Komfort Garantie gilt ausschließlich für privat genutzte Produkte. Dazu zählen: 

  • Garten- & Gerätehäuser – dein Rückzugsort oder einfache Lösung zur Aufbewahrung
  • Saunen – für wohltuende Entspannung und Wellness im eigenen Zuhause
  • Kinderspielgeräte – Spiel und Spaß für Groß und Klein
  • Holzpavillons - für dein persönliches Paradies im Garten
  • Carports – zuverlässiger Schutz für dein Fahrzeug vor Regen, Schnee und Sonne
  • Garagen – sicherer Stellplatz mit zusätzlichem Stauraum für deine Bedürfnisse

Mit unserer Garantie kannst du dich auf die Qualität deines Produkts verlassen. Sollte doch einmal etwas nicht passen, sind wir schnell und unkompliziert für dich da.

Was beinhaltet die Komfort Garantie?

Dank unserer Komfort Garantie musst du dir keine Sorgen machen. Geht etwas kaputt, bekommst du von uns die passenden Ersatzteile für folgende Bereiche: 

  • Türen (Glasschäden bis zu 200 €)
  • Fenster (Glasschäden bis zu 200 €)
  • Dachrinne – für einen sicheren Wasserablauf
  • Türschloss – für zuverlässigen Schutz
  • Beschläge – falls kleine, aber wichtige Teile ersetzt werden müssen
  • Dacheindeckung (Dachpappe, Dachschindeln, KSK) – für optimalen Schutz vor Wind und Wetter

Wichtig:

Die Komfort-Garantie umfasst ausschließlich die Lieferung der Ersatzteile. Der Einbau liegt in deiner Hand. Für eine professionelle Montage wähle die Premium-Garantie. 

Mit der Komfort Garantie bist du gut abgesichert und kannst dein Gartenhaus.com-Produkt unbesorgt genießen.

Garantiebedingungen

Alle Details und mehr Infos zur Komfort Garantie

Noch Fragen? Unser Kundenservice ist jederzeit für dich da!

Premium Garantie
€ 609,00*
Premium Garantie
Produktdetails
Produkttyp Montage neu
Artikelnummer GAT_Premium

Für welche Produkte gilt die Gartenhaus.com Garantie?

Unsere Premium Garantie gilt ausschließlich für Produkte, die du privat nutzt. Dazu gehören:

  • Garten- & Gerätehäuser – dein Rückzugsort oder einfache Lösung zur Aufbewahrung
  • Saunen – für wohltuende Entspannung und Wellness im eigenen Zuhause
  • Kinderspielgeräte – Spiel und Spaß für Groß und Klein
  • Holzpavillons - für dein persönliches Paradies im Garten
  • Carports – zuverlässiger Schutz für dein Fahrzeug vor Regen, Schnee und Sonne
  • Garagen – sicherer Stellplatz mit zusätzlichem Stauraum für deine Bedürfnisse

Mit unserer Garantie kannst du sicher sein, dass dein Produkt hochwertig verarbeitet ist und wir dir im Fall der Fälle schnell und unkompliziert weiterhelfen.

Was beinhaltet die Premium Garantie?

Unsere Premium Garantie sorgt dafür, dass du dich entspannt zurücklehnen kannst. Falls ein Problem auftritt, schicken wir dir Ersatzteile für folgende Komponenten:

  • Türen (Glasschäden bis zu 200 €)
  • Fenster (Glasschäden bis zu 200 €)
  • Dachrinne – für einen sicheren Wasserablauf
  • Türschloss – für zuverlässigen Schutz
  • Beschläge – falls kleine, aber wichtige Teile ersetzt werden müssen
  • Dacheindeckung (Dachpappe, Dachschindeln, KSK) – für optimalen Schutz vor Wind und Wetter

Extra-Service in der Premium Garantie:

Inklusive Handwerksservice & Ersatzteileinbau: Du bekommst nicht nur die Ersatzteile, sondern auch den professionellen Einbau dazu!

Mit unserer Premium Garantie bist du rundum abgesichert – für langanhaltende Freude an deinem Produkt.

Garantiebedingungen

Alle Details und mehr Infos zur Premium Garantie

Noch Fragen? Unser Kundenservice ist jederzeit für dich da!

 

Zubehör für dein Produkt

PGH Hartwachsöl 2,5 L Perfekter Oberflächenschutz für deinen Holzfußboden - sorgt für eine widerstandsfähige und natürliche Oberfläche
€ 79,00*
PGH Hartwachsöl 2,5 L
Produktdetails
Produkttyp Zubehör
Artikelnummer R9.6.00002

Hochwertiges Hartwachsöl für Innenbereich

Unser Hartwachsöl bietet eine hochwertige Lösung für die Grundierung und Behandlung verschiedener saugfähiger Untergründe im Innenbereich. Mit einer seidenmatten, strapazierfähigen Oberfläche, die natürliche Strukturen belebt und Tönungen vertieft, bietet es beste Ergebnisse für Holz-, Kork- und Steinböden sowie andere Oberflächen. Einfach in der Anwendung und getestet gemäß höchsten Standards, ist es die ideale Wahl für professionelle Ergebnisse.

Artikeldetails zum Hartwachsöl:

  • Anwendung: Grundierung und Behandlung saugfähiger Untergründe im Innenbereich.

  • Eigenschaften: Seidenmatte Oberfläche, vertieft die Tönung, wasserabweisend.
  • Geprüft auf Chemikalienbeständigkeit und Migration.
  • Inhaltsstoffe: Leinöl, Holzöl, Ricinöl, Naturharzester, weitere.
  • VOC-Gehalt: Max. 440 g/l (EU-Grenzwert: max. 500 g/l).
  • Verarbeitung: Vor Gebrauch aufschütteln, dünn auftragen, polieren.
  • Trocknungszeit: Ca. 6-12 Std., überstreichbar nach 16-24 Std.
  • Verbrauch: 30-50 g/m²; Ergiebigkeit ca. 20 m²/l.
  • Lagerung: Kühl, trocken, ungeöffnet min. 24 Monate haltbar.
  • Entsorgung: Gemäß örtlichen Vorschriften.
  • Hinweise: Farbangaben unverbindlich, Probeanstrich empfohlen.

 

 

Häufige Fragen zu dem Produkt

Welche Dacheindeckung wähle ich für das Gartenhaus Sunrise?

Ein Walmdach wird häufig mit Bitumenschindeln, Dachschindeln aus Kunststoff oder Holz oder Metallprofilen eingedeckt. Da alle Dachseiten geneigt sind, ist das Dach sehr windstabil und erlaubt eine langlebige Deckung. Wichtig ist eine saubere Verarbeitung der Kanten und Grate, damit das Dach dauerhaft dicht bleibt. Bei Fragen hilft dir unser Beratungs-Team gerne und nähere Infos erhältst du in unserem Ratgeber.
>> Ratgeber: Gartenhaus Dacheindeckung

Brauche ich für das Gartenhaus Sunrise eine Baugenehmigung?

Für ein Gartenhaus dieser Größe kann eine Anzeige oder vereinfachte Bewilligung nötig sein. Ob eine Genehmigung erforderlich ist, hängt dabei von der Nutzung und den baulichen Vorgaben ab. Auch Abstandsregeln können relevant sein. Bei Fragen hilft dir unser Beratungs-Team gerne und mehr Details dazu, wann du eine Baugenehmigung brauchst und welche Ausnahmen es gibt, erhältst du in unserem Ratgeber.
>> Ratgeber Baugenehmigung

Welches Fundament ist für das Gartenhaus Sunrise geeignet?

Für dieses Gartenhaus empfehlen wir z.B. ein Streifenfundament oder eine Betonplatte, um ausreichend Stabilität zu gewährleisten. Wichtig ist auch ein guter Feuchtigkeitsschutz, damit deine Konstruktion langfristig trocken bleibt. Zudem solltest du auf eine ausreichende Windverankerung achten. Bei Fragen hilft dir unser Beratungs-Team gerne und in unserem Ratgeber findest du weitere passende Fundamentlösungen.
>> Ratgeber: Gartenhaus Fundament

Welche Nutzungsmöglichkeiten bietet das Gartenhaus Sunrise?

Ein Gartenhaus ab 40 mm Wandstärke eignet sich für regelmäßige oder vielseitige Nutzung, etwa als Hobbyraum, Sommerbüro oder kleines Gästezimmer in den warmen Monaten. Die Wände bieten eine deutlich bessere Isolierwirkung und auch empfindlichere Gegenstände können deutlich besser geschützt aufbewahrt werden als in dünneren Wandstärken. Bei Fragen hilft dir unser Beratungs-Team gerne und mehr Details findest du in unserem Ratgeber.
>> Ratgeber: Gartenhaus Wandstärke
Baupläne & Dokumente
Gartenhaus Sunrise Verfügbare Downloads: Sicherheitshinweise-Gartenhaus-Alpholz.pdf
Bewertungen

Durchschnittliche Bewertung von 0 von 5 Sternen

(0)

Durchschnittliche Bewertung von 0 von 5 Sternen

(0 Bewertungen)
Produktdetails
Details:
Wandstärke
40
Materialart
Kiefer | Nordische Fichte
Oberflächenbehandlung
ohne
Grundfarbe
Naturbelassen
Grundfläche
16
Gesamtmaß cm
520 x 372
Gesamthöhe
275
Rauminhalt
36,8
Seitenverkehrte Montage
Ja
Fußboden
Optionales Zubehör
Bauweise
Blockbohlenbauweise
Dachform
Walmdach
Dachfläche (m²)
21,1
Dachneigung
20
Dacheindeckung
ohne
Innenmaß cm
472 x 324
Sockelmaß cm
476 x 328
Türmaß (cm)
260 x 190 cm | 260 x 190 cm
Fensterausführung
ohne
Verglasung
ISO-Glas

Kundenbilder

Beliebte Produkte