Zum Hauptinhalt springen Zur Suche springen Zur Hauptnavigation springen
Bis zu 1.500 € sparen + 3% Extra-Skonto sichern! | Nur für kurze Zeit
Beratung
Sales Contact Image
Verkaufsberatung: 0720 204022
Rückrufservice
Tage
Verlängert: 33% Rabatt auf Zubehör | Code: ZUBEHOER33 | steigende Preise ab 5. Mai wegen erhöhter Logistikkosten

€ 2.299,00

-18%
UVP € 2.799,00
-€ 500,00

inkl. MwSt. | Versandkostenfrei

Angebotspreis

-33% Rabatt auf Zubehör | Code: ZUBEHOER33

Durchschnittliche Bewertung von 4.6 von 5 Sternen

(4)

Gartenhaus Valeria

Die unten ausgewählten Zubehörartikel werden mit in den Warenkorb gelegt.
Purchase Advice Image
Persönliche Produkt- & Kaufberatung gewünscht Tel: 0720 204022
Fragen zum Produkt und Extra-Deal sichern?
WhatsApp-Beratung und Extra-Deal sichern!
Whatsapp Beratung
Lieferzeit ca. 3-5 Wochen
Versandkostenfrei
Skonto Icon
-3% Skonto bei Vorkasse
Produktvarianten
Schutz-Imprägnierung wählen:
Lieferung zum Wunschzeitraum
Passendes Zubehör zu diesem Produkt
Produktbeschreibung

Das Gartenhaus Valeria gehört zu den Topsellern unserer beliebtesten Gartenhäuser. Das Haus vereint dabei viele tolle Eigenschaften wie einen hellen Innenraum und ist vielseitig nutzbar. 

 alle Blockbohlen mit 4-fach Eckausfräsung

✓ hochwertige Doppeltür mit Leimholzrahmen

✓ inkl. Fußboden

 

Artikeldetails zum Gartenhaus Valeria:

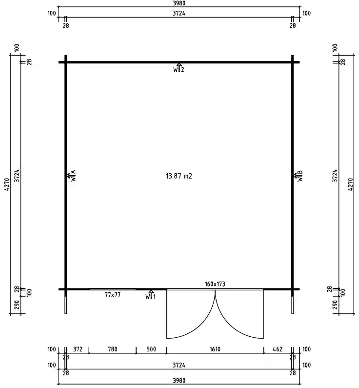
  • Außenmaß mit Dachüberstand: 438 x 427 cm
  • Sockelmaß: 375 x 375 cm
  • Grundfläche: 14,3 m²
  • Seitenwandhöhe: ca. 182 cm
  • Gesamthöhe: ca. 222 cm
  • Rauminhalt: ca. 29,2 m³
  • Dachneigung: 12°
  • Leimholz-Doppeltür: ca. 160 x 173 cm
  • Einzelfenster: 77 x 77 cm
  • Wandstärke: 28 mm

Im Lieferumfang des Gartenhauses Valeria enthalten:

  • Dach aus 12 mm OSB-Verlegeplatten
  • Fußboden aus 12 mm OSB-Verlegeplatten
  • alle Blockbohlen mit 4-fach Eckausfräsung (wind- u. regendicht)
  • Verglasung der Tür und Fenster aus Echtglas
  • hochwertige Doppeltür mit Leimholzrahmen
  • Schloss, Drückergarnitur, Montagematerial & Aufbauzeichnung
  • Lieferung ohne Dachpappe
  • Lieferung in natur ohne Farbbehandlung
Zubehör & Services
3 Zubehörartikel sind gerade ausgewählt (inkl. unseren Empfehlungen). Die passenden Mengen sind voreingestellt.

Das benötigst du für den Aufbau

Sparset Montagezubehör und Befestigung S Das perfekte Set für den sicheren Aufbau und die Verankerung deines Gartenhauses/deiner Sauna – schützt zuverlässig vor Feuchtigkeit, Wind und Sturm.
€ 129,00*
Sparset Montagezubehör und Befestigung S

Basic Zubehör Set mit bis zu 20% Ersparnis gegenüber dem Einzelkauf!

Das perfekte Set für den sicheren Aufbau und die Verankerung deines Gartenhauses – schützt zuverlässig vor Feuchtigkeit, Wind und Sturm. Mit einem Klick erhältst du alle wichtigen Komponenten in ausreichender Menge für einen langlebigen und stabilen Aufbau.

Bestehend aus:

  • Feuchtigkeitssperre (ca. 50 Stück) aus Spezial-Gummigranulat - Schützt vor aufsteigender Nässe, gleicht Unebenheiten aus und sorgt für Drainage und Luftzirkulation.
  • Sturmwinkel (Set: 4 Stück) - Zur sicheren Befestigung des Gartenhauses am Fundament (Schrauben & Dübel sind nicht im Lieferumfang enthalten).
  • Windverankerungs-Set (Set für 2 Seiten) - Verbindet obere und untere Blockbohlen und verhindert ein Auseinanderdrücken bei Sturm.

Unsere Empfehlung

Für eine optimale und dauerhafte Sturm- und Feuchtigkeitssicherung empfehlen wir den kombinierten Einsatz aller im Set enthaltenen Komponenten. So ist dein Gartenhaus bestmöglich befestigt und zuverlässig gegen Wind und Witterung geschützt.

Sparset Schindel Dacheindeckung - 21 m² Dein Rundum-sorglos-Paket für ein regensicheres Dach – das Schindel-Komplettset mit Unterdeckbahn, Nägeln und Kleber.
€ 439,00*
Sparset Schindel Dacheindeckung - 21 m²

Dein Rundum-sorglos-Paket fürs regensichere Dach – das Schindel-Komplettset spart dir bis zu 20 % gegenüber dem Einzelkauf!

 

Lieferumfang für Dachflächen bis 21 m²:

· Premium Rechteckschindeln schwarz (8 Pakete je 3 m²)

· Unterdeckbahn Ondutiss Strong Air 120 (3 Rollen)

· Dachpappstifte (8 Päckchen)

· Bitumenkleber (2 Tuben)

 

Premium Rechteckschindeln schwarz:

Unsere Premium Rechteck-Bitumen-Dachschindeln überzeugen durch eine hochwertige Trägereinlage aus robustem Glasvlies und ein edles, farbintensives Mineralgranulat auf der Oberseite. Diese Kombination sorgt nicht nur für ein elegantes Erscheinungsbild, sondern auch für maximalen Schutz: Die Schindeln verhindern zuverlässig das Eindringen von Wasser, bieten eine windfeste und UV-beständige Oberfläche und verleihen deinem Dach eine edle, pflegeleichte Optik – langanhaltend schön und zuverlässig wetterbeständig.

 

Unterdeckbahn Ondutiss Strong Air 120:

Die hochwertige, dreilagige Unterspann- und Schalungsbahn aus Polypropylen bietet zuverlässigen Schutz vor Wind und Feuchtigkeit und unterstützt eine effiziente Wärmedämmung.

· Abmessung: 10 x 1 m

 

Dachpappstifte:

Die Dachpappstifte dienen zur robusten und wetterfesten Befestigung der Schindeln und Unterdeckbahn. Ihre verzinkte Oberfläche sorgt für einen zuverlässigen Schutz vor Korrosion.

· Abmessung: 2,5 x L 15 mm

· Ø Kopf: 8 mm

· Verzinkt

· Menge: ca. 200 g = ca. 133 Stück

 

Bitumenkleber:

Mit diesem hochwertigen Bitumenkleber kannst du windgefährdete Schindeln zusätzlich zu den Dachpappstiften fixieren und damit für die ideale Haltbarkeit deines Daches sorgen – perfekt auch für schnelle, zuverlässige Reparaturen geeignet. Der Kleber ist sofort gebrauchsfertig – kein Verdünnen, kein Erhitzen, einfach auftragen und befestigen.
Für optimale Haftung: Stelle sicher, dass die Fläche sauber, trocken und frei von Sand, Blättern oder anderen Verschmutzungen ist. Der Untergrund sollte nicht vereist oder mit Reif bedeckt sein.

· Farbe: schwarz

· Inhalt: 310 ml

· Zur Anwendung auf Holz und Bitumen

 

Das Zubehörpaket ist optimal auf die üblichen Bedarfsmengen abgestimmt Je nach Art der Befestigung und Überlappung kann der Materialverbrauch leicht variieren.

Firstabdeckung Satteldach Firstabdeckung aus pulverbeschichtetem Aluminium – sorgt langlebig für eine zuverlässige Abdichtung am Dachfirst (inkl. Spenglerschrauben).
€ 147,00* € 49,00* / Stück
Firstabdeckung Satteldach

Zur perfekten Abdichtung des Firststoßes der Dacheindeckung

  • Aluminium
  • anthrazit - grau pulverbeschichtet
  • Schenkellänge: 12,5 cm
  • Länge: 2 m
  • Stärk: 0,8 mm
  • Bitte ändere die Anzahl der Firstabdeckung auf die benötigte Menge.

Inkl. Spenglerschrauben

Giebelblech Giebelblech aus pulverbeschichtetem Aluminium – schützt Giebelbretter zuverlässig, langlebig, wetterfest (inkl. Spenglerschrauben).
€ 195,00* € 39,00* / Stück
Giebelblech

Giebelblech zur Abdeckung der Giebelbretter.

  • Farbe: Anthrazit
  • Material: Aluminium pulverbeschichtet
  • Stärke: 0,8 mm
  • Tiefe: 120 mm
  • Höhe: 50 mm
  • Höhe Tropfkante: 15 mm
  • Länge: 2 m

Inkl. Spenglerschrauben

Dachrinnenset RG 100 anthrazit metallic - für 2 Dachseiten bis je 5 m Marley Dachrinnen-Set für 2 Dachseiten (bis 5 m) – komplett, langlebig und einfach zu montieren, inkl. Zubehör für sichere Entwässerung.
€ 499,00*
Dachrinnenset RG 100 anthrazit metallic - für 2 Dachseiten bis je 5 m

Für Gartenhäuser aus Holz mit Seitenlängen bis 5 m, komplettes Set für 2 Holzhausseiten

Dachrinnenset für Gartenhäuser mit Stirnbrett - bei Gartenhäusern ohne Stirnbrett muss dieses bauseits für die Montage gestellt werden

Marley Dachrinnen-Sets schützen Wände und Fundamente von Garten- und Blockhäusern sicher und zuverlässig vor Schäden durch Regenwasser.

Vorteile:

  • Komplettes Set mit Rinnen, Fallrohren und Befestigungszubehör
  • Leicht zu montieren
  • Alles komplett im Set
  • witterungs-, UV- und temperaturbeständig
  • Schlagfester, hochwertiger Kunststoff
  • Top Qualität - Made in Germany
  • 10 Jahre Garantie

Set-Inhalt:

  • 4x Dachrinne, halbrund 2 m RG 100
  • 2x Dachrinne, halbrund 1 m RG 100
  • 4x Rinnenverbindungsschale RG 100
  • 4x Endstück für links und rechts RG 100
  • 18x Rinnenhalter RG 100
  • 18x Verstellwinkel für Rinnenhalter
  • 2x Stutzen RG 100 / DN 75
  • 4x Rohrbogen DN 75, 45°
  • 2x Fallrohr DN 75 2 m
  • 4x Rohrschelle mit Ringschraube
Rinneneinhang Rinneneinhang für den fachgerechten Dachabschluss – sorgt für kontrollierten Wasserablauf von der Dachfläche in die Dachrinne.
€ 195,00* € 39,00* / Stück
Rinneneinhang

Ein Rinneneinhang ist der fachgerechte Abschluss an der Dachtraufe. Er ist das Übergangsblech von der Dachfläche zur Dachrinne. Der Einsatz sorgt für kontrollierten Wassereinlauf in die Dachrinne.

Material: Stahl verzinkt, pulverbeschichtet

Maße: A:60 mm, B:125 mm, D:15 mm

Länge: 200 cm

Stärke: 0,50 mm

Inkl. Spenglerschrauben

Montage und Services

Montage GartenHaus Block Ein-Raum bis 20m² m. Fußb. - Basic - Montage Haus
€ 2.099,00*
Montage GartenHaus Block Ein-Raum bis 20m² m. Fußb. - Basic - Montage Haus

GartenHaus Montageservice: Fachgerechte Montage vom Profi zum Bestpreis!

Wähle bequem aus unseren Montage-Sets das für dich passende Gesamtpaket.

Option 1  –  Basic Montage – Haus:

In diesem Set sind enthalten:

·         Der Aufbau des Produktes mit dem kompletten Aufbau ab Oberkante Fundament, inklusive allen im Bausatz enthaltenen Zubehörteilen. Tragewege zum Aufbauort bis 15 m sind im Preis inklusive.

·         Wenn du dich für das Sparset "Montagezubehör und Befestigung" entscheidest, ist auch die Montage dieses Sets inklusive. Wir empfehlen dieses dringend zum sicheren Aufbau. Es schützt dein Produkt effektiv gegen Feuchtigkeit und starken Wind.

Wenn du weiteres Zubehör montieren willst, kannst du das als Zusatzmontage dazu buchen. Die findest du direkt bei deinem Wunschprodukt..

Option 2  – Premium Montage  – Haus und Dacheindeckung:

In diesem Set sind enthalten:

·         Alle Leistungen aus Montage Option 1

·         Zusätzlich enthalten ist das fachgerechte Verlegen von Dachpappe und Dachschindeln, KSK oder EPDM-Folie. Das Material ist nicht im Lieferumfang. Bestelle hierfür eines der vorgeschlagenen Dacheindeckungs-Sets bzw. das Wunschmaterial in der vorgegebenen Menge. Bitte achte auf die richtige Anzahl/Größe der Dachbahn/Folie und Dachabschluss-Profile bzw. -Blenden. Wir beraten dich gern zu den Möglichkeiten!

·         Ein persönlicher Ansprechpartner begleitet dein Projekt von Beauftragung bis zum Abschluss der Montage.

Wenn du weiteres Zubehör montieren willst, kannst du das als Zusatzmontage dazu buchen. Die findest du direkt bei deinem Wunschprodukt..

Option 3 – Exklusiv Montage – Haus und Dacheindeckung + alle optionalen Zusatzmontagen und Sonderwünsche

Wenn du das volle Programm ohne „Wenn“ und „Aber“ willst, ist diese Option genau das Richtige für dich.

In diesem Set sind enthalten:

·         Alle Leistungen der Montage Optionen 1+2

·         Die Zusatzmontage des passenden Dachrinnensets

·         Die Zusatzmontage des Fußbodens (wenn der Fußboden im Lieferumfang des Bausatzes enthalten ist, ist die Montage bereits in der Basic-Option inbegriffen)

·         Verlegung der Bodendämmung

·         Imprägnierung während des Aufbaus (nur notwendig, wenn das Produkt nicht bereits ab Werk mit einer Imprägnierung versehen wurde)

·         Längere Tragewege zum Aufbauort bis 40 m sind im Preis inklusive

·         Wir gehen auf deine individuellen Sonderwünsche ein und finden passende Lösungen

Bitte beachte, dass das zu verbauende Zubehör als optionales Zubehör bestellt werden muss. Wir bieten unseren Montageservice nur für Original-GartenHaus Zubehör an.

Weitere Hinweise:

Imprägnierung: Fachgerechtes (einmaliges) Auftragen von Imprägnierungsmittel (nach Aufbau) an der Außenseite des Produktes. Das Material ist nicht im Lieferumfang. Bestelle bitte hierfür PGH Holzschutzgrund Imprägnierung aus dem Zubehör in vorgeschlagener Menge oder das passende Farbenset.

Die Imprägnierung schafft – in Verbindung mit einer Holzendbehandlung in Form von Deckfarbe oder Lasur – die Basis für langanhaltenden Schutz vor holzabbauenden Pilzen, Bläuebefall, holzzerstörende Insekten/Schimmel. Damit ist der Grundstein für langjährige Freude an deinem Wunschprodukt gelegt! (Die Holzendbehandlung kann erst ca. 24 Stunden nach der Imprägnierung erfolgen und kann daher hier nicht mit angeboten werden.)

Wir weisen an dieser Stelle darauf hin, dass eine Imprägnierung ab Werk – bei vielen Modellen direkt als Variante zu wählen – einen stärkeren Schutz bietet als die Imprägnierung nach dem Aufbau. Bei der Werksimprägnierung wird das Imprägnierungsmittel in der Fertigung maschinell aufgetragen. Hierbei werden insbesondere auch Nut und Feder effektiv geschützt.

Die Imprägnierung des Hauses, ob durch unser Montageteam oder ab Werk, stellt eine Erstbehandlung dar. Für einen optimalen Schutz deines Hauses ist nach einer Trocknungszeit ein Zweitanstrich mit einer geeigneten Lasur - bzw. Deckfarbe nötig. Wir empfehlen dir hierfür unsere qualitätsgeprüften PGH-Farben und Lasuren aus unserem Zubehör-Sortiment.

Der GartenHaus Montageservice auf einen Blick: Deine Vorteile

✓ Fachgerechter Aufbau durch unsere Montage-Profis

✓ Ein fester Ansprechpartner für dein Projekt

✓ Bestpreisgarantie und Qualität vom Marktführer

Montageservice der GartenHaus GmbH: So funktioniert‘s:
Nach deiner Bestellung vereinbaren wir mit dir einen Termin, besprechen deinen Auftrag und klären alle deine Fragen.

Wir schicken dir rechtzeitig die Kontaktdaten deines Montagepartners aus deiner Region. Wenn du fachliche Fragen oder Wünsche hast, kannst du dich direkt an einen kompetenten Ansprechpartner wenden. Du stimmst die letzten Fragen mit dem Montage-Team ab und vereinbarst dann einen Termin.

Bitte beachte, dass die Aufbauteams zum Einplanen deines Montagetermins ausreichend Vorlaufszeit benötigen. Damit der Aufbau zeitnah nach der Lieferung erfolgen kann, empfiehlt es sich, die Buchung des Montageservices mit der Produktbestellung vorzunehmen. Eine spätere Nachbestellung des Montageservices ist nach individueller Absprache und erfolgter Prüfung gegebenenfalls möglich. Auch die Montage von Dachrinne, Fußbodendämmung, optionalem Fußboden, sowie die Imprägnierung sind optional in unserem Zubehör am Produkt hinzubuchbar.

Bitte hab Verständnis, dass aus Sicherheitsgründen nur die über die GartenHaus GmbH bezogenen Originalteile verbaut werden.

Für die Vorbereitung der Baustelle und für die Bestellung von Montageleistungen gibt es wichtige Infos. Diese findest du im Dokument und Link

 

Hinweis zur Buchung des richtigen Montageservices: Grundsätzlich sind am Produkt immer die richtigen Montageservice Artikel hinterlegt. Wenn du eine Montage nachträglich buchst, achte bitte bei der Auswahl auf folgende Merkmale:

·         Walmdach: Mit 4 und mehr Dachflächen (siehe Beispielbilder). Alle anderen Dächer werden als „Standarddach“ betrachtet

·         Fußboden: Viele unserer Produkte werden bereits ab Werk mit einem Fußboden ausgeliefert. Für diese Produkte ist das entsprechende Montageprodukt inkl. Fußboden zu wählen. Wenn der Fußboden nicht im Lieferumfang ist, kannst du ihn einfach als separates Zubehör dazu buchen. Für diese Fußböden ist die Zusatzmontage für Fußböden zu wählen.

·         Mehrraum: Für Gebäude mit mindestens einem, durch eine Wand getrennten Raum oder Schlafboden

·         Quadratmeteranzahl: Bezieht sich auf die Grundfläche + Dachüberhang des zu montierenden Produktes

·         Bauart:

Block bezeichnet Häuser, bei denen die Bohlen ineinandergreifend ausgeführt sind (siehe folgendes Bild)

Schraubsystem bezieht sich auf Produkte, die in Elementen oder einzelnen Bohlen ausgeführt sind und im Rahmen verschraubt werden müssen. (siehe folgendes Bild)

GartenHaus Montageservice: Fachgerechte Montage vom Profi zum Bestpreis!

Wähle bequem aus unseren Montage-Sets das für dich passende Gesamtpaket.

Option 1  –  Basic Montage – Haus:

In diesem Set sind enthalten:

·         Der Aufbau des Produktes mit dem kompletten Aufbau ab Oberkante Fundament, inklusive allen im Bausatz enthaltenen Zubehörteilen. Tragewege zum Aufbauort bis 15 m sind im Preis inklusive.

·         Wenn du dich für das Sparset "Montagezubehör und Befestigung" entscheidest, ist auch die Montage dieses Sets inklusive. Wir empfehlen dieses dringend zum sicheren Aufbau. Es schützt dein Produkt effektiv gegen Feuchtigkeit und starken Wind.

Wenn du weiteres Zubehör montieren willst, kannst du das als Zusatzmontage dazu buchen. Die findest du direkt bei deinem Wunschprodukt..

Option 2  – Premium Montage  – Haus und Dacheindeckung:

In diesem Set sind enthalten:

·         Alle Leistungen aus Montage Option 1

·         Zusätzlich enthalten ist das fachgerechte Verlegen von Dachpappe und Dachschindeln, KSK oder EPDM-Folie. Das Material ist nicht im Lieferumfang. Bestelle hierfür eines der vorgeschlagenen Dacheindeckungs-Sets bzw. das Wunschmaterial in der vorgegebenen Menge. Bitte achte auf die richtige Anzahl/Größe der Dachbahn/Folie und Dachabschluss-Profile bzw. -Blenden. Wir beraten dich gern zu den Möglichkeiten!

·         Ein persönlicher Ansprechpartner begleitet dein Projekt von Beauftragung bis zum Abschluss der Montage.

Wenn du weiteres Zubehör montieren willst, kannst du das als Zusatzmontage dazu buchen. Die findest du direkt bei deinem Wunschprodukt..

Option 3 – Exklusiv Montage – Haus und Dacheindeckung + alle optionalen Zusatzmontagen und Sonderwünsche

Wenn du das volle Programm ohne „Wenn“ und „Aber“ willst, ist diese Option genau das Richtige für dich.

In diesem Set sind enthalten:

·         Alle Leistungen der Montage Optionen 1+2

·         Die Zusatzmontage des passenden Dachrinnensets

·         Die Zusatzmontage des Fußbodens (wenn der Fußboden im Lieferumfang des Bausatzes enthalten ist, ist die Montage bereits in der Basic-Option inbegriffen)

·         Verlegung der Bodendämmung

·         Imprägnierung während des Aufbaus (nur notwendig, wenn das Produkt nicht bereits ab Werk mit einer Imprägnierung versehen wurde)

·         Längere Tragewege zum Aufbauort bis 40 m sind im Preis inklusive

·         Wir gehen auf deine individuellen Sonderwünsche ein und finden passende Lösungen

Bitte beachte, dass das zu verbauende Zubehör als optionales Zubehör bestellt werden muss. Wir bieten unseren Montageservice nur für Original-GartenHaus Zubehör an.

Weitere Hinweise:

Imprägnierung: Fachgerechtes (einmaliges) Auftragen von Imprägnierungsmittel (nach Aufbau) an der Außenseite des Produktes. Das Material ist nicht im Lieferumfang. Bestelle bitte hierfür PGH Holzschutzgrund Imprägnierung aus dem Zubehör in vorgeschlagener Menge oder das passende Farbenset.

Die Imprägnierung schafft – in Verbindung mit einer Holzendbehandlung in Form von Deckfarbe oder Lasur – die Basis für langanhaltenden Schutz vor holzabbauenden Pilzen, Bläuebefall, holzzerstörende Insekten/Schimmel. Damit ist der Grundstein für langjährige Freude an deinem Wunschprodukt gelegt! (Die Holzendbehandlung kann erst ca. 24 Stunden nach der Imprägnierung erfolgen und kann daher hier nicht mit angeboten werden.)

Wir weisen an dieser Stelle darauf hin, dass eine Imprägnierung ab Werk – bei vielen Modellen direkt als Variante zu wählen – einen stärkeren Schutz bietet als die Imprägnierung nach dem Aufbau. Bei der Werksimprägnierung wird das Imprägnierungsmittel in der Fertigung maschinell aufgetragen. Hierbei werden insbesondere auch Nut und Feder effektiv geschützt.

Die Imprägnierung des Hauses, ob durch unser Montageteam oder ab Werk, stellt eine Erstbehandlung dar. Für einen optimalen Schutz deines Hauses ist nach einer Trocknungszeit ein Zweitanstrich mit einer geeigneten Lasur - bzw. Deckfarbe nötig. Wir empfehlen dir hierfür unsere qualitätsgeprüften PGH-Farben und Lasuren aus unserem Zubehör-Sortiment.

Der GartenHaus Montageservice auf einen Blick: Deine Vorteile

✓ Fachgerechter Aufbau durch unsere Montage-Profis

✓ Ein fester Ansprechpartner für dein Projekt

✓ Bestpreisgarantie und Qualität vom Marktführer

Montageservice der GartenHaus GmbH: So funktioniert‘s:
Nach deiner Bestellung vereinbaren wir mit dir einen Termin, besprechen deinen Auftrag und klären alle deine Fragen.

Wir schicken dir rechtzeitig die Kontaktdaten deines Montagepartners aus deiner Region. Wenn du fachliche Fragen oder Wünsche hast, kannst du dich direkt an einen kompetenten Ansprechpartner wenden. Du stimmst die letzten Fragen mit dem Montage-Team ab und vereinbarst dann einen Termin.

Bitte beachte, dass die Aufbauteams zum Einplanen deines Montagetermins ausreichend Vorlaufszeit benötigen. Damit der Aufbau zeitnah nach der Lieferung erfolgen kann, empfiehlt es sich, die Buchung des Montageservices mit der Produktbestellung vorzunehmen. Eine spätere Nachbestellung des Montageservices ist nach individueller Absprache und erfolgter Prüfung gegebenenfalls möglich. Auch die Montage von Dachrinne, Fußbodendämmung, optionalem Fußboden, sowie die Imprägnierung sind optional in unserem Zubehör am Produkt hinzubuchbar.

Bitte hab Verständnis, dass aus Sicherheitsgründen nur die über die GartenHaus GmbH bezogenen Originalteile verbaut werden.

Für die Vorbereitung der Baustelle und für die Bestellung von Montageleistungen gibt es wichtige Infos. Diese findest du im Dokument und Link

 

Hinweis zur Buchung des richtigen Montageservices: Grundsätzlich sind am Produkt immer die richtigen Montageservice Artikel hinterlegt. Wenn du eine Montage nachträglich buchst, achte bitte bei der Auswahl auf folgende Merkmale:

·         Walmdach: Mit 4 und mehr Dachflächen (siehe Beispielbilder). Alle anderen Dächer werden als „Standarddach“ betrachtet

·         Fußboden: Viele unserer Produkte werden bereits ab Werk mit einem Fußboden ausgeliefert. Für diese Produkte ist das entsprechende Montageprodukt inkl. Fußboden zu wählen. Wenn der Fußboden nicht im Lieferumfang ist, kannst du ihn einfach als separates Zubehör dazu buchen. Für diese Fußböden ist die Zusatzmontage für Fußböden zu wählen.

·         Mehrraum: Für Gebäude mit mindestens einem, durch eine Wand getrennten Raum oder Schlafboden

·         Quadratmeteranzahl: Bezieht sich auf die Grundfläche + Dachüberhang des zu montierenden Produktes

·         Bauart:

Block bezeichnet Häuser, bei denen die Bohlen ineinandergreifend ausgeführt sind (siehe folgendes Bild)

Schraubsystem bezieht sich auf Produkte, die in Elementen oder einzelnen Bohlen ausgeführt sind und im Rahmen verschraubt werden müssen. (siehe folgendes Bild)

GartenHaus Montageservice: Fachgerechte Montage vom Profi zum Bestpreis!

Wähle bequem aus unseren Montage-Sets das für dich passende Gesamtpaket.

Option 1  –  Basic Montage – Haus:

In diesem Set sind enthalten:

·         Der Aufbau des Produktes mit dem kompletten Aufbau ab Oberkante Fundament, inklusive allen im Bausatz enthaltenen Zubehörteilen. Tragewege zum Aufbauort bis 15 m sind im Preis inklusive.

·         Wenn du dich für das Sparset "Montagezubehör und Befestigung" entscheidest, ist auch die Montage dieses Sets inklusive. Wir empfehlen dieses dringend zum sicheren Aufbau. Es schützt dein Produkt effektiv gegen Feuchtigkeit und starken Wind.

Wenn du weiteres Zubehör montieren willst, kannst du das als Zusatzmontage dazu buchen. Die findest du direkt bei deinem Wunschprodukt..

Option 2  – Premium Montage  – Haus und Dacheindeckung:

In diesem Set sind enthalten:

·         Alle Leistungen aus Montage Option 1

·         Zusätzlich enthalten ist das fachgerechte Verlegen von Dachpappe und Dachschindeln, KSK oder EPDM-Folie. Das Material ist nicht im Lieferumfang. Bestelle hierfür eines der vorgeschlagenen Dacheindeckungs-Sets bzw. das Wunschmaterial in der vorgegebenen Menge. Bitte achte auf die richtige Anzahl/Größe der Dachbahn/Folie und Dachabschluss-Profile bzw. -Blenden. Wir beraten dich gern zu den Möglichkeiten!

·         Ein persönlicher Ansprechpartner begleitet dein Projekt von Beauftragung bis zum Abschluss der Montage.

Wenn du weiteres Zubehör montieren willst, kannst du das als Zusatzmontage dazu buchen. Die findest du direkt bei deinem Wunschprodukt..

Option 3 – Exklusiv Montage – Haus und Dacheindeckung + alle optionalen Zusatzmontagen und Sonderwünsche

Wenn du das volle Programm ohne „Wenn“ und „Aber“ willst, ist diese Option genau das Richtige für dich.

In diesem Set sind enthalten:

·         Alle Leistungen der Montage Optionen 1+2

·         Die Zusatzmontage des passenden Dachrinnensets

·         Die Zusatzmontage des Fußbodens (wenn der Fußboden im Lieferumfang des Bausatzes enthalten ist, ist die Montage bereits in der Basic-Option inbegriffen)

·         Verlegung der Bodendämmung

·         Imprägnierung während des Aufbaus (nur notwendig, wenn das Produkt nicht bereits ab Werk mit einer Imprägnierung versehen wurde)

·         Längere Tragewege zum Aufbauort bis 40 m sind im Preis inklusive

·         Wir gehen auf deine individuellen Sonderwünsche ein und finden passende Lösungen

Bitte beachte, dass das zu verbauende Zubehör als optionales Zubehör bestellt werden muss. Wir bieten unseren Montageservice nur für Original-GartenHaus Zubehör an.

Weitere Hinweise:

Imprägnierung: Fachgerechtes (einmaliges) Auftragen von Imprägnierungsmittel (nach Aufbau) an der Außenseite des Produktes. Das Material ist nicht im Lieferumfang. Bestelle bitte hierfür PGH Holzschutzgrund Imprägnierung aus dem Zubehör in vorgeschlagener Menge oder das passende Farbenset.

Die Imprägnierung schafft – in Verbindung mit einer Holzendbehandlung in Form von Deckfarbe oder Lasur – die Basis für langanhaltenden Schutz vor holzabbauenden Pilzen, Bläuebefall, holzzerstörende Insekten/Schimmel. Damit ist der Grundstein für langjährige Freude an deinem Wunschprodukt gelegt! (Die Holzendbehandlung kann erst ca. 24 Stunden nach der Imprägnierung erfolgen und kann daher hier nicht mit angeboten werden.)

Wir weisen an dieser Stelle darauf hin, dass eine Imprägnierung ab Werk – bei vielen Modellen direkt als Variante zu wählen – einen stärkeren Schutz bietet als die Imprägnierung nach dem Aufbau. Bei der Werksimprägnierung wird das Imprägnierungsmittel in der Fertigung maschinell aufgetragen. Hierbei werden insbesondere auch Nut und Feder effektiv geschützt.

Die Imprägnierung des Hauses, ob durch unser Montageteam oder ab Werk, stellt eine Erstbehandlung dar. Für einen optimalen Schutz deines Hauses ist nach einer Trocknungszeit ein Zweitanstrich mit einer geeigneten Lasur - bzw. Deckfarbe nötig. Wir empfehlen dir hierfür unsere qualitätsgeprüften PGH-Farben und Lasuren aus unserem Zubehör-Sortiment.

Der GartenHaus Montageservice auf einen Blick: Deine Vorteile

✓ Fachgerechter Aufbau durch unsere Montage-Profis

✓ Ein fester Ansprechpartner für dein Projekt

✓ Bestpreisgarantie und Qualität vom Marktführer

Montageservice der GartenHaus GmbH: So funktioniert‘s:
Nach deiner Bestellung vereinbaren wir mit dir einen Termin, besprechen deinen Auftrag und klären alle deine Fragen.

Wir schicken dir rechtzeitig die Kontaktdaten deines Montagepartners aus deiner Region. Wenn du fachliche Fragen oder Wünsche hast, kannst du dich direkt an einen kompetenten Ansprechpartner wenden. Du stimmst die letzten Fragen mit dem Montage-Team ab und vereinbarst dann einen Termin.

Bitte beachte, dass die Aufbauteams zum Einplanen deines Montagetermins ausreichend Vorlaufszeit benötigen. Damit der Aufbau zeitnah nach der Lieferung erfolgen kann, empfiehlt es sich, die Buchung des Montageservices mit der Produktbestellung vorzunehmen. Eine spätere Nachbestellung des Montageservices ist nach individueller Absprache und erfolgter Prüfung gegebenenfalls möglich. Auch die Montage von Dachrinne, Fußbodendämmung, optionalem Fußboden, sowie die Imprägnierung sind optional in unserem Zubehör am Produkt hinzubuchbar.

Bitte hab Verständnis, dass aus Sicherheitsgründen nur die über die GartenHaus GmbH bezogenen Originalteile verbaut werden.

Für die Vorbereitung der Baustelle und für die Bestellung von Montageleistungen gibt es wichtige Infos. Diese findest du im Dokument und Link

 

Hinweis zur Buchung des richtigen Montageservices: Grundsätzlich sind am Produkt immer die richtigen Montageservice Artikel hinterlegt. Wenn du eine Montage nachträglich buchst, achte bitte bei der Auswahl auf folgende Merkmale:

·         Walmdach: Mit 4 und mehr Dachflächen (siehe Beispielbilder). Alle anderen Dächer werden als „Standarddach“ betrachtet

·         Fußboden: Viele unserer Produkte werden bereits ab Werk mit einem Fußboden ausgeliefert. Für diese Produkte ist das entsprechende Montageprodukt inkl. Fußboden zu wählen. Wenn der Fußboden nicht im Lieferumfang ist, kannst du ihn einfach als separates Zubehör dazu buchen. Für diese Fußböden ist die Zusatzmontage für Fußböden zu wählen.

·         Mehrraum: Für Gebäude mit mindestens einem, durch eine Wand getrennten Raum oder Schlafboden

·         Quadratmeteranzahl: Bezieht sich auf die Grundfläche + Dachüberhang des zu montierenden Produktes

·         Bauart:

Block bezeichnet Häuser, bei denen die Bohlen ineinandergreifend ausgeführt sind (siehe folgendes Bild)

Schraubsystem bezieht sich auf Produkte, die in Elementen oder einzelnen Bohlen ausgeführt sind und im Rahmen verschraubt werden müssen. (siehe folgendes Bild)

GartenHaus Montageservice: Fachgerechte Montage vom Profi zum Bestpreis!

Wähle bequem aus unseren Montage-Sets das für dich passende Gesamtpaket.

Option 1  –  Basic Montage – Haus:

In diesem Set sind enthalten:

·         Der Aufbau des Produktes mit dem kompletten Aufbau ab Oberkante Fundament, inklusive allen im Bausatz enthaltenen Zubehörteilen. Tragewege zum Aufbauort bis 15 m sind im Preis inklusive.

·         Wenn du dich für das Sparset "Montagezubehör und Befestigung" entscheidest, ist auch die Montage dieses Sets inklusive. Wir empfehlen dieses dringend zum sicheren Aufbau. Es schützt dein Produkt effektiv gegen Feuchtigkeit und starken Wind.

Wenn du weiteres Zubehör montieren willst, kannst du das als Zusatzmontage dazu buchen. Die findest du direkt bei deinem Wunschprodukt..

Option 2  – Premium Montage  – Haus und Dacheindeckung:

In diesem Set sind enthalten:

·         Alle Leistungen aus Montage Option 1

·         Zusätzlich enthalten ist das fachgerechte Verlegen von Dachpappe und Dachschindeln, KSK oder EPDM-Folie. Das Material ist nicht im Lieferumfang. Bestelle hierfür eines der vorgeschlagenen Dacheindeckungs-Sets bzw. das Wunschmaterial in der vorgegebenen Menge. Bitte achte auf die richtige Anzahl/Größe der Dachbahn/Folie und Dachabschluss-Profile bzw. -Blenden. Wir beraten dich gern zu den Möglichkeiten!

·         Ein persönlicher Ansprechpartner begleitet dein Projekt von Beauftragung bis zum Abschluss der Montage.

Wenn du weiteres Zubehör montieren willst, kannst du das als Zusatzmontage dazu buchen. Die findest du direkt bei deinem Wunschprodukt..

Option 3 – Exklusiv Montage – Haus und Dacheindeckung + alle optionalen Zusatzmontagen und Sonderwünsche

Wenn du das volle Programm ohne „Wenn“ und „Aber“ willst, ist diese Option genau das Richtige für dich.

In diesem Set sind enthalten:

·         Alle Leistungen der Montage Optionen 1+2

·         Die Zusatzmontage des passenden Dachrinnensets

·         Die Zusatzmontage des Fußbodens (wenn der Fußboden im Lieferumfang des Bausatzes enthalten ist, ist die Montage bereits in der Basic-Option inbegriffen)

·         Verlegung der Bodendämmung

·         Imprägnierung während des Aufbaus (nur notwendig, wenn das Produkt nicht bereits ab Werk mit einer Imprägnierung versehen wurde)

·         Längere Tragewege zum Aufbauort bis 40 m sind im Preis inklusive

·         Wir gehen auf deine individuellen Sonderwünsche ein und finden passende Lösungen

Bitte beachte, dass das zu verbauende Zubehör als optionales Zubehör bestellt werden muss. Wir bieten unseren Montageservice nur für Original-GartenHaus Zubehör an.

Weitere Hinweise:

Imprägnierung: Fachgerechtes (einmaliges) Auftragen von Imprägnierungsmittel (nach Aufbau) an der Außenseite des Produktes. Das Material ist nicht im Lieferumfang. Bestelle bitte hierfür PGH Holzschutzgrund Imprägnierung aus dem Zubehör in vorgeschlagener Menge oder das passende Farbenset.

Die Imprägnierung schafft – in Verbindung mit einer Holzendbehandlung in Form von Deckfarbe oder Lasur – die Basis für langanhaltenden Schutz vor holzabbauenden Pilzen, Bläuebefall, holzzerstörende Insekten/Schimmel. Damit ist der Grundstein für langjährige Freude an deinem Wunschprodukt gelegt! (Die Holzendbehandlung kann erst ca. 24 Stunden nach der Imprägnierung erfolgen und kann daher hier nicht mit angeboten werden.)

Wir weisen an dieser Stelle darauf hin, dass eine Imprägnierung ab Werk – bei vielen Modellen direkt als Variante zu wählen – einen stärkeren Schutz bietet als die Imprägnierung nach dem Aufbau. Bei der Werksimprägnierung wird das Imprägnierungsmittel in der Fertigung maschinell aufgetragen. Hierbei werden insbesondere auch Nut und Feder effektiv geschützt.

Die Imprägnierung des Hauses, ob durch unser Montageteam oder ab Werk, stellt eine Erstbehandlung dar. Für einen optimalen Schutz deines Hauses ist nach einer Trocknungszeit ein Zweitanstrich mit einer geeigneten Lasur - bzw. Deckfarbe nötig. Wir empfehlen dir hierfür unsere qualitätsgeprüften PGH-Farben und Lasuren aus unserem Zubehör-Sortiment.

Der GartenHaus Montageservice auf einen Blick: Deine Vorteile

✓ Fachgerechter Aufbau durch unsere Montage-Profis

✓ Ein fester Ansprechpartner für dein Projekt

✓ Bestpreisgarantie und Qualität vom Marktführer

Montageservice der GartenHaus GmbH: So funktioniert‘s:
Nach deiner Bestellung vereinbaren wir mit dir einen Termin, besprechen deinen Auftrag und klären alle deine Fragen.

Wir schicken dir rechtzeitig die Kontaktdaten deines Montagepartners aus deiner Region. Wenn du fachliche Fragen oder Wünsche hast, kannst du dich direkt an einen kompetenten Ansprechpartner wenden. Du stimmst die letzten Fragen mit dem Montage-Team ab und vereinbarst dann einen Termin.

Bitte beachte, dass die Aufbauteams zum Einplanen deines Montagetermins ausreichend Vorlaufszeit benötigen. Damit der Aufbau zeitnah nach der Lieferung erfolgen kann, empfiehlt es sich, die Buchung des Montageservices mit der Produktbestellung vorzunehmen. Eine spätere Nachbestellung des Montageservices ist nach individueller Absprache und erfolgter Prüfung gegebenenfalls möglich. Auch die Montage von Dachrinne, Fußbodendämmung, optionalem Fußboden, sowie die Imprägnierung sind optional in unserem Zubehör am Produkt hinzubuchbar.

Bitte hab Verständnis, dass aus Sicherheitsgründen nur die über die GartenHaus GmbH bezogenen Originalteile verbaut werden.

Für die Vorbereitung der Baustelle und für die Bestellung von Montageleistungen gibt es wichtige Infos. Diese findest du im Dokument und Link

 

Hinweis zur Buchung des richtigen Montageservices: Grundsätzlich sind am Produkt immer die richtigen Montageservice Artikel hinterlegt. Wenn du eine Montage nachträglich buchst, achte bitte bei der Auswahl auf folgende Merkmale:

·         Walmdach: Mit 4 und mehr Dachflächen (siehe Beispielbilder). Alle anderen Dächer werden als „Standarddach“ betrachtet

·         Fußboden: Viele unserer Produkte werden bereits ab Werk mit einem Fußboden ausgeliefert. Für diese Produkte ist das entsprechende Montageprodukt inkl. Fußboden zu wählen. Wenn der Fußboden nicht im Lieferumfang ist, kannst du ihn einfach als separates Zubehör dazu buchen. Für diese Fußböden ist die Zusatzmontage für Fußböden zu wählen.

·         Mehrraum: Für Gebäude mit mindestens einem, durch eine Wand getrennten Raum oder Schlafboden

·         Quadratmeteranzahl: Bezieht sich auf die Grundfläche + Dachüberhang des zu montierenden Produktes

·         Bauart:

Block bezeichnet Häuser, bei denen die Bohlen ineinandergreifend ausgeführt sind (siehe folgendes Bild)

Schraubsystem bezieht sich auf Produkte, die in Elementen oder einzelnen Bohlen ausgeführt sind und im Rahmen verschraubt werden müssen. (siehe folgendes Bild)

Montage Dachrinne - 2 Dachseiten
€ 319,00*
Montage Dachrinne - 2 Dachseiten

Du hast dich zum Schutz und für die Langlebigkeit deines Produkts für ein passendes Dachentwässerungssystem entschieden.

Dann buch die professionelle Montage vom Fachmann gleich mit hinzu.. (Bei diesem Artikel handelt es sich um eine Zusatzmontage, die nur in Verbindung mit einem Montageauftrag für eines unserer Hauptprodukte gebucht werden kann)

Was ist in diesem Montageprodukt enthalten:

-          Fachgerechte Platzierung, Ausrichtung und Montage unserer Dachrinnen- bzw. Fallrohrsets

-          Montage der zusätzlich erhältlichen Rinneneinhänge (nur bei Dachrinnensets notwendig - optionales Zubehör)

Wählen die für dein Produkt passende Variante. Bei Dachrinnensets ist die Anzahl der zu entwässernden Dachseiten (1, 2 oder 4) ausschlaggebend, bei den Fallrohrsets die Anzahl der empfohlenen und bestellten Sets.

Achtung: Die Dachrinne bzw. das Fallrohr ist nicht enthalten. Bestelle hierzu eine der empfohlenen Dachrinnen bzw. Fallrohre aus unserem Zubehör. Wir empfehlen für unsere Dachrinnensets zusätzlich die Rinneneinhänge zu bestellen. Ein Rinneneinhang ist der fachgerechte Abschluss an der Dachtraufe. Er ist das Übergangsblech von der Dachfläche zur Dachrinne und sein Einsatz sorgt für kontrollierten Wassereinlauf in die Dachrinne. Die Montage der Rinneneinhänge ist im Montagepreis der Dachrinne enthalten.

Der GartenHaus Montageservice auf einen Blick: Deine Vorteile

✓ Fachgerechter Aufbau durch unsere Montage-Profis

✓ Ein fester Ansprechpartner für dein Projekt

✓ Bestpreisgarantie und Qualität vom Marktführer

Montageservice der GartenHaus GmbH: So funktioniert‘s:
Nach deiner Bestellung vereinbaren wir mit dir einen Termin, besprechen deinen Auftrag und klären alle deine Fragen.

Wir schicken dir rechtzeitig die Kontaktdaten deines Montagepartners aus deiner Region. Wenn du fachliche Fragen oder Wünsche hast, kannst du dich direkt an einen kompetenten Ansprechpartner wenden. Du stimmst die letzten Fragen mit dem Montage-Team ab und vereinbarst dann einen Termin.

Bitte beachte, dass die Aufbauteams zum Einplanen deines Montagetermins ausreichend Vorlaufszeit benötigen. Damit der Aufbau zeitnah nach der Lieferung erfolgen kann, empfiehlt es sich, die Buchung des Montageservices mit der Produktbestellung vorzunehmen. Eine spätere Nachbestellung des Montageservices ist nach individueller Absprache und erfolgter Prüfung gegebenenfalls möglich.

Bitte hab Verständnis, dass aus Sicherheitsgründen nur die über die GartenHaus GmbH bezogenen Originalteile verbaut werden.

Für die Vorbereitung der Baustelle und für die Bestellung von Montageleistungen gibt es wichtige Infos. Diese findest du im Dokument und Lin

Montage Boden-Dämmung bis 15m²
€ 229,00*
Montage Boden-Dämmung bis 15m²

Eine fachgerechte Dämmung des Fußbodens ist eine wertvolle Investition und gerade zur kalten Jahreszeit ist eine gute Isolierung empfehlenswert. Freu Dich auf eine warme und gemütliche Residenz in Deinem Garten und buche diesen Artikel ganz einfach zur Hausmontage dazu.

Was ist in diesem Montageprodukt enthalten:

-          Individueller Zuschnitt des Dämmmaterials

-          Befestigung der Dämmplatten am Fundamentrahmen

-          Luftdichtes Abkleben der Platten auf dem Rahmen zur optimalen Isolierwirkung

Wähle die Grundfläche, die Du isolieren willst, passend zum Produkt aus (bis 10m², bis 15m², usw.). Entscheidend ist die Grundfläche des zu isolierenden Gebäudes.


Achtung: Das Material zur Bodendämmung ist nicht enthalten. Bestelle hierzu ein empfohlenes Dämmset aus unserem Zubehör. Bei mehrstöckigen Häusern wird nur der Boden vom Untergeschoss gedämmt.

Der GartenHaus Montageservice auf einen Blick: Deine Vorteile

✓ Fachgerechter Aufbau durch unsere Montage-Profis

✓ Ein fester Ansprechpartner für dein Projekt

✓ Bestpreisgarantie und Qualität vom Marktführer

Montageservice der GartenHaus GmbH: So funktioniert‘s:
Nach deiner Bestellung vereinbaren wir mit dir einen Termin, besprechen deinen Auftrag und klären alle deine Fragen.

Wir schicken dir rechtzeitig die Kontaktdaten deines Montagepartners aus deiner Region. Wenn du fachliche Fragen oder Wünsche hast, kannst du dich direkt an einen kompetenten Ansprechpartner wenden. Du stimmst die letzten Fragen mit dem Montage-Team ab und vereinbarst dann einen Termin.

Bitte beachte, dass die Aufbauteams zum Einplanen deines Montagetermins ausreichend Vorlaufszeit benötigen. Damit der Aufbau zeitnah nach der Lieferung erfolgen kann, empfiehlt es sich, die Buchung des Montageservices mit der Produktbestellung vorzunehmen. Eine spätere Nachbestellung des Montageservices ist nach individueller Absprache und erfolgter Prüfung gegebenenfalls möglich.

Bitte hab Verständnis, dass aus Sicherheitsgründen nur die über die GartenHaus GmbH bezogenen Originalteile verbaut werden.

Für die Vorbereitung der Baustelle und für die Bestellung von Montageleistungen gibt es wichtige Infos. Diese findest du im Dokument und Link

Komfort Garantie
€ 69,00*
Komfort Garantie

Welche Produkte sind durch die Gartenhaus.com Garantie abgedeckt?

Unsere Komfort Garantie gilt ausschließlich für privat genutzte Produkte. Dazu zählen: 

  • Garten- & Gerätehäuser – dein Rückzugsort oder einfache Lösung zur Aufbewahrung
  • Saunen – für wohltuende Entspannung und Wellness im eigenen Zuhause
  • Kinderspielgeräte – Spiel und Spaß für Groß und Klein
  • Holzpavillons - für dein persönliches Paradies im Garten
  • Carports – zuverlässiger Schutz für dein Fahrzeug vor Regen, Schnee und Sonne
  • Garagen – sicherer Stellplatz mit zusätzlichem Stauraum für deine Bedürfnisse

Mit unserer Garantie kannst du dich auf die Qualität deines Produkts verlassen. Sollte doch einmal etwas nicht passen, sind wir schnell und unkompliziert für dich da.

Was beinhaltet die Komfort Garantie?

Dank unserer Komfort Garantie musst du dir keine Sorgen machen. Geht etwas kaputt, bekommst du von uns die passenden Ersatzteile für folgende Bereiche: 

  • Türen (Glasschäden bis zu 200 €)
  • Fenster (Glasschäden bis zu 200 €)
  • Dachrinne – für einen sicheren Wasserablauf
  • Türschloss – für zuverlässigen Schutz
  • Beschläge – falls kleine, aber wichtige Teile ersetzt werden müssen
  • Dacheindeckung (Dachpappe, Dachschindeln, KSK) – für optimalen Schutz vor Wind und Wetter

Wichtig:

Die Komfort-Garantie umfasst ausschließlich die Lieferung der Ersatzteile. Der Einbau liegt in deiner Hand. Für eine professionelle Montage wähle die Premium-Garantie. 

Mit der Komfort Garantie bist du gut abgesichert und kannst dein Gartenhaus.com-Produkt unbesorgt genießen.

Garantiebedingungen

Alle Details und mehr Infos zur Komfort Garantie

Noch Fragen? Unser Kundenservice ist jederzeit für dich da!

Premium Garantie
€ 609,00*
Premium Garantie

Für welche Produkte gilt die Gartenhaus.com Garantie?

Unsere Premium Garantie gilt ausschließlich für Produkte, die du privat nutzt. Dazu gehören:

  • Garten- & Gerätehäuser – dein Rückzugsort oder einfache Lösung zur Aufbewahrung
  • Saunen – für wohltuende Entspannung und Wellness im eigenen Zuhause
  • Kinderspielgeräte – Spiel und Spaß für Groß und Klein
  • Holzpavillons - für dein persönliches Paradies im Garten
  • Carports – zuverlässiger Schutz für dein Fahrzeug vor Regen, Schnee und Sonne
  • Garagen – sicherer Stellplatz mit zusätzlichem Stauraum für deine Bedürfnisse

Mit unserer Garantie kannst du sicher sein, dass dein Produkt hochwertig verarbeitet ist und wir dir im Fall der Fälle schnell und unkompliziert weiterhelfen.

Was beinhaltet die Premium Garantie?

Unsere Premium Garantie sorgt dafür, dass du dich entspannt zurücklehnen kannst. Falls ein Problem auftritt, schicken wir dir Ersatzteile für folgende Komponenten:

  • Türen (Glasschäden bis zu 200 €)
  • Fenster (Glasschäden bis zu 200 €)
  • Dachrinne – für einen sicheren Wasserablauf
  • Türschloss – für zuverlässigen Schutz
  • Beschläge – falls kleine, aber wichtige Teile ersetzt werden müssen
  • Dacheindeckung (Dachpappe, Dachschindeln, KSK) – für optimalen Schutz vor Wind und Wetter

Extra-Service in der Premium Garantie:

Inklusive Handwerksservice & Ersatzteileinbau: Du bekommst nicht nur die Ersatzteile, sondern auch den professionellen Einbau dazu!

Mit unserer Premium Garantie bist du rundum abgesichert – für langanhaltende Freude an deinem Produkt.

Garantiebedingungen

Alle Details und mehr Infos zur Premium Garantie

Noch Fragen? Unser Kundenservice ist jederzeit für dich da!

 

Zubehör für dein Produkt

PGH Hartwachsöl 0,75 L Perfekter Oberflächenschutz für deinen Holzfußboden - sorgt für eine widerstandsfähige und natürliche Oberfläche
€ 39,00*
PGH Hartwachsöl 0,75 L

Hochwertiges Hartwachsöl für Innenbereich

Unser Hartwachsöl bietet eine hochwertige Lösung für die Grundierung und Behandlung verschiedener saugfähiger Untergründe im Innenbereich. Mit einer seidenmatten, strapazierfähigen Oberfläche, die natürliche Strukturen belebt und Tönungen vertieft, bietet es beste Ergebnisse für Holz-, Kork- und Steinböden sowie andere Oberflächen. Einfach in der Anwendung und getestet gemäß höchsten Standards, ist es die ideale Wahl für professionelle Ergebnisse.

Artikeldetails zum Hartwachsöl:

  • Anwendung: Grundierung und Behandlung saugfähiger Untergründe im Innenbereich.

  • Eigenschaften: Seidenmatte Oberfläche, vertieft die Tönung, wasserabweisend.
  • Geprüft auf Chemikalienbeständigkeit und Migration.
  • Inhaltsstoffe: Leinöl, Holzöl, Ricinöl, Naturharzester, weitere.
  • VOC-Gehalt: Max. 440 g/l (EU-Grenzwert: max. 500 g/l).
  • Verarbeitung: Vor Gebrauch aufschütteln, dünn auftragen, polieren.
  • Trocknungszeit: Ca. 6-12 Std., überstreichbar nach 16-24 Std.
  • Verbrauch: 30-50 g/m²; Ergiebigkeit ca. 20 m²/l.
  • Lagerung: Kühl, trocken, ungeöffnet min. 24 Monate haltbar.
  • Entsorgung: Gemäß örtlichen Vorschriften.
  • Hinweise: Farbangaben unverbindlich, Probeanstrich empfohlen.

 

 

Wetterschutz Farbset S - bis 34 m² - Schwedenrot - Wetterschutzfarbe Elastische Farbe inkl. Holzgrund - lange haltbar, kein Abplatzen der Farbe
€ 169,00*
Wetterschutz Farbset S - bis 34 m² - Schwedenrot - Wetterschutzfarbe

Unser Wetterschutzfarbset S - bis 34 m² schützt Holz im Außenbereich zuverlässig vor Sonne, Regen, Kälte und UV-Strahlung. Der elastische Anstrichfilm sorgt für langlebigen Schutz und eine gleichmäßige, farbige Oberfläche.

Die umweltfreundliche, seidenglänzende rote Holzfarbe ist besonders haltbar, platzt nicht ab und eignet sich ideal für sägeraues Holz und alle Holzkonstruktionen im Außenbereich.

  • Gute Deckkraft
  • Wetter- und UV-beständig
  • Wasserdampfdurchlässig
  • Elastischer Anstrichfilm
  • Filmschutz gegen Pilzbefall
  • Speichel- und schweißecht (DIN 53 160)

Bevor du deinem Holz mit der Wetterschutzfarbe den finalen Look gibst, braucht es die richtige Vorbereitung. Genau dafür ist unser offenporiger Holzgrund gemacht.

Er zieht tief ins Holz ein, bleibt dabei atmungsaktiv und sorgt für die ideale Haftung deines Folgeanstrichs. So holst du das Beste aus deiner Holzlasur oder deinem Lack heraus – optisch und technisch.

Warum du grundieren solltest:

  • Optimale Haftung für Lasuren & Lacke
  • Offenporig & tiefenwirksam
  • Für den Außenbereich geeignet
  • Mit Filmschutz gegen Pilzbefall
  • Wetterfest nach vollständiger Trocknung

Lieferumfang:

  • 1 x 2,5 l Holzgrund
  • 2 x 2,5 l Wetterschutzfarbe in Schwedenrot

Unser Wetterschutzfarbset S - bis 34 m² schützt Holz im Außenbereich zuverlässig vor Sonne, Regen, Kälte und UV-Strahlung. Der elastische Anstrichfilm sorgt für langlebigen Schutz und eine gleichmäßige, farbige Oberfläche.

Die umweltfreundliche, seidenglänzende rote Holzfarbe ist besonders haltbar, platzt nicht ab und eignet sich ideal für sägeraues Holz und alle Holzkonstruktionen im Außenbereich.

  • Gute Deckkraft
  • Wetter- und UV-beständig
  • Wasserdampfdurchlässig
  • Elastischer Anstrichfilm
  • Filmschutz gegen Pilzbefall
  • Speichel- und schweißecht (DIN 53 160)

Bevor du deinem Holz mit der Wetterschutzfarbe den finalen Look gibst, braucht es die richtige Vorbereitung. Genau dafür ist unser offenporiger Holzgrund gemacht.

Er zieht tief ins Holz ein, bleibt dabei atmungsaktiv und sorgt für die ideale Haftung deines Folgeanstrichs. So holst du das Beste aus deiner Holzlasur oder deinem Lack heraus – optisch und technisch.

Warum du grundieren solltest:

  • Optimale Haftung für Lasuren & Lacke
  • Offenporig & tiefenwirksam
  • Für den Außenbereich geeignet
  • Mit Filmschutz gegen Pilzbefall
  • Wetterfest nach vollständiger Trocknung

Lieferumfang:

  • 1 x 2,5 l Holzgrund
  • 2 x 2,5 l Wetterschutzfarbe in Schwedenrot

Unser Wetterschutzfarbset S - bis 34 m² schützt Holz im Außenbereich zuverlässig vor Sonne, Regen, Kälte und UV-Strahlung. Der elastische Anstrichfilm sorgt für langlebigen Schutz und eine gleichmäßige, farbige Oberfläche.

Die umweltfreundliche, seidenglänzende anthrazite Holzfarbe ist besonders haltbar, platzt nicht ab und eignet sich ideal für sägeraues Holz und alle Holzkonstruktionen im Außenbereich.

  • Gute Deckkraft
  • Wetter- und UV-beständig
  • Wasserdampfdurchlässig
  • Elastischer Anstrichfilm
  • Filmschutz gegen Pilzbefall
  • Speichel- und schweißecht (DIN 53 160)

Bevor du deinem Holz mit der Wetterschutzfarbe den finalen Look gibst, braucht es die richtige Vorbereitung. Genau dafür ist unser offenporiger Holzgrund gemacht.

Er zieht tief ins Holz ein, bleibt dabei atmungsaktiv und sorgt für die ideale Haftung deines Folgeanstrichs. So holst du das Beste aus deiner Holzlasur oder deinem Lack heraus – optisch und technisch.

Warum du grundieren solltest:

  • Optimale Haftung für Lasuren & Lacke
  • Offenporig & tiefenwirksam
  • Für den Außenbereich geeignet
  • Mit Filmschutz gegen Pilzbefall
  • Wetterfest nach vollständiger Trocknung

Lieferumfang:

  • 1 x 2,5 l Holzgrund
  • 2 x 2,5 l Wetterschutzfarbe in Anthrazitgrau

Unser Wetterschutzfarbset S - bis 34 m² schützt Holz im Außenbereich zuverlässig vor Sonne, Regen, Kälte und UV-Strahlung. Der elastische Anstrichfilm sorgt für langlebigen Schutz und eine gleichmäßige, farbige Oberfläche.

Die umweltfreundliche, seidenglänzende weiße Holzfarbe ist besonders haltbar, platzt nicht ab und eignet sich ideal für sägeraues Holz und alle Holzkonstruktionen im Außenbereich.

  • Gute Deckkraft
  • Wetter- und UV-beständig
  • Wasserdampfdurchlässig
  • Elastischer Anstrichfilm
  • Filmschutz gegen Pilzbefall
  • Speichel- und schweißecht (DIN 53 160)

Bevor du deinem Holz mit der Wetterschutzfarbe den finalen Look gibst, braucht es die richtige Vorbereitung. Genau dafür ist unser offenporiger Holzgrund gemacht.

Er zieht tief ins Holz ein, bleibt dabei atmungsaktiv und sorgt für die ideale Haftung deines Folgeanstrichs. So holst du das Beste aus deiner Holzlasur oder deinem Lack heraus – optisch und technisch.

Warum du grundieren solltest:

  • Optimale Haftung für Lasuren & Lacke
  • Offenporig & tiefenwirksam
  • Für den Außenbereich geeignet
  • Mit Filmschutz gegen Pilzbefall
  • Wetterfest nach vollständiger Trocknung

Lieferumfang:

  • 1 x 2,5 l Holzgrund
  • 2 x 2,5 l Wetterschutzfarbe in Weiß

Unser Wetterschutzfarbset S - bis 34 m² schützt Holz im Außenbereich zuverlässig vor Sonne, Regen, Kälte und UV-Strahlung. Der elastische Anstrichfilm sorgt für langlebigen Schutz und eine gleichmäßige, farbige Oberfläche.

Die umweltfreundliche, seidenglänzende schwarze Holzfarbe ist besonders haltbar, platzt nicht ab und eignet sich ideal für sägeraues Holz und alle Holzkonstruktionen im Außenbereich.

  • Gute Deckkraft
  • Wetter- und UV-beständig
  • Wasserdampfdurchlässig
  • Elastischer Anstrichfilm
  • Filmschutz gegen Pilzbefall
  • Speichel- und schweißecht (DIN 53 160)

Bevor du deinem Holz mit der Wetterschutzfarbe den finalen Look gibst, braucht es die richtige Vorbereitung. Genau dafür ist unser offenporiger Holzgrund gemacht.

Er zieht tief ins Holz ein, bleibt dabei atmungsaktiv und sorgt für die ideale Haftung deines Folgeanstrichs. So holst du das Beste aus deiner Holzlasur oder deinem Lack heraus – optisch und technisch.

Warum du grundieren solltest:

  • Optimale Haftung für Lasuren & Lacke
  • Offenporig & tiefenwirksam
  • Für den Außenbereich geeignet
  • Mit Filmschutz gegen Pilzbefall
  • Wetterfest nach vollständiger Trocknung

Lieferumfang:

  • 1 x 2,5 l Holzgrund
  • 2 x 2,5 l Wetterschutzfarbe in Schwarz
Holzlasur Set - Außen S - bis 34 m² - Weiß - Lasur Unterstützt die natürliche Holzstruktur - Filmschutz gegen Pilz-und Bläuebefall
€ 159,00*
Holzlasur Set - Außen S - bis 34 m² - Weiß - Lasur

Unser transparentes Holzlasur Set - Außen S - bis 34 m² für den Außenbereich ist ideal zum Schutz und zur dekorativen Beschichtung von Holz. Die offenporige Lasur ist wetter- und wasserfest und erhält die natürliche Holzstruktur.

Mit Filmschutz gegen Pilz- und Bläuebefall eignet sich die Lasur ideal für Fenster, Türen, Zäune, Pergolen, Dachüberstände und Holzverkleidungen.

Bevor du deinem Holz mit der Holzlasur den finalen Look gibst, braucht es die richtige Vorbereitung. Genau dafür ist unser offenporiger Holzgrund gemacht.

Er zieht tief ins Holz ein, bleibt dabei atmungsaktiv und sorgt für die ideale Haftung deines Folgeanstrichs. So holst du das Beste aus deiner Holzlasur oder deinem Lack heraus – optisch und technisch.

Warum du grundieren solltest:

  • Optimale Haftung für Lasuren & Lacke
  • Offenporig & tiefenwirksam
  • Für den Außenbereich geeignet
  • Mit Filmschutz gegen Pilzbefall
  • Wetterfest nach vollständiger Trocknung

Lieferumfang:

  • 1 x 2,5 l Holzgrund
  • 2 x 2,5 l Holzlasur in transparentem Weiß

Unser transparentes Holzlasur Set - Außen S - bis 34 m² für den Außenbereich ist ideal zum Schutz und zur dekorativen Beschichtung von Holz. Die offenporige Lasur ist wetter- und wasserfest und erhält die natürliche Holzstruktur.

Mit Filmschutz gegen Pilz- und Bläuebefall eignet sich die Lasur ideal für Fenster, Türen, Zäune, Pergolen, Dachüberstände und Holzverkleidungen.

Bevor du deinem Holz mit der Holzlasur den finalen Look gibst, braucht es die richtige Vorbereitung. Genau dafür ist unser offenporiger Holzgrund gemacht.

Er zieht tief ins Holz ein, bleibt dabei atmungsaktiv und sorgt für die ideale Haftung deines Folgeanstrichs. So holst du das Beste aus deiner Holzlasur oder deinem Lack heraus – optisch und technisch.

Warum du grundieren solltest:

  • Optimale Haftung für Lasuren & Lacke
  • Offenporig & tiefenwirksam
  • Für den Außenbereich geeignet
  • Mit Filmschutz gegen Pilzbefall
  • Wetterfest nach vollständiger Trocknung

Lieferumfang:

  • 1 x 2,5 l Holzgrund
  • 2 x 2,5 l Holzlasur in transparentem Weiß

Unser transparentes Holzlasur Set - Außen S - bis 34 m² für den Außenbereich ist ideal zum Schutz und zur dekorativen Beschichtung von Holz. Die offenporige Lasur ist wetter- und wasserfest und erhält die natürliche Holzstruktur.

Mit Filmschutz gegen Pilz- und Bläuebefall eignet sich die Lasur ideal für Fenster, Türen, Zäune, Pergolen, Dachüberstände und Holzverkleidungen.

Bevor du deinem Holz mit der Holzlasur den finalen Look gibst, braucht es die richtige Vorbereitung. Genau dafür ist unser offenporiger Holzgrund gemacht.

Er zieht tief ins Holz ein, bleibt dabei atmungsaktiv und sorgt für die ideale Haftung deines Folgeanstrichs. So holst du das Beste aus deiner Holzlasur oder deinem Lack heraus – optisch und technisch.

Warum du grundieren solltest:

  • Optimale Haftung für Lasuren & Lacke
  • Offenporig & tiefenwirksam
  • Für den Außenbereich geeignet
  • Mit Filmschutz gegen Pilzbefall
  • Wetterfest nach vollständiger Trocknung

Lieferumfang:

  • 1 x 2,5 l Holzgrund
  • 2 x 2,5 l Holzlasur in transparentem Pinienton

Unser transparentes Holzlasur Set - Außen S - bis 34 m² für den Außenbereich ist ideal zum Schutz und zur dekorativen Beschichtung von Holz. Die offenporige Lasur ist wetter- und wasserfest und erhält die natürliche Holzstruktur.

Mit Filmschutz gegen Pilz- und Bläuebefall eignet sich die Lasur ideal für Fenster, Türen, Zäune, Pergolen, Dachüberstände und Holzverkleidungen.

Bevor du deinem Holz mit der Holzlasur den finalen Look gibst, braucht es die richtige Vorbereitung. Genau dafür ist unser offenporiger Holzgrund gemacht.

Er zieht tief ins Holz ein, bleibt dabei atmungsaktiv und sorgt für die ideale Haftung deines Folgeanstrichs. So holst du das Beste aus deiner Holzlasur oder deinem Lack heraus – optisch und technisch.

Warum du grundieren solltest:

  • Optimale Haftung für Lasuren & Lacke
  • Offenporig & tiefenwirksam
  • Für den Außenbereich geeignet
  • Mit Filmschutz gegen Pilzbefall
  • Wetterfest nach vollständiger Trocknung

Lieferumfang:

  • 1 x 2,5 l Holzgrund
  • 2 x 2,5 l Holzlasur in transparentem Hellgrau

Unser transparentes Holzlasur Set - Außen S - bis 34 m² für den Außenbereich ist ideal zum Schutz und zur dekorativen Beschichtung von Holz. Die offenporige Lasur ist wetter- und wasserfest und erhält die natürliche Holzstruktur.

Mit Filmschutz gegen Pilz- und Bläuebefall eignet sich die Lasur ideal für Fenster, Türen, Zäune, Pergolen, Dachüberstände und Holzverkleidungen.

Bevor du deinem Holz mit der Holzlasur den finalen Look gibst, braucht es die richtige Vorbereitung. Genau dafür ist unser offenporiger Holzgrund gemacht.

Er zieht tief ins Holz ein, bleibt dabei atmungsaktiv und sorgt für die ideale Haftung deines Folgeanstrichs. So holst du das Beste aus deiner Holzlasur oder deinem Lack heraus – optisch und technisch.

Warum du grundieren solltest:

  • Optimale Haftung für Lasuren & Lacke
  • Offenporig & tiefenwirksam
  • Für den Außenbereich geeignet
  • Mit Filmschutz gegen Pilzbefall
  • Wetterfest nach vollständiger Trocknung

Lieferumfang:

  • 1 x 2,5 l Holzgrund
  • 2 x 2,5 l Holzlasur in transparentem Anthrazitgrau
Häufige Fragen zu dem Produkt

Welche Nutzungsmöglichkeiten bietet das Gartenhaus Valeria?

In einer Wandstärke von 28-39 mm lassen sich neben reiner Lagerung auch Hobby- oder Nebenräume realisieren, zum Beispiel kleine Werkstätten, Fahrradunterstände oder Spielbereiche. Die Konstruktion ist stabiler und bietet etwas höheren Komfort. Längere Aufenthalte sind möglich, jedoch stark witterungsabhängig und nicht für alle Jahreszeiten geeignet. Bei Fragen hilft dir unser Beratungs-Team gerne und detaillietere Infos findest du in unserem Ratgeber.
>> Ratgeber: Gartenhaus Wandstärke

Welches Fundament ist für das Gartenhaus Valeria geeignet?

Ein Plattenfundament oder kleines Streifenfundament sorgen bei diesem Gartenhaus in den meisten Fällen für einen sicheren Stand. Faustregel: Je schwerer Dach und Zubehör, desto stabiler sollte auch das Fundament sein. Zudem solltest du auf eine ausrechende Windverankerung achten. Bei Fragen hilft dir unser Beratungs-Team gerne und in unserem Ratgeber findest du weitere passende Fundamentlösungen.
>> Ratgeber: Gartenhaus Fundament

Brauche ich für das Gartenhaus Valeria eine Baugenehmigung?

Für ein Gartenhaus dieser Größe kann eine Anzeige oder vereinfachte Bewilligung nötig sein. Ob eine Genehmigung erforderlich ist, hängt dabei von der Nutzung und den baulichen Vorgaben ab. Auch Abstandsregeln können relevant sein. Bei Fragen hilft dir unser Beratungs-Team gerne und mehr Details dazu, wann du eine Baugenehmigung brauchst und welche Ausnahmen es gibt, erhältst du in unserem Ratgeber.
>> Ratgeber Baugenehmigung

Welche Dacheindeckung wähle ich für das Gartenhaus Valeria?

Ein Satteldach lässt sich sehr vielseitig eindecken, zum Beispiel mit Bitumenschindeln, Holzschindeln, Stahlblech oder leichter Dachfolie. Durch die zwei geneigten Dachflächen funktioniert der Wasserablauf zuverlässig, was die Auswahl der Materialien erweitert. Auch optisch bietet das Satteldach viele Gestaltungsmöglichkeiten – von klassisch bis modern. Bei Fragen hilft dir unser Beratungs-Team gerne und mehr Details findest du in unserem Ratgeber.
>> Ratgeber: Gartenhaus Dacheindeckung
Baupläne & Dokumente
Gartenhaus Valeria Verfügbare Downloads: Sicherheitshinweise-Gartenhaus-Alpholz.pdf
Bewertungen

Durchschnittliche Bewertung von 4.6 von 5 Sternen

(4)

Durchschnittliche Bewertung von 4.6 von 5 Sternen

(4 Bewertungen)

Das Gartenhaus ist sehr stabil

Unser Gartenhaus ist das Valeria-28. Der Aufbau hat mit Pflaster und Streicharbeiten ca. ein Wochenende gedauert. Wir haben keine Änderungen vorgenommen. Das Gartenhaus nutzen wir im Sommer als Essbereich sowie auch als Sitzbereich mit der Familie. Auch Feierlichkeiten finden hier statt. Wir haben darauf geachtet, dass es im Winter auch beheizbar ist. Das Gartenhaus ist sehr stabil und robust. Bei der Aussengestaltung haben wir uns für einen grauen Anstrich entschieden. Auch der Innenbereich ist bei dem Valeria-28 ausreichend groß.

Durchschnittliche Bewertung von 5 von 5 Sternen

Der neue Partyraum unserer Kinder

Der neue Partyraum unserer Kinder! Und natürlich auch von uns. Der Aufbau war super, und daneben und eine Überdachung für Geräte.

Durchschnittliche Bewertung von 5 von 5 Sternen

Top Gartenhaus

Ein Gartenhaus wie man sich es vorstellt. Top Preis! Habe es mit zwei Kumpels in einem Tag aufgebaut, hat perfekt funktioniert. Jetzt fehlt nur noch der Anstrich

Durchschnittliche Bewertung von 4.5 von 5 Sternen

Solides Gartenhaus

Bestellung an Lieferung alles reibungslos. Ware wurde sorgfältig verpackt, so dass auch die Gegenstände mit Glas unversehrt sind. Beim Auspacken der Ware musste jedoch leider festgestellt werden, dass einige Bohlen etwas verzogen sind und dies die Montage mit der einfachen Steckverbindung etwas erschwert hatte. Der enthaltende Fußboden als auch das Dach aus 12 mm starken OSB Platten erfüllt seinen Zweck. Die Montageanleitung war leider etwas dürftig. Im Großen und Ganzen ist das Gartenhaus super geräumig und empfehlenswert.

Durchschnittliche Bewertung von 4 von 5 Sternen

Produktdetails
Details:
Wandstärke (mm)
28
Materialart
Nordische Fichte
Oberflächenbehandlung
ohne
Grundfarbe
Naturbelassen
Grundfläche
14,3
Gesamtmaß (cm)
438 x 427
Gesamthöhe
222
Rauminhalt
29,2
Seitenverkehrte Montage
Ja
Fußboden
inklusive
Bauweise
Blockbohlenbauweise
Dachform
Satteldach
Dachfläche (m²)
19,2
Dachneigung
12
Dacheindeckung
ohne
Innenmaß (cm)
372 x 372
Sockelmaß (cm)
375 x 375
Türmaß (cm)
160 x 173 cm
Fensteranzahl
1
Fensterausführung
Feststehendes Fenster
Fenstermaß (cm)
77 x 77 cm
Verglasung
Echtglas

Beliebte Produkte