Zum Hauptinhalt springen Zur Suche springen Zur Hauptnavigation springen
Bis zu 1.500 € sparen + 3% Extra-Skonto sichern! | Nur für kurze Zeit
Beratung
Sales Contact Image
Verkaufsberatung: 0720 204022
Rückrufservice
Tage
Verlängert: 33% Rabatt auf Zubehör | Code: ZUBEHOER33 | steigende Preise ab Mai wegen erhöhter Logistikkosten

€ 10.499,00

inkl. MwSt. | zzgl. Versandkosten

-33% Rabatt auf Zubehör | Code: ZUBEHOER33

Alpholz Home-Office 6

Die unten ausgewählten Zubehörartikel werden mit in den Warenkorb gelegt.
Purchase Advice Image
Persönliche Produkt- & Kaufberatung gewünscht Tel: 0720 204022
Fragen zum Produkt und Extra-Deal sichern?
WhatsApp-Beratung und Extra-Deal sichern!
Whatsapp Beratung
Lieferzeit ca. 6-7 Wochen
Paid Delivery Icon
Sicher bezahlen
Skonto Icon
-3% Skonto bei Vorkasse
Produktvarianten
Farbbehandlung wählen:
Lieferung zum Wunschzeitraum
Passendes Zubehör zu diesem Produkt
Produktbeschreibung

Alpholz Home-Office – Dein Büro im Grünen. Arbeiten, wo andere entspannen – mit dem Alpholz Home-Office holst du dir ein Stück Freiheit in den Arbeitsalltag. Schluss mit Küchentisch und Ablenkung im Wohnzimmer! Dieses stilvolle Gartenhaus bringt Struktur, Ruhe und Inspiration direkt in deinen Garten. Das Gartenhaus ist aus hochwertigem, massivem Holz gefertigt und fügt sich harmonisch in deinen Garten ein. Fenster sorgen für viel Tageslicht und ein angenehmes Raumklima – perfekt für konzentriertes Arbeiten, kreative Pausen oder wichtige Videocalls. 

in verschiedenen Farben erhältlich

 wasserdichte Ecken dank moderner Eckverbindung

Verglasung aus ISO-Glas

Artikeldetails Alpholz Home-Office 6:

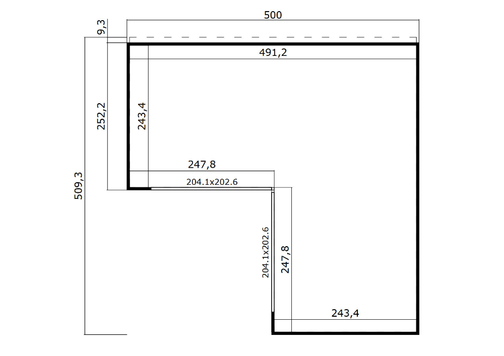
  • Außenmaß mit Dachüberstand: 500 x 509,3 cm
  • Sockelmaß: 500 x 500 cm
  • Grundfläche Gartenhaus: ca. 17,88 m²
  • Seitenwandhöhe: ca. 234 cm
  • Gesamthöhe: ca. 250,8 cm
  • Rauminhalt Gartenhaus: ca. 43,62 m³
  • Dachneigung: 1,3°
  • Wandstärke: 44 mm
  • Farbe: natur/anthrazit
  • Farbe im Inneren: unbehandelt, natur
  • Material: Nordische Fichte
  • Bauweise: Steck-/Schraub-System
  • Schiebetüren mit Glas und mit Aluminium-Rahmen
  • Fenster (feststehend) mit Klarglas und mit Aluminium-Rahmen
  • Verglasung der Fenster: 4 mm ESG-Glas (Einscheibensicherheitsglas)
  • 18 mm Dach- und Fußbodenbretter Nut und Feder
  • inkl. imprägnierte Unterkonstruktion

Im Lieferumfang des Gartenhauses enthalten:

  • Alpholz Home-Office 6
  • Fußboden
  • 2x Schiebetür 204 x 202,6 cm bestehend aus 2 Elementen
  • Schiebetür 400 x 202,6 cm bestehend aus 4 Elementen
  • Montagematerial
  • Aufbauzeichnung

 

Wir weisen darauf hin, dass die Dacheindeckung optional erhältlich ist.

Zubehör & Services
5 Zubehörartikel sind gerade ausgewählt (inkl. unseren Empfehlungen). Die passenden Mengen sind voreingestellt.

Das benötigst du für den Aufbau

Sparset Montagezubehör und Befestigung ES Das perfekte Set für den sicheren Aufbau und die Verankerung deines Gartenhauses/deiner Sauna – schützt zuverlässig vor Feuchtigkeit, Wind und Sturm.
€ 79,00*
Sparset Montagezubehör und Befestigung ES

Basic Zubehör Set mit bis zu 20% Ersparnis gegenüber dem Einzelkauf!

Das perfekte Set für den sicheren Aufbau und die Verankerung deines Gartenhauses – schützt zuverlässig vor Feuchtigkeit, Wind und Sturm. Mit einem Klick erhältst du alle wichtigen Komponenten in ausreichender Menge für einen langlebigen und stabilen Aufbau.

Bestehend aus:

  • Feuchtigkeitssperre (ca. 50 Stück) aus Spezial-Gummigranulat - Schützt vor aufsteigender Nässe, gleicht Unebenheiten aus und sorgt für Drainage und Luftzirkulation.
  • Sturmwinkel (Set: 4 Stück) - Zur sicheren Befestigung des Gartenhauses am Fundament (Schrauben & Dübel sind nicht im Lieferumfang enthalten).

Unsere Empfehlung

Für eine optimale und dauerhafte Sturm- und Feuchtigkeitssicherung empfehlen wir den kombinierten Einsatz aller im Set enthaltenen Komponenten. So ist dein Gartenhaus bestmöglich befestigt und zuverlässig gegen Wind und Witterung geschützt.

Sparset KSK Dacheindeckung - 19 m² Dein Rundum-sorglos-Paket für ein regensicheres Dach – das KSK-Komplettset mit Unterdeckbahn, Dachabschluss und Befestigungsmaterial.
€ 819,00*
Sparset KSK Dacheindeckung - 19 m²

Dein Rundum-sorglos-Paket fürs regensichere Dach – das KSK-Komplettset spart dir bis zu 20 % gegenüber dem Einzelkauf!

 

Lieferumfang für Dachflächen bis 19 m²:

· Selbstklebende KSK-Dachbahn (10 Rollen)

· Unterdeckbahn Ondutiss Strong Air 120 (2 Rollen)

· Winkelprofil Typ 1 c (10 Stück) inkl. Spenglerschrauben mit Dichtscheiben

· Dachpappstifte (1 Päckchen)

 

KSK-Dachbahn:

Mit der selbstklebenden Bitumendachbahn gelingt die Dachabdichtung ganz einfach – ohne Flamme, ohne Stress! Ideal für Gartenhäuser, Saunahäuser oder Garagen – schnell, sicher und dauerhaft dicht.

· Abmessung: 0,5 x 5 m

· Stärke: ca. 1,5 mm

· Nutzbar für Dachneigungen ab 5°

· Verarbeitungstemperatur: +15 bis +35 °C

· Farbe: Anthrazit

 

Unterdeckbahn Ondutiss Strong Air 120:

Die hochwertige, dreilagige Unterspann- und Schalungsbahn aus Polypropylen bietet zuverlässigen Schutz vor Wind und Feuchtigkeit und unterstützt eine effiziente Wärmedämmung.

· Abmessung: 10 x 1 m

 

Dachpappstifte:

Die Dachpappstifte dienen zur robusten und wetterfesten Befestigung der Unterdeckbahn. Ihre verzinkte Oberfläche sorgt für einen zuverlässigen Schutz vor Korrosion.

· Abmessung: 2,5 x L 15 mm

· Ø Kopf: 8 mm

· Verzinkt

· Menge: ca. 200 g = ca. 133 Stück

 

Winkelprofil Typ 1 c:

Für eine langlebige und sichere Dacheindeckung: Das Aluminium-Winkelprofil Typ 1 c schützt die Übergänge zwischen Dacheindeckung und Dachrand zuverlässig vor eindringender Feuchtigkeit. Es sorgt nicht nur für dauerhaften Halt, sondern auch für einen sauberen, optisch ansprechenden Dachabschluss – ideal für Flachdächer und Pultdächer.

· Material: Aluminium

· Farbe: Anthrazit pulverbeschichtet

· Länge: 2 m

· Stärke: 0,8 mm

 

Spenglerschrauben mit Dichtscheiben:

Die hochwertigen Spenglerschrauben mit Dichtscheibe sorgen für eine dauerhaft dichte und stabile Befestigung der Winkelprofile. Tipp: Für den besten Halt empfehlen wir 4 Schrauben pro Profil.

· Abmessung: 4,5 mm Durchmesser und 20 mm Länge / Torx

· Farbe: Anthrazit RAL 7016

 

Das Zubehörpaket ist optimal auf die üblichen Bedarfsmengen abgestimmt. Je nach Art der Befestigung und Überlappung kann der Materialverbrauch leicht variieren.

Flachdachblende Typ 10
€ 869,00* € 79,00* / Stück
Flachdachblende Typ 10

Für Cubus und Flachdachhäuser ohne Blendbretter. An drei oder vier Hausseiten einsetzbar. Kombinierbar mit Dachrinne oder Fallrohrset

2 teiliges Set, bestehend aus:

  • 1x Typ 10a Leiste (außen): A: 120 mm; B: 30 mm; C: 15 mm; D:90°; E:225°; F:135°
  • 1x Typ 10b Leiste (innen): A: 85 mm; B: 85 mm; C: 30 mm; D:45°; E:135°
  • Aluminium, anthrazit pulverbeschichtet
  • Länge: je 200cm
  • Stärke: 0,8 mm

Schrauben sind nicht im Lieferumfang. Passende Spenglerschrauben sind hier.

 

Fundamentträger Kunststoff - Standard Kunststoff-Fundamentträger mit Tropfkante – schützt zuverlässig vor Feuchtigkeit, individuell zuschneidbar und passend für alle Wandstärken.
€ 39,00*
Fundamentträger Kunststoff - Standard

Bitte ändere die Anzahl der Fundamentträger auf die benötigte Menge.
Berechne einfach den Umfang des Garten- oder Gerätehauses und wähle die entsprechende Anzahl der Fundamentträger.

Dieser Fundamentträger aus Kunststoff hat eine praktische Tropfkante, die die erste Wandschicht gegen Feuchtigkeit schützt. 

  • Maße: 35 x 85 x 3000 mm
  • Material: Kunststoff
  • Menge: 1
  • in Kombination mit Fußboden/Fundamenthölzer zu nutzen
  • erhältlich in Standard Ausführung für alle Wandstärken 
  • einfacher Zuschnitt der Fundamentträger, mit jeder handelsüblichen Hand- oder Stichsäge möglich

 

 

Bitte ändere die Anzahl der Fundamentträger auf die benötigte Menge.
Berechne einfach den Umfang des Garten- oder Gerätehauses und wähle die entsprechende Anzahl der Fundamentträger.

Dieser Fundamentträger aus Kunststoff hat eine praktische Tropfkante, die die erste Wandschicht gegen Feuchtigkeit schützt. 

  • Maße: 35 x 85 x 3000 mm
  • Material: Kunststoff
  • Menge: 1
  • in Kombination mit Fußboden/Fundamenthölzer zu nutzen
  • erhältlich in Standard Ausführung für alle Wandstärken 
  • einfacher Zuschnitt der Fundamentträger, mit jeder handelsüblichen Hand- oder Stichsäge möglich

 

 

PGH Fussbodenträger Kunststoff - Verstellbereich 3 - 6 cm Höhenverstellbarer Fußbodenträger aus Kunststoff – ideal zum Ausgleich unebener Untergründe, flexibel einsetzbar und belastbar.
€ 39,00*
PGH Fussbodenträger Kunststoff - Verstellbereich 3 - 6 cm

Dieser Fußbodenträger aus neuem Kunststoff ist flexibel einsetzbar und in der Höhe verstellbar. So kann jeder unebene Untergrund ausgeglichen werden.

Artikeldetails:

  • Maße: ca. 16 x 16 x 5 cm
  • Material: Kunststoff
  • Anzahl: 1
  • Abstand der einzelnen Fußbodenträger: ca. 30 cm 
  • in zwei unterschiedlichen Verstellbereichen erhältlich
  • Höchstbelastung 450 kg bzw. 1400 kg
  • in Kombination mit Fußboden/Fundamenthölzer zu nutzen

Dieser Fußbodenträger aus neuem Kunststoff ist flexibel einsetzbar und in der Höhe verstellbar. So kann jeder unebene Untergrund ausgeglichen werden.

Artikeldetails:

  • Maße: ca. 16 x 16 x 5 cm
  • Material: Kunststoff
  • Anzahl: 1
  • Abstand der einzelnen Fußbodenträger: ca. 30 cm 
  • in zwei unterschiedlichen Verstellbereichen erhältlich
  • Höchstbelastung 450 kg bzw. 1400 kg
  • in Kombination mit Fußboden/Fundamenthölzer zu nutzen

Dieser Fußbodenträger aus neuem Kunststoff ist flexibel einsetzbar und in der Höhe verstellbar. So kann jeder unebene Untergrund ausgeglichen werden.

Artikeldetails:

  • Maße: ca. 16 x 16 x 5 cm
  • Material: Kunststoff
  • Anzahl: 1
  • Abstand der einzelnen Fußbodenträger: ca. 30 cm 
  • in zwei unterschiedlichen Verstellbereichen erhältlich
  • Höchstbelastung 450 kg bzw. 1400 kg
  • in Kombination mit Fußboden/Fundamenthölzer zu nutzen
Premium Sparset EPDM Dacheindeckung - 6,1 x 6,4 m Dein wartungsfreies EPDM-Komplettset inkl. Kleber, Rolle und Metall-Dachabschluss für dauerhaft regensicheres Dach – 20 Jahre Herstellergarantie.
€ 1.419,00*
Premium Sparset EPDM Dacheindeckung - 6,1 x 6,4 m

Dein wartungsfreies Rundum-sorglos-Paket fürs langfristig regensichere Dach – das EPDM-Komplettset zum Vorteilspreis mit 20 Jahren Herstellergarantie!

Lieferumfang:

· EPDM-Folienzuschnitt: 6,1 x 6,4 m

· Flächenkleber

· Walze mit Griff

· Winkelprofil Typ 1c (14 Stück) inkl. Spenglerschrauben mit Dichtscheiben

 

EPDM-Folie:

Erlebe Dachabdichtung auf höchstem Niveau – einfach, sicher, dauerhaft und nachhaltig. Unsere EPDM-Dachfolie überzeugt durch eine Kombination aus herausragender Langlebigkeit, Umweltfreundlichkeit und müheloser Verarbeitung.

20 Jahre Herstellergarantie – für maximale Sicherheit und Vertrauen in die Qualität.
Über 50 Jahre Lebenserwartung – eine Investition, die Generationen überdauert.
Zugelassene Dachabdichtung – geprüft und zertifiziert für den professionellen Einsatz.
Nachhaltig & recyclebar – kann am Ende der Lebensdauer umweltfreundlich im Hausmüll entsorgt werden.
Wurzelfest – ideal geeignet für die Begrünung deines Daches und ökologisches Bauen.
Einfache Verlegung – kein Spezialwerkzeug, kein Gasbrenner, kein Schweißgerät erforderlich.
Nahtlose Abdichtung in einem Stück – schützt zuverlässig vor Feuchtigkeit und Witterung.

Setze auf EPDM – die smarte Lösung für dein Dach, die Langlebigkeit, Umweltbewusstsein und Benutzerfreundlichkeit perfekt vereint.

· Foliengröße: 6,1 m x 6,4 m

· Stärke 1,2 mm

· Flächengewicht: 1,5 kg/m²

· Hohe Temperaturstabilität von -45 °C bis +130 °C

· Frei von Weichmachern

· UV-beständig, Ozonbeständig

· Dauerhaft elastisch, Reißdehnung > 300%

 

Winkelprofil Typ 1c:

Für eine langlebige und sichere Dacheindeckung: Das Aluminium-Winkelprofil Typ 1 c schützt die Übergänge zwischen Dacheindeckung und Dachrand zuverlässig vor eindringender Feuchtigkeit. Es sorgt nicht nur für dauerhaften Halt, sondern auch für einen sauberen, optisch ansprechenden Dachabschluss – ideal für Flachdächer und Pultdächer.

· Material: Aluminium

· Farbe: Anthrazit pulverbeschichtet

· Länge: 2 m

· Stärke: 0,8 mm

 

Spenglerschrauben mit Dichtscheiben:

Die hochwertigen Spenglerschrauben mit Dichtscheibe sorgen für eine dauerhaft dichte und stabile Befestigung der Winkelprofile. Tipp: Für den besten Halt empfehlen wir 4 Schrauben pro Profil.

· Abmessung: 4,5 mm Durchmesser und 20 mm Länge / Torx

· Farbe: Anthrazit RAL 7016

 

Das Zubehörpaket ist optimal auf die üblichen Bedarfsmengen abgestimmt. Je nach Art der Befestigung und Überlappung kann der Materialverbrauch leicht variieren.

Montage und Services

Montage GartenHaus Schraubsystem Ein-Raum bis 30m² m. Fußb. - Basic - Montage Haus
€ 3.549,00*
Montage GartenHaus Schraubsystem Ein-Raum bis 30m² m. Fußb. - Basic - Montage Haus

GartenHaus Montageservice: Fachgerechte Montage vom Profi zum Bestpreis!

Wähle bequem aus unseren Montage-Sets das für dich passende Gesamtpaket.

Option 1  –  Basic Montage – Haus:

In diesem Set sind enthalten:

·         Der Aufbau des Produktes mit dem kompletten Aufbau ab Oberkante Fundament, inklusive allen im Bausatz enthaltenen Zubehörteilen. Tragewege zum Aufbauort bis 15 m sind im Preis inklusive.

·         Wenn du dich für das Sparset "Montagezubehör und Befestigung" entscheidest, ist auch die Montage dieses Sets inklusive. Wir empfehlen dieses dringend zum sicheren Aufbau. Es schützt dein Produkt effektiv gegen Feuchtigkeit und starken Wind.

Wenn du weiteres Zubehör montieren willst, kannst du das als Zusatzmontage dazu buchen. Die findest du direkt bei deinem Wunschprodukt..

Option 2  – Premium Montage  – Haus und Dacheindeckung:

In diesem Set sind enthalten:

·         Alle Leistungen aus Montage Option 1

·         Zusätzlich enthalten ist das fachgerechte Verlegen von Dachpappe und Dachschindeln, KSK oder EPDM-Folie. Das Material ist nicht im Lieferumfang. Bestelle hierfür eines der vorgeschlagenen Dacheindeckungs-Sets bzw. das Wunschmaterial in der vorgegebenen Menge. Bitte achte auf die richtige Anzahl/Größe der Dachbahn/Folie und Dachabschluss-Profile bzw. -Blenden. Wir beraten dich gern zu den Möglichkeiten!

·         Ein persönlicher Ansprechpartner begleitet dein Projekt von Beauftragung bis zum Abschluss der Montage.

Wenn du weiteres Zubehör montieren willst, kannst du das als Zusatzmontage dazu buchen. Die findest du direkt bei deinem Wunschprodukt..

Option 3 – Exklusiv Montage – Haus und Dacheindeckung + alle optionalen Zusatzmontagen und Sonderwünsche

Wenn du das volle Programm ohne „Wenn“ und „Aber“ willst, ist diese Option genau das Richtige für dich.

In diesem Set sind enthalten:

·         Alle Leistungen der Montage Optionen 1+2

·         Die Zusatzmontage des passenden Dachrinnensets

·         Die Zusatzmontage des Fußbodens (wenn der Fußboden im Lieferumfang des Bausatzes enthalten ist, ist die Montage bereits in der Basic-Option inbegriffen)

·         Verlegung der Bodendämmung

·         Imprägnierung während des Aufbaus (nur notwendig, wenn das Produkt nicht bereits ab Werk mit einer Imprägnierung versehen wurde)

·         Längere Tragewege zum Aufbauort bis 40 m sind im Preis inklusive

·         Wir gehen auf deine individuellen Sonderwünsche ein und finden passende Lösungen

Bitte beachte, dass das zu verbauende Zubehör als optionales Zubehör bestellt werden muss. Wir bieten unseren Montageservice nur für Original-GartenHaus Zubehör an.

Weitere Hinweise:

Imprägnierung: Fachgerechtes (einmaliges) Auftragen von Imprägnierungsmittel (nach Aufbau) an der Außenseite des Produktes. Das Material ist nicht im Lieferumfang. Bestelle bitte hierfür PGH Holzschutzgrund Imprägnierung aus dem Zubehör in vorgeschlagener Menge oder das passende Farbenset.

Die Imprägnierung schafft – in Verbindung mit einer Holzendbehandlung in Form von Deckfarbe oder Lasur – die Basis für langanhaltenden Schutz vor holzabbauenden Pilzen, Bläuebefall, holzzerstörende Insekten/Schimmel. Damit ist der Grundstein für langjährige Freude an deinem Wunschprodukt gelegt! (Die Holzendbehandlung kann erst ca. 24 Stunden nach der Imprägnierung erfolgen und kann daher hier nicht mit angeboten werden.)

Wir weisen an dieser Stelle darauf hin, dass eine Imprägnierung ab Werk – bei vielen Modellen direkt als Variante zu wählen – einen stärkeren Schutz bietet als die Imprägnierung nach dem Aufbau. Bei der Werksimprägnierung wird das Imprägnierungsmittel in der Fertigung maschinell aufgetragen. Hierbei werden insbesondere auch Nut und Feder effektiv geschützt.

Die Imprägnierung des Hauses, ob durch unser Montageteam oder ab Werk, stellt eine Erstbehandlung dar. Für einen optimalen Schutz deines Hauses ist nach einer Trocknungszeit ein Zweitanstrich mit einer geeigneten Lasur - bzw. Deckfarbe nötig. Wir empfehlen dir hierfür unsere qualitätsgeprüften PGH-Farben und Lasuren aus unserem Zubehör-Sortiment.

Der GartenHaus Montageservice auf einen Blick: Deine Vorteile

✓ Fachgerechter Aufbau durch unsere Montage-Profis

✓ Ein fester Ansprechpartner für dein Projekt

✓ Bestpreisgarantie und Qualität vom Marktführer

Montageservice der GartenHaus GmbH: So funktioniert‘s:
Nach deiner Bestellung vereinbaren wir mit dir einen Termin, besprechen deinen Auftrag und klären alle deine Fragen.

Wir schicken dir rechtzeitig die Kontaktdaten deines Montagepartners aus deiner Region. Wenn du fachliche Fragen oder Wünsche hast, kannst du dich direkt an einen kompetenten Ansprechpartner wenden. Du stimmst die letzten Fragen mit dem Montage-Team ab und vereinbarst dann einen Termin.

Bitte beachte, dass die Aufbauteams zum Einplanen deines Montagetermins ausreichend Vorlaufszeit benötigen. Damit der Aufbau zeitnah nach der Lieferung erfolgen kann, empfiehlt es sich, die Buchung des Montageservices mit der Produktbestellung vorzunehmen. Eine spätere Nachbestellung des Montageservices ist nach individueller Absprache und erfolgter Prüfung gegebenenfalls möglich. Auch die Montage von Dachrinne, Fußbodendämmung, optionalem Fußboden, sowie die Imprägnierung sind optional in unserem Zubehör am Produkt hinzubuchbar.

Bitte hab Verständnis, dass aus Sicherheitsgründen nur die über die GartenHaus GmbH bezogenen Originalteile verbaut werden.

Für die Vorbereitung der Baustelle und für die Bestellung von Montageleistungen gibt es wichtige Infos. Diese findest du im Dokument und Link

 

Hinweis zur Buchung des richtigen Montageservices: Grundsätzlich sind am Produkt immer die richtigen Montageservice Artikel hinterlegt. Wenn du eine Montage nachträglich buchst, achte bitte bei der Auswahl auf folgende Merkmale:

·         Walmdach: Mit 4 und mehr Dachflächen (siehe Beispielbilder). Alle anderen Dächer werden als „Standarddach“ betrachtet

·         Fußboden: Viele unserer Produkte werden bereits ab Werk mit einem Fußboden ausgeliefert. Für diese Produkte ist das entsprechende Montageprodukt inkl. Fußboden zu wählen. Wenn der Fußboden nicht im Lieferumfang ist, kannst du ihn einfach als separates Zubehör dazu buchen. Für diese Fußböden ist die Zusatzmontage für Fußböden zu wählen.

·         Mehrraum: Für Gebäude mit mindestens einem, durch eine Wand getrennten Raum oder Schlafboden

·         Quadratmeteranzahl: Bezieht sich auf die Grundfläche + Dachüberhang des zu montierenden Produktes

·         Bauart:

Block bezeichnet Häuser, bei denen die Bohlen ineinandergreifend ausgeführt sind (siehe folgendes Bild)

Schraubsystem bezieht sich auf Produkte, die in Elementen oder einzelnen Bohlen ausgeführt sind und im Rahmen verschraubt werden müssen. (siehe folgendes Bild)

GartenHaus Montageservice: Fachgerechte Montage vom Profi zum Bestpreis!

Wähle bequem aus unseren Montage-Sets das für dich passende Gesamtpaket.

Option 1  –  Basic Montage – Haus:

In diesem Set sind enthalten:

·         Der Aufbau des Produktes mit dem kompletten Aufbau ab Oberkante Fundament, inklusive allen im Bausatz enthaltenen Zubehörteilen. Tragewege zum Aufbauort bis 15 m sind im Preis inklusive.

·         Wenn du dich für das Sparset "Montagezubehör und Befestigung" entscheidest, ist auch die Montage dieses Sets inklusive. Wir empfehlen dieses dringend zum sicheren Aufbau. Es schützt dein Produkt effektiv gegen Feuchtigkeit und starken Wind.

Wenn du weiteres Zubehör montieren willst, kannst du das als Zusatzmontage dazu buchen. Die findest du direkt bei deinem Wunschprodukt..

Option 2  – Premium Montage  – Haus und Dacheindeckung:

In diesem Set sind enthalten:

·         Alle Leistungen aus Montage Option 1

·         Zusätzlich enthalten ist das fachgerechte Verlegen von Dachpappe und Dachschindeln, KSK oder EPDM-Folie. Das Material ist nicht im Lieferumfang. Bestelle hierfür eines der vorgeschlagenen Dacheindeckungs-Sets bzw. das Wunschmaterial in der vorgegebenen Menge. Bitte achte auf die richtige Anzahl/Größe der Dachbahn/Folie und Dachabschluss-Profile bzw. -Blenden. Wir beraten dich gern zu den Möglichkeiten!

·         Ein persönlicher Ansprechpartner begleitet dein Projekt von Beauftragung bis zum Abschluss der Montage.

Wenn du weiteres Zubehör montieren willst, kannst du das als Zusatzmontage dazu buchen. Die findest du direkt bei deinem Wunschprodukt..

Option 3 – Exklusiv Montage – Haus und Dacheindeckung + alle optionalen Zusatzmontagen und Sonderwünsche

Wenn du das volle Programm ohne „Wenn“ und „Aber“ willst, ist diese Option genau das Richtige für dich.

In diesem Set sind enthalten:

·         Alle Leistungen der Montage Optionen 1+2

·         Die Zusatzmontage des passenden Dachrinnensets

·         Die Zusatzmontage des Fußbodens (wenn der Fußboden im Lieferumfang des Bausatzes enthalten ist, ist die Montage bereits in der Basic-Option inbegriffen)

·         Verlegung der Bodendämmung

·         Imprägnierung während des Aufbaus (nur notwendig, wenn das Produkt nicht bereits ab Werk mit einer Imprägnierung versehen wurde)

·         Längere Tragewege zum Aufbauort bis 40 m sind im Preis inklusive

·         Wir gehen auf deine individuellen Sonderwünsche ein und finden passende Lösungen

Bitte beachte, dass das zu verbauende Zubehör als optionales Zubehör bestellt werden muss. Wir bieten unseren Montageservice nur für Original-GartenHaus Zubehör an.

Weitere Hinweise:

Imprägnierung: Fachgerechtes (einmaliges) Auftragen von Imprägnierungsmittel (nach Aufbau) an der Außenseite des Produktes. Das Material ist nicht im Lieferumfang. Bestelle bitte hierfür PGH Holzschutzgrund Imprägnierung aus dem Zubehör in vorgeschlagener Menge oder das passende Farbenset.

Die Imprägnierung schafft – in Verbindung mit einer Holzendbehandlung in Form von Deckfarbe oder Lasur – die Basis für langanhaltenden Schutz vor holzabbauenden Pilzen, Bläuebefall, holzzerstörende Insekten/Schimmel. Damit ist der Grundstein für langjährige Freude an deinem Wunschprodukt gelegt! (Die Holzendbehandlung kann erst ca. 24 Stunden nach der Imprägnierung erfolgen und kann daher hier nicht mit angeboten werden.)

Wir weisen an dieser Stelle darauf hin, dass eine Imprägnierung ab Werk – bei vielen Modellen direkt als Variante zu wählen – einen stärkeren Schutz bietet als die Imprägnierung nach dem Aufbau. Bei der Werksimprägnierung wird das Imprägnierungsmittel in der Fertigung maschinell aufgetragen. Hierbei werden insbesondere auch Nut und Feder effektiv geschützt.

Die Imprägnierung des Hauses, ob durch unser Montageteam oder ab Werk, stellt eine Erstbehandlung dar. Für einen optimalen Schutz deines Hauses ist nach einer Trocknungszeit ein Zweitanstrich mit einer geeigneten Lasur - bzw. Deckfarbe nötig. Wir empfehlen dir hierfür unsere qualitätsgeprüften PGH-Farben und Lasuren aus unserem Zubehör-Sortiment.

Der GartenHaus Montageservice auf einen Blick: Deine Vorteile

✓ Fachgerechter Aufbau durch unsere Montage-Profis

✓ Ein fester Ansprechpartner für dein Projekt

✓ Bestpreisgarantie und Qualität vom Marktführer

Montageservice der GartenHaus GmbH: So funktioniert‘s:
Nach deiner Bestellung vereinbaren wir mit dir einen Termin, besprechen deinen Auftrag und klären alle deine Fragen.

Wir schicken dir rechtzeitig die Kontaktdaten deines Montagepartners aus deiner Region. Wenn du fachliche Fragen oder Wünsche hast, kannst du dich direkt an einen kompetenten Ansprechpartner wenden. Du stimmst die letzten Fragen mit dem Montage-Team ab und vereinbarst dann einen Termin.

Bitte beachte, dass die Aufbauteams zum Einplanen deines Montagetermins ausreichend Vorlaufszeit benötigen. Damit der Aufbau zeitnah nach der Lieferung erfolgen kann, empfiehlt es sich, die Buchung des Montageservices mit der Produktbestellung vorzunehmen. Eine spätere Nachbestellung des Montageservices ist nach individueller Absprache und erfolgter Prüfung gegebenenfalls möglich. Auch die Montage von Dachrinne, Fußbodendämmung, optionalem Fußboden, sowie die Imprägnierung sind optional in unserem Zubehör am Produkt hinzubuchbar.

Bitte hab Verständnis, dass aus Sicherheitsgründen nur die über die GartenHaus GmbH bezogenen Originalteile verbaut werden.

Für die Vorbereitung der Baustelle und für die Bestellung von Montageleistungen gibt es wichtige Infos. Diese findest du im Dokument und Link

 

Hinweis zur Buchung des richtigen Montageservices: Grundsätzlich sind am Produkt immer die richtigen Montageservice Artikel hinterlegt. Wenn du eine Montage nachträglich buchst, achte bitte bei der Auswahl auf folgende Merkmale:

·         Walmdach: Mit 4 und mehr Dachflächen (siehe Beispielbilder). Alle anderen Dächer werden als „Standarddach“ betrachtet

·         Fußboden: Viele unserer Produkte werden bereits ab Werk mit einem Fußboden ausgeliefert. Für diese Produkte ist das entsprechende Montageprodukt inkl. Fußboden zu wählen. Wenn der Fußboden nicht im Lieferumfang ist, kannst du ihn einfach als separates Zubehör dazu buchen. Für diese Fußböden ist die Zusatzmontage für Fußböden zu wählen.

·         Mehrraum: Für Gebäude mit mindestens einem, durch eine Wand getrennten Raum oder Schlafboden

·         Quadratmeteranzahl: Bezieht sich auf die Grundfläche + Dachüberhang des zu montierenden Produktes

·         Bauart:

Block bezeichnet Häuser, bei denen die Bohlen ineinandergreifend ausgeführt sind (siehe folgendes Bild)

Schraubsystem bezieht sich auf Produkte, die in Elementen oder einzelnen Bohlen ausgeführt sind und im Rahmen verschraubt werden müssen. (siehe folgendes Bild)

GartenHaus Montageservice: Fachgerechte Montage vom Profi zum Bestpreis!

Wähle bequem aus unseren Montage-Sets das für dich passende Gesamtpaket.

Option 1  –  Basic Montage – Haus:

In diesem Set sind enthalten:

·         Der Aufbau des Produktes mit dem kompletten Aufbau ab Oberkante Fundament, inklusive allen im Bausatz enthaltenen Zubehörteilen. Tragewege zum Aufbauort bis 15 m sind im Preis inklusive.

·         Wenn du dich für das Sparset "Montagezubehör und Befestigung" entscheidest, ist auch die Montage dieses Sets inklusive. Wir empfehlen dieses dringend zum sicheren Aufbau. Es schützt dein Produkt effektiv gegen Feuchtigkeit und starken Wind.

Wenn du weiteres Zubehör montieren willst, kannst du das als Zusatzmontage dazu buchen. Die findest du direkt bei deinem Wunschprodukt..

Option 2  – Premium Montage  – Haus und Dacheindeckung:

In diesem Set sind enthalten:

·         Alle Leistungen aus Montage Option 1

·         Zusätzlich enthalten ist das fachgerechte Verlegen von Dachpappe und Dachschindeln, KSK oder EPDM-Folie. Das Material ist nicht im Lieferumfang. Bestelle hierfür eines der vorgeschlagenen Dacheindeckungs-Sets bzw. das Wunschmaterial in der vorgegebenen Menge. Bitte achte auf die richtige Anzahl/Größe der Dachbahn/Folie und Dachabschluss-Profile bzw. -Blenden. Wir beraten dich gern zu den Möglichkeiten!

·         Ein persönlicher Ansprechpartner begleitet dein Projekt von Beauftragung bis zum Abschluss der Montage.

Wenn du weiteres Zubehör montieren willst, kannst du das als Zusatzmontage dazu buchen. Die findest du direkt bei deinem Wunschprodukt..

Option 3 – Exklusiv Montage – Haus und Dacheindeckung + alle optionalen Zusatzmontagen und Sonderwünsche

Wenn du das volle Programm ohne „Wenn“ und „Aber“ willst, ist diese Option genau das Richtige für dich.

In diesem Set sind enthalten:

·         Alle Leistungen der Montage Optionen 1+2

·         Die Zusatzmontage des passenden Dachrinnensets

·         Die Zusatzmontage des Fußbodens (wenn der Fußboden im Lieferumfang des Bausatzes enthalten ist, ist die Montage bereits in der Basic-Option inbegriffen)

·         Verlegung der Bodendämmung

·         Imprägnierung während des Aufbaus (nur notwendig, wenn das Produkt nicht bereits ab Werk mit einer Imprägnierung versehen wurde)

·         Längere Tragewege zum Aufbauort bis 40 m sind im Preis inklusive

·         Wir gehen auf deine individuellen Sonderwünsche ein und finden passende Lösungen

Bitte beachte, dass das zu verbauende Zubehör als optionales Zubehör bestellt werden muss. Wir bieten unseren Montageservice nur für Original-GartenHaus Zubehör an.

Weitere Hinweise:

Imprägnierung: Fachgerechtes (einmaliges) Auftragen von Imprägnierungsmittel (nach Aufbau) an der Außenseite des Produktes. Das Material ist nicht im Lieferumfang. Bestelle bitte hierfür PGH Holzschutzgrund Imprägnierung aus dem Zubehör in vorgeschlagener Menge oder das passende Farbenset.

Die Imprägnierung schafft – in Verbindung mit einer Holzendbehandlung in Form von Deckfarbe oder Lasur – die Basis für langanhaltenden Schutz vor holzabbauenden Pilzen, Bläuebefall, holzzerstörende Insekten/Schimmel. Damit ist der Grundstein für langjährige Freude an deinem Wunschprodukt gelegt! (Die Holzendbehandlung kann erst ca. 24 Stunden nach der Imprägnierung erfolgen und kann daher hier nicht mit angeboten werden.)

Wir weisen an dieser Stelle darauf hin, dass eine Imprägnierung ab Werk – bei vielen Modellen direkt als Variante zu wählen – einen stärkeren Schutz bietet als die Imprägnierung nach dem Aufbau. Bei der Werksimprägnierung wird das Imprägnierungsmittel in der Fertigung maschinell aufgetragen. Hierbei werden insbesondere auch Nut und Feder effektiv geschützt.

Die Imprägnierung des Hauses, ob durch unser Montageteam oder ab Werk, stellt eine Erstbehandlung dar. Für einen optimalen Schutz deines Hauses ist nach einer Trocknungszeit ein Zweitanstrich mit einer geeigneten Lasur - bzw. Deckfarbe nötig. Wir empfehlen dir hierfür unsere qualitätsgeprüften PGH-Farben und Lasuren aus unserem Zubehör-Sortiment.

Der GartenHaus Montageservice auf einen Blick: Deine Vorteile

✓ Fachgerechter Aufbau durch unsere Montage-Profis

✓ Ein fester Ansprechpartner für dein Projekt

✓ Bestpreisgarantie und Qualität vom Marktführer

Montageservice der GartenHaus GmbH: So funktioniert‘s:
Nach deiner Bestellung vereinbaren wir mit dir einen Termin, besprechen deinen Auftrag und klären alle deine Fragen.

Wir schicken dir rechtzeitig die Kontaktdaten deines Montagepartners aus deiner Region. Wenn du fachliche Fragen oder Wünsche hast, kannst du dich direkt an einen kompetenten Ansprechpartner wenden. Du stimmst die letzten Fragen mit dem Montage-Team ab und vereinbarst dann einen Termin.

Bitte beachte, dass die Aufbauteams zum Einplanen deines Montagetermins ausreichend Vorlaufszeit benötigen. Damit der Aufbau zeitnah nach der Lieferung erfolgen kann, empfiehlt es sich, die Buchung des Montageservices mit der Produktbestellung vorzunehmen. Eine spätere Nachbestellung des Montageservices ist nach individueller Absprache und erfolgter Prüfung gegebenenfalls möglich. Auch die Montage von Dachrinne, Fußbodendämmung, optionalem Fußboden, sowie die Imprägnierung sind optional in unserem Zubehör am Produkt hinzubuchbar.

Bitte hab Verständnis, dass aus Sicherheitsgründen nur die über die GartenHaus GmbH bezogenen Originalteile verbaut werden.

Für die Vorbereitung der Baustelle und für die Bestellung von Montageleistungen gibt es wichtige Infos. Diese findest du im Dokument und Link

 

Hinweis zur Buchung des richtigen Montageservices: Grundsätzlich sind am Produkt immer die richtigen Montageservice Artikel hinterlegt. Wenn du eine Montage nachträglich buchst, achte bitte bei der Auswahl auf folgende Merkmale:

·         Walmdach: Mit 4 und mehr Dachflächen (siehe Beispielbilder). Alle anderen Dächer werden als „Standarddach“ betrachtet

·         Fußboden: Viele unserer Produkte werden bereits ab Werk mit einem Fußboden ausgeliefert. Für diese Produkte ist das entsprechende Montageprodukt inkl. Fußboden zu wählen. Wenn der Fußboden nicht im Lieferumfang ist, kannst du ihn einfach als separates Zubehör dazu buchen. Für diese Fußböden ist die Zusatzmontage für Fußböden zu wählen.

·         Mehrraum: Für Gebäude mit mindestens einem, durch eine Wand getrennten Raum oder Schlafboden

·         Quadratmeteranzahl: Bezieht sich auf die Grundfläche + Dachüberhang des zu montierenden Produktes

·         Bauart:

Block bezeichnet Häuser, bei denen die Bohlen ineinandergreifend ausgeführt sind (siehe folgendes Bild)

Schraubsystem bezieht sich auf Produkte, die in Elementen oder einzelnen Bohlen ausgeführt sind und im Rahmen verschraubt werden müssen. (siehe folgendes Bild)

GartenHaus Montageservice: Fachgerechte Montage vom Profi zum Bestpreis!

Wähle bequem aus unseren Montage-Sets das für dich passende Gesamtpaket.

Option 1  –  Basic Montage – Haus:

In diesem Set sind enthalten:

·         Der Aufbau des Produktes mit dem kompletten Aufbau ab Oberkante Fundament, inklusive allen im Bausatz enthaltenen Zubehörteilen. Tragewege zum Aufbauort bis 15 m sind im Preis inklusive.

·         Wenn du dich für das Sparset "Montagezubehör und Befestigung" entscheidest, ist auch die Montage dieses Sets inklusive. Wir empfehlen dieses dringend zum sicheren Aufbau. Es schützt dein Produkt effektiv gegen Feuchtigkeit und starken Wind.

Wenn du weiteres Zubehör montieren willst, kannst du das als Zusatzmontage dazu buchen. Die findest du direkt bei deinem Wunschprodukt..

Option 2  – Premium Montage  – Haus und Dacheindeckung:

In diesem Set sind enthalten:

·         Alle Leistungen aus Montage Option 1

·         Zusätzlich enthalten ist das fachgerechte Verlegen von Dachpappe und Dachschindeln, KSK oder EPDM-Folie. Das Material ist nicht im Lieferumfang. Bestelle hierfür eines der vorgeschlagenen Dacheindeckungs-Sets bzw. das Wunschmaterial in der vorgegebenen Menge. Bitte achte auf die richtige Anzahl/Größe der Dachbahn/Folie und Dachabschluss-Profile bzw. -Blenden. Wir beraten dich gern zu den Möglichkeiten!

·         Ein persönlicher Ansprechpartner begleitet dein Projekt von Beauftragung bis zum Abschluss der Montage.

Wenn du weiteres Zubehör montieren willst, kannst du das als Zusatzmontage dazu buchen. Die findest du direkt bei deinem Wunschprodukt..

Option 3 – Exklusiv Montage – Haus und Dacheindeckung + alle optionalen Zusatzmontagen und Sonderwünsche

Wenn du das volle Programm ohne „Wenn“ und „Aber“ willst, ist diese Option genau das Richtige für dich.

In diesem Set sind enthalten:

·         Alle Leistungen der Montage Optionen 1+2

·         Die Zusatzmontage des passenden Dachrinnensets

·         Die Zusatzmontage des Fußbodens (wenn der Fußboden im Lieferumfang des Bausatzes enthalten ist, ist die Montage bereits in der Basic-Option inbegriffen)

·         Verlegung der Bodendämmung

·         Imprägnierung während des Aufbaus (nur notwendig, wenn das Produkt nicht bereits ab Werk mit einer Imprägnierung versehen wurde)

·         Längere Tragewege zum Aufbauort bis 40 m sind im Preis inklusive

·         Wir gehen auf deine individuellen Sonderwünsche ein und finden passende Lösungen

Bitte beachte, dass das zu verbauende Zubehör als optionales Zubehör bestellt werden muss. Wir bieten unseren Montageservice nur für Original-GartenHaus Zubehör an.

Weitere Hinweise:

Imprägnierung: Fachgerechtes (einmaliges) Auftragen von Imprägnierungsmittel (nach Aufbau) an der Außenseite des Produktes. Das Material ist nicht im Lieferumfang. Bestelle bitte hierfür PGH Holzschutzgrund Imprägnierung aus dem Zubehör in vorgeschlagener Menge oder das passende Farbenset.

Die Imprägnierung schafft – in Verbindung mit einer Holzendbehandlung in Form von Deckfarbe oder Lasur – die Basis für langanhaltenden Schutz vor holzabbauenden Pilzen, Bläuebefall, holzzerstörende Insekten/Schimmel. Damit ist der Grundstein für langjährige Freude an deinem Wunschprodukt gelegt! (Die Holzendbehandlung kann erst ca. 24 Stunden nach der Imprägnierung erfolgen und kann daher hier nicht mit angeboten werden.)

Wir weisen an dieser Stelle darauf hin, dass eine Imprägnierung ab Werk – bei vielen Modellen direkt als Variante zu wählen – einen stärkeren Schutz bietet als die Imprägnierung nach dem Aufbau. Bei der Werksimprägnierung wird das Imprägnierungsmittel in der Fertigung maschinell aufgetragen. Hierbei werden insbesondere auch Nut und Feder effektiv geschützt.

Die Imprägnierung des Hauses, ob durch unser Montageteam oder ab Werk, stellt eine Erstbehandlung dar. Für einen optimalen Schutz deines Hauses ist nach einer Trocknungszeit ein Zweitanstrich mit einer geeigneten Lasur - bzw. Deckfarbe nötig. Wir empfehlen dir hierfür unsere qualitätsgeprüften PGH-Farben und Lasuren aus unserem Zubehör-Sortiment.

Der GartenHaus Montageservice auf einen Blick: Deine Vorteile

✓ Fachgerechter Aufbau durch unsere Montage-Profis

✓ Ein fester Ansprechpartner für dein Projekt

✓ Bestpreisgarantie und Qualität vom Marktführer

Montageservice der GartenHaus GmbH: So funktioniert‘s:
Nach deiner Bestellung vereinbaren wir mit dir einen Termin, besprechen deinen Auftrag und klären alle deine Fragen.

Wir schicken dir rechtzeitig die Kontaktdaten deines Montagepartners aus deiner Region. Wenn du fachliche Fragen oder Wünsche hast, kannst du dich direkt an einen kompetenten Ansprechpartner wenden. Du stimmst die letzten Fragen mit dem Montage-Team ab und vereinbarst dann einen Termin.

Bitte beachte, dass die Aufbauteams zum Einplanen deines Montagetermins ausreichend Vorlaufszeit benötigen. Damit der Aufbau zeitnah nach der Lieferung erfolgen kann, empfiehlt es sich, die Buchung des Montageservices mit der Produktbestellung vorzunehmen. Eine spätere Nachbestellung des Montageservices ist nach individueller Absprache und erfolgter Prüfung gegebenenfalls möglich. Auch die Montage von Dachrinne, Fußbodendämmung, optionalem Fußboden, sowie die Imprägnierung sind optional in unserem Zubehör am Produkt hinzubuchbar.

Bitte hab Verständnis, dass aus Sicherheitsgründen nur die über die GartenHaus GmbH bezogenen Originalteile verbaut werden.

Für die Vorbereitung der Baustelle und für die Bestellung von Montageleistungen gibt es wichtige Infos. Diese findest du im Dokument und Link

 

Hinweis zur Buchung des richtigen Montageservices: Grundsätzlich sind am Produkt immer die richtigen Montageservice Artikel hinterlegt. Wenn du eine Montage nachträglich buchst, achte bitte bei der Auswahl auf folgende Merkmale:

·         Walmdach: Mit 4 und mehr Dachflächen (siehe Beispielbilder). Alle anderen Dächer werden als „Standarddach“ betrachtet

·         Fußboden: Viele unserer Produkte werden bereits ab Werk mit einem Fußboden ausgeliefert. Für diese Produkte ist das entsprechende Montageprodukt inkl. Fußboden zu wählen. Wenn der Fußboden nicht im Lieferumfang ist, kannst du ihn einfach als separates Zubehör dazu buchen. Für diese Fußböden ist die Zusatzmontage für Fußböden zu wählen.

·         Mehrraum: Für Gebäude mit mindestens einem, durch eine Wand getrennten Raum oder Schlafboden

·         Quadratmeteranzahl: Bezieht sich auf die Grundfläche + Dachüberhang des zu montierenden Produktes

·         Bauart:

Block bezeichnet Häuser, bei denen die Bohlen ineinandergreifend ausgeführt sind (siehe folgendes Bild)

Schraubsystem bezieht sich auf Produkte, die in Elementen oder einzelnen Bohlen ausgeführt sind und im Rahmen verschraubt werden müssen. (siehe folgendes Bild)

Imprägnierung bis 30m²
€ 479,00*
Imprägnierung bis 30m²

Wenn du dich dafür entscheidest, dein Produkt von einem unserer Montageteams imprägnieren zu lassen, handelt es sich um das fachgerechte (einmalige) Auftragen von Imprägnierungsmittel (nach Aufbau) an der Außenseite des Produktes.

Achtung: Das Material ist nicht im Lieferumfang. Bestelle bitte hierfür PGH Holzschutzgrund Imprägnierung aus dem Zubehör in vorgeschlagener Menge oder das passende Farbenset.

Die Imprägnierung schafft – in Verbindung mit einer Holzendbehandlung in Form von Deckfarbe oder Lasur – die Basis für langanhaltenden Schutz vor holzabbauenden Pilzen, Bläuebefall, holzzerstörende Insekten/Schimmel. Damit ist der Grundstein für langjährige Freude an Ihrem Wunschprodukt gelegt. Die Holzendbehandlung kann erst ca. 24 Stunden nach der Imprägnierung erfolgen und kann daher hier nicht mit angeboten werden.

Wir weisen an dieser Stelle darauf hin, dass eine Imprägnierung ab Werk – bei vielen Modellen direkt als Variante zu wählen – einen stärkeren Schutz bietet als die Imprägnierung nach dem Aufbau. Bei der Werksimprägnierung wird das Imprägnierungsmittel in der Fertigung maschinell aufgetragen. Hierbei werden insbesondere auch Nut und Feder effektiv geschützt.

Die Imprägnierung des Hauses, ob durch unser Montageteam oder ab Werk, stellt eine Erstbehandlung dar. Für einen optimalen Schutz deines Hauses ist nach einer Trocknungszeit ein Zweitanstrich mit einer geeigneten Lasur - bzw. Deckfarbe nötig. Wir empfehlen dir hierfür unsere qualitätsgeprüften PGH-Farben und Lasuren aus unserem Zubehör-Sortiment.

Der GartenHaus Montageservice auf einen Blick: Deine Vorteile

✓ Fachgerechter Aufbau durch unsere Montage-Profis

✓ Ein fester Ansprechpartner für dein Projekt

✓ Bestpreisgarantie und Qualität vom Marktführer

Montageservice der GartenHaus GmbH: So funktioniert‘s:
Nach deiner Bestellung vereinbaren wir mit dir einen Termin, besprechen deinen Auftrag und klären alle deine Fragen.

Wir schicken dir rechtzeitig die Kontaktdaten deines Montagepartners aus deiner Region. Wenn du fachliche Fragen oder Wünsche hast, kannst du dich direkt an einen kompetenten Ansprechpartner wenden. Du stimmst die letzten Fragen mit dem Montage-Team ab und vereinbarst dann einen Termin.

Bitte beachte, dass die Aufbauteams zum Einplanen deines Montagetermins ausreichend Vorlaufszeit benötigen. Damit der Aufbau zeitnah nach der Lieferung erfolgen kann, empfiehlt es sich, die Buchung des Montageservices mit der Produktbestellung vorzunehmen. Eine spätere Nachbestellung des Montageservices ist nach individueller Absprache und erfolgter Prüfung gegebenenfalls möglich.

Bitte hab Verständnis, dass aus Sicherheitsgründen nur die über die GartenHaus GmbH bezogenen Originalteile verbaut werden.

Für die Vorbereitung der Baustelle und für die Bestellung von Montageleistungen gibt es wichtige Infos. Diese findest du im Dokument und Link

 

Montage Dachrinne - 1 Dachseite
€ 209,00*
Montage Dachrinne - 1 Dachseite

Du hast dich zum Schutz und für die Langlebigkeit deines Produkts für ein passendes Dachentwässerungssystem entschieden.

Dann buch die professionelle Montage vom Fachmann gleich mit hinzu.. (Bei diesem Artikel handelt es sich um eine Zusatzmontage, die nur in Verbindung mit einem Montageauftrag für eines unserer Hauptprodukte gebucht werden kann)

Was ist in diesem Montageprodukt enthalten:

-          Fachgerechte Platzierung, Ausrichtung und Montage unserer Dachrinnen- bzw. Fallrohrsets

-          Montage der zusätzlich erhältlichen Rinneneinhänge (nur bei Dachrinnensets notwendig - optionales Zubehör)

Wählen die für dein Produkt passende Variante. Bei Dachrinnensets ist die Anzahl der zu entwässernden Dachseiten (1, 2 oder 4) ausschlaggebend, bei den Fallrohrsets die Anzahl der empfohlenen und bestellten Sets.

Achtung: Die Dachrinne bzw. das Fallrohr ist nicht enthalten. Bestelle hierzu eine der empfohlenen Dachrinnen bzw. Fallrohre aus unserem Zubehör. Wir empfehlen für unsere Dachrinnensets zusätzlich die Rinneneinhänge zu bestellen. Ein Rinneneinhang ist der fachgerechte Abschluss an der Dachtraufe. Er ist das Übergangsblech von der Dachfläche zur Dachrinne und sein Einsatz sorgt für kontrollierten Wassereinlauf in die Dachrinne. Die Montage der Rinneneinhänge ist im Montagepreis der Dachrinne enthalten.

Der GartenHaus Montageservice auf einen Blick: Deine Vorteile

✓ Fachgerechter Aufbau durch unsere Montage-Profis

✓ Ein fester Ansprechpartner für dein Projekt

✓ Bestpreisgarantie und Qualität vom Marktführer

Montageservice der GartenHaus GmbH: So funktioniert‘s:
Nach deiner Bestellung vereinbaren wir mit dir einen Termin, besprechen deinen Auftrag und klären alle deine Fragen.

Wir schicken dir rechtzeitig die Kontaktdaten deines Montagepartners aus deiner Region. Wenn du fachliche Fragen oder Wünsche hast, kannst du dich direkt an einen kompetenten Ansprechpartner wenden. Du stimmst die letzten Fragen mit dem Montage-Team ab und vereinbarst dann einen Termin.

Bitte beachte, dass die Aufbauteams zum Einplanen deines Montagetermins ausreichend Vorlaufszeit benötigen. Damit der Aufbau zeitnah nach der Lieferung erfolgen kann, empfiehlt es sich, die Buchung des Montageservices mit der Produktbestellung vorzunehmen. Eine spätere Nachbestellung des Montageservices ist nach individueller Absprache und erfolgter Prüfung gegebenenfalls möglich.

Bitte hab Verständnis, dass aus Sicherheitsgründen nur die über die GartenHaus GmbH bezogenen Originalteile verbaut werden.

Für die Vorbereitung der Baustelle und für die Bestellung von Montageleistungen gibt es wichtige Infos. Diese findest du im Dokument und Link

Montage Boden-Dämmung bis 30m²
€ 489,00*
Montage Boden-Dämmung bis 30m²

Eine fachgerechte Dämmung des Fußbodens ist eine wertvolle Investition und gerade zur kalten Jahreszeit ist eine gute Isolierung empfehlenswert. Freu Dich auf eine warme und gemütliche Residenz in Deinem Garten und buche diesen Artikel ganz einfach zur Hausmontage dazu.

Was ist in diesem Montageprodukt enthalten:

-          Individueller Zuschnitt des Dämmmaterials

-          Befestigung der Dämmplatten am Fundamentrahmen

-          Luftdichtes Abkleben der Platten auf dem Rahmen zur optimalen Isolierwirkung

Wähle die Grundfläche, die Du isolieren willst, passend zum Produkt aus (bis 10m², bis 15m², usw.). Entscheidend ist die Grundfläche des zu isolierenden Gebäudes.


Achtung: Das Material zur Bodendämmung ist nicht enthalten. Bestelle hierzu ein empfohlenes Dämmset aus unserem Zubehör. Bei mehrstöckigen Häusern wird nur der Boden vom Untergeschoss gedämmt.

Der GartenHaus Montageservice auf einen Blick: Deine Vorteile

✓ Fachgerechter Aufbau durch unsere Montage-Profis

✓ Ein fester Ansprechpartner für dein Projekt

✓ Bestpreisgarantie und Qualität vom Marktführer

Montageservice der GartenHaus GmbH: So funktioniert‘s:
Nach deiner Bestellung vereinbaren wir mit dir einen Termin, besprechen deinen Auftrag und klären alle deine Fragen.

Wir schicken dir rechtzeitig die Kontaktdaten deines Montagepartners aus deiner Region. Wenn du fachliche Fragen oder Wünsche hast, kannst du dich direkt an einen kompetenten Ansprechpartner wenden. Du stimmst die letzten Fragen mit dem Montage-Team ab und vereinbarst dann einen Termin.

Bitte beachte, dass die Aufbauteams zum Einplanen deines Montagetermins ausreichend Vorlaufszeit benötigen. Damit der Aufbau zeitnah nach der Lieferung erfolgen kann, empfiehlt es sich, die Buchung des Montageservices mit der Produktbestellung vorzunehmen. Eine spätere Nachbestellung des Montageservices ist nach individueller Absprache und erfolgter Prüfung gegebenenfalls möglich.

Bitte hab Verständnis, dass aus Sicherheitsgründen nur die über die GartenHaus GmbH bezogenen Originalteile verbaut werden.

Für die Vorbereitung der Baustelle und für die Bestellung von Montageleistungen gibt es wichtige Infos. Diese findest du im Dokument und Link

Zubehör für dein Produkt

Windverankerungs-Set für Blockbohlen
€ 59,00*
Windverankerungs-Set für Blockbohlen

Windverankerungs-Set für Blockbohlenhäuser

Wir empfehlen in besonders starken Windregionen dein Gartenhaus durch ein zusätzliches
Windverankerungs-Set zu sichern. Das Set besteht aus stabilen Gewindestangen, welche
mit Hilfe von speziellen Metallwinkeln und Spannungsfedern in allen vier Ecken von Außen
oder Innen in Ihren Gartenhaus montiert werden. Die Gewindestangen verbinden die unterste
und oberste Blockbohle und verhindert somit ein Auseinandergehen der einzelen Blockbohlen
und halten diese somit bei Sturm zusammen. Da man die einzelnen Blockbohlen nicht unter-
einander verschrauben sollte, ist die Sicherung mit diesem Set die beste Möglichkeit die 
Bohlen untereinander zu verbinden. 

Im Set enhalten sind 

8 x Gewindestangen M6 x 1000mm (passend zur Montage an allen 4 Ecken, je 2 Stangen/Ecke) inkl. Verbindungsmuffen, Montagewinkel, Spannungsfedern und Montagematerial mit Schrauben. 

Das Montagematerial (Schrauben) ist für Blockbohlenhäuser von einer Wandstärke vom 19-45 mm
geeignet. Wenn du das Set bei starken Blockbohlen (über 45 mm) verwendest, müssen die
Schrauben bauseits gegen längere Schrauben ausgetauscht werden !!

Für eine signifikante Verbesserung der Standfestigkeit empfehlen wir eine Kombination aus diesem Set und dem
Sturmwinkel Set für eine Befestigung auf der Fundamentplatte. 

 Tipps und Tricks zur fachgerechten Montage der Sturmwinkel bzw. des Winderverankerungs Sets sind in diesem Infovideo zu finden:

 

Holz Bar Robuste Holzbar (200 x 75 cm) – stabile 40 mm Konstruktion, vielseitig einsetzbar, inkl. Montagematerial und Aufbauanleitung.
€ 739,00*
Holz Bar

 Artikelbeschreibung:

  • Außenmaß: 200 x 75 cm
  • Sockelmaß: 190 x 65 cm
  • Gesamthöhe: ca. 110 cm
  • Tresentiefe: ca. 45 cm
  • inkl. Aufbauanleitung & Montagematerial
  • Materialstärke: 40 mm
  • Seitenverkehrte Montage möglich
Komfort Garantie
€ 69,00*
Komfort Garantie

Welche Produkte sind durch die Gartenhaus.com Garantie abgedeckt?

Unsere Komfort Garantie gilt ausschließlich für privat genutzte Produkte. Dazu zählen: 

  • Garten- & Gerätehäuser – dein Rückzugsort oder einfache Lösung zur Aufbewahrung
  • Saunen – für wohltuende Entspannung und Wellness im eigenen Zuhause
  • Kinderspielgeräte – Spiel und Spaß für Groß und Klein
  • Holzpavillons - für dein persönliches Paradies im Garten
  • Carports – zuverlässiger Schutz für dein Fahrzeug vor Regen, Schnee und Sonne
  • Garagen – sicherer Stellplatz mit zusätzlichem Stauraum für deine Bedürfnisse

Mit unserer Garantie kannst du dich auf die Qualität deines Produkts verlassen. Sollte doch einmal etwas nicht passen, sind wir schnell und unkompliziert für dich da.

Was beinhaltet die Komfort Garantie?

Dank unserer Komfort Garantie musst du dir keine Sorgen machen. Geht etwas kaputt, bekommst du von uns die passenden Ersatzteile für folgende Bereiche: 

  • Türen (Glasschäden bis zu 200 €)
  • Fenster (Glasschäden bis zu 200 €)
  • Dachrinne – für einen sicheren Wasserablauf
  • Türschloss – für zuverlässigen Schutz
  • Beschläge – falls kleine, aber wichtige Teile ersetzt werden müssen
  • Dacheindeckung (Dachpappe, Dachschindeln, KSK) – für optimalen Schutz vor Wind und Wetter

Wichtig:

Die Komfort-Garantie umfasst ausschließlich die Lieferung der Ersatzteile. Der Einbau liegt in deiner Hand. Für eine professionelle Montage wähle die Premium-Garantie. 

Mit der Komfort Garantie bist du gut abgesichert und kannst dein Gartenhaus.com-Produkt unbesorgt genießen.

Garantiebedingungen

Alle Details und mehr Infos zur Komfort Garantie

Noch Fragen? Unser Kundenservice ist jederzeit für dich da!

Premium Garantie
€ 609,00*
Premium Garantie

Für welche Produkte gilt die Gartenhaus.com Garantie?

Unsere Premium Garantie gilt ausschließlich für Produkte, die du privat nutzt. Dazu gehören:

  • Garten- & Gerätehäuser – dein Rückzugsort oder einfache Lösung zur Aufbewahrung
  • Saunen – für wohltuende Entspannung und Wellness im eigenen Zuhause
  • Kinderspielgeräte – Spiel und Spaß für Groß und Klein
  • Holzpavillons - für dein persönliches Paradies im Garten
  • Carports – zuverlässiger Schutz für dein Fahrzeug vor Regen, Schnee und Sonne
  • Garagen – sicherer Stellplatz mit zusätzlichem Stauraum für deine Bedürfnisse

Mit unserer Garantie kannst du sicher sein, dass dein Produkt hochwertig verarbeitet ist und wir dir im Fall der Fälle schnell und unkompliziert weiterhelfen.

Was beinhaltet die Premium Garantie?

Unsere Premium Garantie sorgt dafür, dass du dich entspannt zurücklehnen kannst. Falls ein Problem auftritt, schicken wir dir Ersatzteile für folgende Komponenten:

  • Türen (Glasschäden bis zu 200 €)
  • Fenster (Glasschäden bis zu 200 €)
  • Dachrinne – für einen sicheren Wasserablauf
  • Türschloss – für zuverlässigen Schutz
  • Beschläge – falls kleine, aber wichtige Teile ersetzt werden müssen
  • Dacheindeckung (Dachpappe, Dachschindeln, KSK) – für optimalen Schutz vor Wind und Wetter

Extra-Service in der Premium Garantie:

Inklusive Handwerksservice & Ersatzteileinbau: Du bekommst nicht nur die Ersatzteile, sondern auch den professionellen Einbau dazu!

Mit unserer Premium Garantie bist du rundum abgesichert – für langanhaltende Freude an deinem Produkt.

Garantiebedingungen

Alle Details und mehr Infos zur Premium Garantie

Noch Fragen? Unser Kundenservice ist jederzeit für dich da!

 

Zubehör für den Außenbereich

Rinneneinhang Rinneneinhang für den fachgerechten Dachabschluss – sorgt für kontrollierten Wasserablauf von der Dachfläche in die Dachrinne.
€ 156,00* € 39,00* / Stück
Rinneneinhang

Ein Rinneneinhang ist der fachgerechte Abschluss an der Dachtraufe. Er ist das Übergangsblech von der Dachfläche zur Dachrinne. Der Einsatz sorgt für kontrollierten Wassereinlauf in die Dachrinne.

Material: Stahl verzinkt, pulverbeschichtet

Maße: A:60 mm, B:125 mm, D:15 mm

Länge: 200 cm

Stärke: 0,50 mm

Inkl. Spenglerschrauben

Dachrinnenset RG 100 - für 1 Dachseite bis 9 m - anthrazit metallic Marley Dachrinnen-Set für 1 Dachseite (bis 9 m) – komplett, langlebig und einfach zu montieren, inkl. Zubehör für sichere Entwässerung.
€ 489,00*
Dachrinnenset RG 100 - für 1 Dachseite bis 9 m - anthrazit metallic

Für Gartenhäuser aus Holz mit Seitenlänge bis 9 m, komplettes Set für 1 Holzhausseite

Dachrinnenset für Gartenhäuser mit Stirnbrett - bei Gartenhäusern ohne Stirnbrett muss dieses bauseits für die Montage gestellt werden

Marley Dachrinnen-Sets schützen Wände und Fundamente von Garten- und Blockhäusern sicher und zuverlässig vor Schäden durch Regenwasser.

Vorteile:

  • Komplettes Set mit Rinnen, Fallrohren und Befestigungszubehör
  • Leicht zu montieren
  • Alles komplett im Set
  • witterungs-, UV- und temperaturbeständig
  • Schlagfester, hochwertiger Kunststoff
  • Top Qualität - Made in Germany
  • 10 Jahre Garantie

Set-Inhalt:

  • 4x Dachrinne, halbrund 2 m RG 100
  • 2x Dachrinne, halbrund 1 m RG 100
  • 4x Rinnenverbindungsschale RG 100
  • 4x Endstück für links und rechts RG 100
  • 18x Rinnenhalter RG 100
  • 18x Verstellwinkel für Rinnenhalter
  • 2x Stutzen RG 100 / DN 75
  • 4x Rohrbogen DN 75, 45°
  • 2x Fallrohr DN 75 2 m
  • 4x Rohrschelle mit Ringschraube

Für Gartenhäuser aus Holz mit Seitenlänge bis 9 m, komplettes Set für 1 Holzhausseite

Dachrinnenset für Gartenhäuser mit Stirnbrett - bei Gartenhäusern ohne Stirnbrett muss dieses bauseits für die Montage gestellt werden

Marley Dachrinnen-Sets schützen Wände und Fundamente von Garten- und Blockhäusern sicher und zuverlässig vor Schäden durch Regenwasser.

Vorteile:

  • Komplettes Set mit Rinnen, Fallrohren und Befestigungszubehör
  • Leicht zu montieren
  • Alles komplett im Set
  • witterungs-, UV- und temperaturbeständig
  • Schlagfester, hochwertiger Kunststoff
  • Top Qualität - Made in Germany
  • 10 Jahre Garantie

Set-Inhalt:

  • 4x Dachrinne, halbrund 2 m RG 100
  • 2x Dachrinne, halbrund 1 m RG 100
  • 4x Rinnenverbindungsschale RG 100
  • 4x Endstück für links und rechts RG 100
  • 18x Rinnenhalter RG 100
  • 18x Verstellwinkel für Rinnenhalter
  • 2x Stutzen RG 100 / DN 75
  • 4x Rohrbogen DN 75, 45°
  • 2x Fallrohr DN 75 2 m
  • 4x Rohrschelle mit Ringschraube
Holz Terrassendielen Set für 3 m² in imprägnierter Kiefer Terrassendielen-Set aus imprägnierter Kiefer – langlebig, individuell erweiterbar, inkl. Unterkonstruktion & Edelstahlschrauben für einfache Montage.
€ 579,00 € 299,00*
Holz Terrassendielen Set für 3 m² in imprägnierter Kiefer

Das hochwertige Terrassendielen Set aus imprägnierter Kiefer besticht durch seine sehr breite Anwendungsmöglichkeit. Das Set lässt sich individuell und sehr leicht auf jede Terrasse anpassen und kann ganz einfach mit weiteren Sets in der Größe erweitert werden. Das Holz der Dielen und der Unterkonstruktion überzeugt durch eine gute Dauerhaftigkeit. Die Schrauben sind aus hochwertigem und rostfreiem Edelstahl. So hast du lange Freude an deiner Terrasse.

 Einfache Montage

✓ Individuell anpassbar

✓ Dauerhaftes Holz

✓ Rostfreie Edelstahlschrauben

Praktisch - direkte Lieferung zu dir nach Hause

Artikeldetails:

  • Länge der Dielen: 3 m (Paketinhalt: 3,045 m²)
  • Anzahl Dielen/Paket: 7
  • Profilmaß: 28 x 145 mm
  • Profilierung: einseitig grob genutet, einseitig gehobelt
  • Material: Kiefer KDI

Im Lieferumfang enthalten:

  • 7 x kesseldruckimprägnierte Kiefer-Terrassendielen je 3 m (Paketinhalt: 3,045 m²); Profil: 28 x 145 mm
  • 4 x Unterkonstruktionsbalken je 3 m; Profil 45 x 7 mm
  • 120 Stk. Edelstahlschrauben 5 x 50 mm für Holzdielen
  • 20 Stk. Edelstahlschrauben 5 x 70 mm für Unterkonstruktion

Einfache Montage:

Das 3 m² Terrassendielenset besteht aus 7 Stk. kesseldruckimprägnierten Kiefer-Terrassendielen je 3 m, 4 Stk. Unterkonstruktionsbalken je 3 m, 120 Stk. Edelstahlschrauben 5 x 50 mm für die Dielen sowie 20 Stk. Edelstahlschrauben 5 x 70 mm für die Unterkonstruktion. Das Set kann mit weiteren Sets derselben Holzart individuell zu größeren Terrassen kombiniert werden.

Das Terrassendielen-Set ist ausschließlich für den privaten Gebrauch geeignet und nicht für gewerbliche Zwecke zu verwenden. Bitte benutze das Terrassendielen-Set nur wie in der Anleitung beschrieben. Andernfalls kann eine unsachgemäße Verwendung zu Personen- oder Sachschäden führen.

Die Terrassendielen und Unterkonstruktionsbalken (UK) können individuell zugeschnitten werden. Die UK bildet einen Rahmen mit Zwischenbalken. Dieser Rahmen wird mit Gefälle und Distanzklötzen oder z.B. Terrassenplatten oder Rasensteinen auf dem Untergrund ausgerichtet und fixiert. Anschließend werden die Dielen ausgerichtet und mit der UK verschraubt.

1. Der Untergrund sollte aus einer ausreichend verdichteten und frostsicheren Fläche mit geringem Gefälle von 2-3 % bestehen. Ggf. kann der Untergrund zusätzlich mit einem Unkrautvlies vorbereitet werden.

2. Die UK Balken werden zugesägt und gem. Abb. mit 5 x 70 mm Edelstahlschrauben verschraubt (ggf. vorbohren). Die Abstände der Zwischenbalken sollten nicht größer als 45-50 cm sein. Der UK Rahmen wird nun auf dem Untergrund mit Gefälle auf den Auflagepunkten ausgerichtet und kann ggf. mit Dübeln oder Schrauben fixiert (nicht im Lieferumfang enthalten) werden. Die Auflagepunkte sollten in Längs- und Querrichtung ca. 50-60 cm entfernt sein.

3. Säge die Terrassendielen zu. Die Dielen sollten an den Enden ca. 2-10 cm über der UK überstehen. Längsseitig sollten 4 cm nicht überschritten werden. Verschraube die Dielen mit den 5 x 50 mm Edelstahlschrauben. Bitte halte den Mindestabstand der Verschraubungspunkte zu den Randbereichen der Diele von min. 25 mm ein, um ein Reißen des Holzes zu vermeiden (ggf. vorbohren). Verschraube die Dielen an allen Kreuzungspunkten mit der UK. Der Fugenabstand der Dielen sollte 5-8 mm betragen.

4. Es empfiehlt sich, die Terrassendielen vor oder nach der Montage mit einer Lasur oder Öl zu behandeln, um diese besser gegen Witterungseinflüsse zu schützen.

Holz Terrassendielen Set für 3m² in RedClass Terrassendielen-Set aus Red-Class – langlebig, individuell erweiterbar, inkl. Unterkonstruktion & Edelstahlschrauben für einfache Montage.
€ 499,00 € 229,00*
Holz Terrassendielen Set für 3m² in RedClass

Das hochwertige Terrassendielen Set aus Red-Class besticht durch seine sehr breite Anwendungsmöglichkeit. Das Set lässt sich individuell und sehr leicht auf jede Terrasse anpassen und kann ganz einfach mit weiteren Sets in der Größe erweitert werden. Das Holz der Dielen und der Unterkonstruktion überzeugt durch eine gute Dauerhaftigkeit. Die Schrauben sind aus hochwertigem und rostfreiem Edelstahl.So hast du lange Freude an deiner Terrasse.

 Einfache Montage

✓ Individuell anpassbar

✓ Dauerhaftes Holz

✓ Rostfreie Edelstahlschrauben

Praktisch - direkte Lieferung zu dir nach Hause

Set-Inhalt:

  • 7 x Holz-Terrassendielen je 3m
  • 4 x 3m Unterkonstruktionsbalken (4,5x7,0cm) 
  • 120 x Edelstahlschrauben 5x50mm für Holzdielen
  • 20 x Edelstahlschrauben 5x70mm für Unterkonstruktion

Artikeldetails:

  • Länge der Dielen: 300 cm (Paketinhalt: 3,045 m²)
  • Anzahl Dielen/Paket: 7
  • Profilmaß: 28 x 145 mm
  • Profilierung: einseitig grob genutet, einseitig gehobelt
  • Material: Red-Class

Im Lieferumfang enthalten:

  • 7x Dielen: 300 cm (Paketinhalt: 3,045 m²); Profil: 28 x 145 mm
  • 4x 3 Meter Unterkonstruktion; Profil 45 x 7 mm
  • 120 Stk. Edelstahlschrauben 5 x 50 mm
  • 20 Stk. Edelstahlschrauben 5 x 70 mm

Einfache Montage:

Das 3m² Terrassendielenset besteht aus 7 Stk. Holz-Terrassendielen a 3m, 4 Stk. Unterkonstruktionsbalken a 3m, 120 Stk. Edelstahlschrauben 5x50 für die Dielen sowie 20 Stk. Edelstahlschrauben 5x70 für die Unterkonstruktion. Das Set kann mit weiteren Sets derselben Holzart individuell zu größeren Terrassen kombiniert werden. Das Terrassendielen-Set ist ausschließlich für den privaten Gebrauch geeignet und nicht für gewerbliche Zwecke zu verwenden. Bitte benutze das Terrassendielen-Set nur wie in dieser Anleitung beschrieben. Andernfalls kann eine unsachgemäße Verwendung zu Personen- oder Sachschäden führen.

Die Terrassendielen und Unterkonstruktionsbalken (UK) können individuell zugeschnitten werden. Die UK bildet einen Rahmen mit Zwischenbalken. Dieser Rahmen wird mit Gefälle und Distanzklötzen oder z.B. Terrassenplatten oder Rasensteinen auf dem Untergrund ausgerichtet und fixiert. Anschließend werden die Dielen ausgerichtet und mit der UK verschraubt.

1. Der Untergrund sollte aus einer ausreichend verdichteten und frostsicheren Fläche mit geringem Gefälle von 2-3 % besehen. Ggf. kann der Untergrund zusätzlich mit einem Unkrautvlies vorbereitet werden.

2. Die UK Balken werden zugesägt und gem. Abb. mit 5x70 Edelstahlschrauben verschraubt, ggf. vorbohren. Die Abstände der Zwischenbalken sollten nicht größer als 45-50 cm sein. Der UK Rahmen wird nun auf dem Untergrund mit Gefälle auf den Auflagepunkten ausgerichtet und kann ggf. mit Dübeln oder Schrauben fixiert (nicht im Lieferumfang enthalten) werden. Die Auflagepunkte sollten in Längs- und Querrichtung ca. 50-60cm entfernt sein.

3. Säge die Terrassendielen zu. Die Dielen sollten an den Enden ca. 2-10 cm über der UK überstehen. Längsseitig sollten 4 cm nicht überschritten werden. Verschraube die Dielen mit den 5x50 Edelstahlschrauben. Bitte halten den Mindestabstand der Verschraubungspunkte zu den Randbereichen der Diele von min 25 mm ein, um ein Reißen des Holzes zu vermeiden – ggf. vorbohren. Verschraube die Dielen an allen Kreuzungspunkten mit der UK. Der Fugenabstand der Dielen sollte 5-8 mm betragen.

4. Es empfiehlt sich, die Terrassendielen vor oder nach der Montage mit einer Lasur oder Öl zu behandeln, um diese besser gegen Witterungseinflüsse zu schützen.

Zubehör für den Innenbereich

PGH Hartwachsöl 2,5 L Perfekter Oberflächenschutz für deinen Holzfußboden - sorgt für eine widerstandsfähige und natürliche Oberfläche
€ 158,00* € 79,00* / Stück
PGH Hartwachsöl 2,5 L

Hochwertiges Hartwachsöl für Innenbereich

Unser Hartwachsöl bietet eine hochwertige Lösung für die Grundierung und Behandlung verschiedener saugfähiger Untergründe im Innenbereich. Mit einer seidenmatten, strapazierfähigen Oberfläche, die natürliche Strukturen belebt und Tönungen vertieft, bietet es beste Ergebnisse für Holz-, Kork- und Steinböden sowie andere Oberflächen. Einfach in der Anwendung und getestet gemäß höchsten Standards, ist es die ideale Wahl für professionelle Ergebnisse.

Artikeldetails zum Hartwachsöl:

  • Anwendung: Grundierung und Behandlung saugfähiger Untergründe im Innenbereich.

  • Eigenschaften: Seidenmatte Oberfläche, vertieft die Tönung, wasserabweisend.
  • Geprüft auf Chemikalienbeständigkeit und Migration.
  • Inhaltsstoffe: Leinöl, Holzöl, Ricinöl, Naturharzester, weitere.
  • VOC-Gehalt: Max. 440 g/l (EU-Grenzwert: max. 500 g/l).
  • Verarbeitung: Vor Gebrauch aufschütteln, dünn auftragen, polieren.
  • Trocknungszeit: Ca. 6-12 Std., überstreichbar nach 16-24 Std.
  • Verbrauch: 30-50 g/m²; Ergiebigkeit ca. 20 m²/l.
  • Lagerung: Kühl, trocken, ungeöffnet min. 24 Monate haltbar.
  • Entsorgung: Gemäß örtlichen Vorschriften.
  • Hinweise: Farbangaben unverbindlich, Probeanstrich empfohlen.

 

 

Basic Ordnungs-Set
€ 49,00*
Basic Ordnungs-Set

Dieses Basic Ordnungs-Set ist das i-Tüpfelchen für Ihr neues Gartenhaus. Dank unseres sorgfältig zusammengestellten Ordnungssets stehen Besen, Säge und Co nicht mehr im Weg rum, sondern können bequem an den Wänden verstaut werden. Das ist nicht nur platzsparend, sondern garantiert auch ein einladendes und aufgeräumtes Raumgefühl.

Die im Set enthaltenen Haken haben eine hohe Tragfähigkeit und eignen sich hervorragend zum Sortieren und Verstauen von: Leiter, Eimer, Verlängerungskabel, Gießkanne, Gartenschlauch, Harke, Schaufel, etc., bis hin zum Fahrrad.

Das Ordnungsset besteht aus:

  • 2 x Standardhaken aus verzinktem Stahlrohr, rostfrei, Ø 16 mm, Tiefe 80 mm, Traglast bis zu 60 kg
  • 2 x Standardhaken, aus verzinktem Stahlrohr, rostfrei, Ø 16 mm, Tiefe 210 mm, Traglast bis zu 60 kg
  • 2 x Standardhaken, aus verzinktem Stahlrohr, rostfrei, Ø 16 mm, Tiefe 285 mm, Traglast bis zu 60 kg
  • 5 x kleine Einzelhaken aus Stahl, Ø 8 mm, Höhe 8 cm, Traglast von bis zu 50 kg
  • 1 x ummantelter, roter Doppelhaken, Ø 10 mm, Tiefe 70 mm, Traglast von bis zu 80 kg
  • 1 x Halter für 1 Handgriffe, Durchmesser 16-32 mm
  • 1 x Fahrradhaken mit Befestigung durch das Rad
  • 1 x Haken für 1 Handwerkzeug, Ø 16 mm, Höhe 158 mm, Breite 166 mm, Tiefe 115 mm, Traglast bis zu 30 kg
Standard Ordnungs-Set
€ 69,00*
Standard Ordnungs-Set

Dieses Ordnungs-Set ist das i-Tüpfelchen für Ihr neues Gartenhaus. Dank unseres sorgfältig zusammengestellten Ordnungssets stehen Besen, Säge und Co nicht mehr im Weg rum, sondern können bequem an den Wänden verstaut werden. Das ist nicht nur platzsparend, sondern garantiert auch ein einladendes und aufgeräumtes Raumgefühl.

Die im Set enthaltenen Haken haben eine hohe Tragfähigkeit und eignen sich hervorragend zum Sortieren und Verstauen von: Leiter, Eimer, Verlängerungskabel, Gießkanne, Gartenschlauch, Harke, Schaufel, etc., bis hin zum Fahrrad. Einige von den Haken sind außerdem zum Schutz ummantelt.

Das Ordnungsset besteht aus:

  • 2 x umhüllter Standardhaken, aus verzinktem Stahlrohr, rostfrei, Ø 16 mm, Tiefe 80 mm, Traglast 60 kg
  • 2 x umhüllter Standardhaken, aus verzinktem Stahlrohr, rostfrei, Ø 16 mm, Tiefe 210 mm, Traglast 60 kg
  • 2 x umhüllter Standardhaken, aus verzinktem Stahlrohr, rostfrei, Ø 16 mm, Tiefe 285 mm, Traglast 60 kg
  • 5 x Einzelhaken aus verzinktem Stahl, Ø 9 mm, Höhe 125 mm, Breite 40 mm, Traglast von bis zu 50 kg
  • 1 x umhüllter, schwarzer Doppelhaken, Ø 10 mm, Tiefe 165 mm, Traglast von bis zu 80 kg
  • 1 x Multi-Konzept-Hakenträger mit 3 Aufhängungspunkten, Ø 16 mm, Höhe 35 mm, Länge 27 mm, Tiefe 120 mm
  • 1 x umhüllter Fahrradhaken mit Befestigung durch das Rad
  • 5 x Mehrzweckhalter, Ø 10 mm, Tiefe 70 mm, Traglast von bis zu 80 kg
  • 1 x Haken für 3 Handwerkzeug, Ø 16-32 mm, Höhe 158 mm, Breite 166 mm, Tiefe 115 mm, Traglast bis zu 30 kg
Premium Ordnungs-Set
€ 119,00*
Premium Ordnungs-Set

Dieses Ordnungs-Set ist das i-Tüpfelchen für Ihr neues Gartenhaus. Dank unseres sorgfältig zusammengestellten Ordnungssets stehen Besen, Säge und Co nicht mehr im Weg rum, sondern können bequem an den Wänden verstaut werden. Das ist nicht nur platzsparend, sondern garantiert auch ein einladendes und aufgeräumtes Raumgefühl.

Die im Set enthaltenen Haken haben eine hohe Tragfähigkeit und eignen sich hervorragend zum Sortieren und Verstauen von: Leiter, Eimer, Verlängerungskabel, Gießkanne, Gartenschlauch, Harke, Schaufel, etc., bis hin zum Fahrrad. Einige von den Haken sind außerdem zum Schutz stark ummantelt.

Das Ordnungsset besteht aus:

  • 2 x Haken in Rohr umhüllt, Ø 20 mm, Tiefe 150 mm, Traglast 90 kg
  • 5 x verzinkte Flacheisenhaken, Stahl 1,2 mm Stärke, Breite 25 mm, Tiefe 25 mm, Höhe 73 mm
  • 1 x Pro Halter für 3 Handgriffe , Ø 16 - 40 mm, Tiefe 285 mm, auf der Leiste verschiebbar
  • 1 x Gestellrahmen mit 7 Minihaken in lackiertem Stahldraht
  • 1 x Doppelhaken, Ø 16 mm x 2, Länge 250 mm, Traglast von bis zu 80 kg
  • 1 x Fahrradhaken in Rohr umhüllt mit Befestigung durch das Rad, Ø 20 mm
  • 5 x Mehrzweckdoppelhaken, Breite 75 mm, Tiefe 48 mm, Höhe 60 mm, Traglast von bis zu 20 kg
  • 1 x Doppelhaken in Rohr, Ø 20 mm, Länge 200 mm, Traglast bis zu 70 kg
Häufige Fragen zu dem Produkt

Brauche ich für das Alpholz Home-Office 6 eine Baugenehmigung?

Ein großes Gartenhaus benötigt in den meisten Bundesländern eine Baubewilligung. Das gilt besonders, wenn Aufenthaltsräume oder eine dauerhafte Nutzung geplant sind. Die genauen Grenzwerte legt dabei das jeweilige Bundesland fest. Bei Fragen hilft dir unser Beratungs-Team gerne und alle wichtigen Infos zur Genehmigungspflicht und mögliche Ausnahmen erfährst du in unserem Ratgeber.
>> Ratgeber Baugenehmigung

Welche Dacheindeckung wähle ich für das Alpholz Home-Office 6?

Für ein Flachdach benötigst du eine besonders sichere und durchgehende Abdichtung, zum Beispiel EPDM-Dachfolie, PVC-Folie oder Bitumenbahnen. Diese Materialien sind speziell für geringe Dachneigung entwickelt und schützen dauerhaft vor Feuchtigkeit. Eine zusätzliche Kiesschicht oder Begrünung ist optional möglich, wenn das Modell dafür ausgelegt ist. Bei Fragen hilft dir unser Beratungs-Team gerne und weitere Infos geben wir dir in unserem Ratgeber.
>> Ratgeber: Gartenhaus Dacheindeckung

Welches Fundament ist für das Alpholz Home-Office 6 geeignet?

Für dieses Gartenhaus empfehlen wir z.B. ein Streifenfundament oder eine Betonplatte, um ausreichend Stabilität zu gewährleisten. Wichtig ist auch ein guter Feuchtigkeitsschutz, damit deine Konstruktion langfristig trocken bleibt. Zudem solltest du auf eine ausreichende Windverankerung achten. Bei Fragen hilft dir unser Beratungs-Team gerne und in unserem Ratgeber findest du weitere passende Fundamentlösungen.
>> Ratgeber: Gartenhaus Fundament

Welche Nutzungsmöglichkeiten bietet das Alpholz Home-Office 6?

Ein Gartenhaus ab 40 mm Wandstärke eignet sich für regelmäßige oder vielseitige Nutzung, etwa als Hobbyraum, Sommerbüro oder kleines Gästezimmer in den warmen Monaten. Die Wände bieten eine deutlich bessere Isolierwirkung und auch empfindlichere Gegenstände können deutlich besser geschützt aufbewahrt werden als in dünneren Wandstärken. Bei Fragen hilft dir unser Beratungs-Team gerne und mehr Details findest du in unserem Ratgeber.
>> Ratgeber: Gartenhaus Wandstärke
Baupläne & Dokumente
Bewertungen

Durchschnittliche Bewertung von 0 von 5 Sternen

(0)

Durchschnittliche Bewertung von 0 von 5 Sternen

(0 Bewertungen)
Produktdetails
Details:
Wandstärke (mm)
44
Materialart
Fichte
Oberflächenbehandlung
ohne
Grundfarbe
Naturbelassen
Grundfläche
25,4
Gesamtmaß (cm)
509 x 500
Rauminhalt
59,6
Fußboden
inklusive
Bauweise
Steck-/Schraubbauweise
Dachform
Flachdach
Dachfläche (m²)
25,4
Dachneigung
1,3
Dacheindeckung
ohne
Fensteranzahl
2
Fensterausführung
Bodentiefes Fenster
Verglasung
ISO-Glas

Beliebte Produkte